函館市昭和1丁目 土地・戸建
ここに注目!昭和47年と平成9年に増改築を行っていて築年数を感じさせない住宅です! ■空家につきお客様のご都合に合わせての内覧が可能です ■お庭を眺めてゆったり過ごせる縁側があります ■全窓断熱性の高い複層サッシ ■駐車2台可(車種による※冬季間は1台分スペースに屋根からの落雪) ■全室7帖以上、多目的に使えるサービスルーム約4.3帖 ■収納量豊富な住宅です ■窓付1坪ユニットバスで快適バスタイムを ■小中学校徒歩10分圏内でお子様の通学も安心の立地 ※契約不適合責任免責物件となります ※増築未登記部分あります
| 価格 |
890万円
|
|---|---|
| 建物面積 | 98.81m² (29.89坪) |
| 土地面積 | 235.49m² (71.23坪)(公簿) |
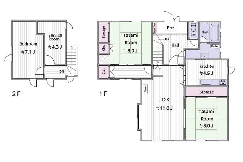
| 間取り | 3LDK1階:和室8帖 和室8帖 / 2階:洋室7.1帖 S4.3帖 |
| 住所 | 北海道函館市昭和1丁目9-7 |
| 交通 | 五稜郭駅(徒歩25分)道順を見る |
| 築年月 | 築58年(1967年12月) |
| 駐車場 |
あり 駐車可能台数:2台
|
販売状況、見学、詳細を知りたい方はこちら!
お電話の際は「連合隊の物件」とお伝えください。
情報掲載期限:あと11日(更新日 2025/12/19)
- 物件写真・概要
- 周辺地図
-
販売状況、見学、詳細を知りたい方はこちら!
おすすめポイント
- 駐車2台以上可
- 車庫あり
- 都市ガス
- 近くて便利!徒歩5分以内にある施設
- 3分
3分- 5分
5分- 5分
5分- 周辺施設を地図で確認
交通色がついているアイコンをクリックすると、本物件までの道順を見ることができます。
物件概要
建物の階建 地上2階建 主要採光面 南東 構造 木造(在来工法) 接道状況 一方 - 北西側幅5.90mの公道に15.50m接道
都市計画区域 市街化区域 私道負担 地目/地勢 宅地 地勢:平坦 国土法届出 土地権利 所有権 用途地域 - 第2種中高層住居専用地域(建ぺい率:60% / 容積率:200%)
引渡し 相談 現況 空き 取引態様 仲介 物件No 仲介手数料概算 35万9,700円(金額は概算です。正確な金額は不動産会社へお問合せ下さい) 設備・特徴 - 閑静な住宅街
- 整形地
- 物置
- 車庫あり
- 玄関フード
- 日当り良好
- 照明器具付
- 出窓
- フローリング
- 全居室収納あり
- 浴室1坪以上
- 浴室に窓
- コンロ3口以上
- システムキッチン
- 都市ガス
- 灯油暖房
- 灯油ボイラー
備考 学区色がついているアイコンをクリックすると、本物件までの道順を見ることができます。
主な周辺施設色がついているアイコンをクリックすると、本物件までの道順を見ることができます。
- ファミリーマート函館美原1丁目店約228m(徒歩3分)
- 認定こども園函館美原保育園約366m(徒歩5分)
- 医療法人亀田病院約395m(徒歩5分)
- サツドラ富岡中央店約579m(徒歩8分)
- 函館昭和郵便局約695m(徒歩9分)
- 北海道銀行美原支店約830m(徒歩11分)
- ホクレンショップFood Farm函館昭和店約889m(徒歩12分)
- ビッグハウスアドマーニ約732m(徒歩10分)
- ワッツウィズ昭和生鮮夢市場店約885m(徒歩12分)
- MEGAドン・キホーテ函館店約1.2km(徒歩14分)
対象となりうる支援制度
函館市
支援制度に関するお問合せは、不動産会社ではなく、自治体の公式ページまたは担当課までご確認ください。
上記リンクは、支援制度の対象条件を一定以上満たした物件に対し自動表示しています。
-

この物件の担当者 西田 耕野(にしだ こうや)
これまで多くの方の購入・売却のお手伝いをさせていただきました。購入・売却をご検討中の方は是非私『西田』をご指名下さい。今までのキャリアを元に【安心できるお取引】をご提供させていただきます。
ホームページはこちら北海道知事 石狩(3) 第8239号
開成不動産(株)〒060-0062
北海道札幌市中央区南二条西7丁目5番地6
第3サントービル 6FTEL:011-206-6162
FAX:011-281-8110
営業時間:9:00~18:00
定休日:隔週 火曜 / 毎週 水曜・祝日
- 保証協会
- (公社)全国宅地建物取引業保証協会
※連合隊は物件情報の精度向上に努めています:「物件情報に誤りがある」「成約済みである」などお気付きの点がございましたらこちらよりご連絡ください。
写真枚数:4枚
当社は札幌市内や札幌市近郊の不動産の売買のご紹介を主な業務内容とする会社です。
「売りたい」「買いたい」ご希望の方は不動産に関する質問は何でもお気軽にご相談下さい。豊富な情報力でお客様のご希望に併せたスピーディな対応を心掛けております。是非当社へご相談ください。