【都市景観賞受賞】小樽市緑1丁目 3階建戸建
ここに注目!●2009年都市景観賞を受賞物件 おしゃれな内装も是非ご内覧ください ●JR小樽駅まで徒歩17分 バス停「緑2丁目」まで徒歩1分 ●ECOジョーズで経済的 ●2階にはスタディスペースあり ●近隣にコンビニ・スーパー・ドラッグストアあり 利便性良好 ●小樽市立山の手小学校徒歩7分・松ヶ枝中学校徒歩21分 ●小樽商科大学徒歩16分 ☆詳細はお気軽にお問合せください☆ 現地集合、現地解散OK!早朝や遅い時間も柔軟にご対応します! 当社が窓口となり原則すべての物件のご紹介が出来ます! 何社も問合せする煩わしさがございませんので、是非ご活用ください! 公式LINEからはいつでもお問い合わせ可能です! ◆小樽・余市エリア版 実需・投資物件情報◆ LINE ID:@182vswiy で検索&登録! お電話はこちら→011-600-1213
| 価格 |
5,800万円
|
|---|---|
| 建物面積 | 172.48m² (52.17坪) |
| 土地面積 | 378.18m² (114.39坪)(公簿) |
| 間取り | 4LDK |
| 住所 | 北海道小樽市緑 (詳細非公開) |
| 交通 | 小樽駅(徒歩17分)|南小樽駅(徒歩25分)|中央バス 「緑2丁目」停(徒歩1分) |
| 築年月 | 築17年(2008年11月) |
| 駐車場 |
あり 駐車可能台数:3台
車庫あり 建物横敷地駐車可能 |
【WEB面談可】
販売状況、見学、詳細を知りたい方はこちら!
お電話の際は「連合隊の物件」とお伝えください。
情報掲載期限:あと22日(更新日 2025/11/27)
- 物件写真・概要
- 周辺地図
-
▼クリックで左の拡大画像が変わります。 すべての写真を拡大
-
2009年都市景観賞受賞の物件です!3階建鉄骨造り 是非ご内覧ください
-
間取りは現況を優先します
-
角地に位置しているため日当たり良好!ルーフバルコニーもありくつろぎの時間
-
駐車スペースも十分あります。
-
リビング横にはスタディスペースもございます
-
キッチンはIH 3口コンロです
-
洗面と浴室の区切りはガラスで区切られおしゃれ
-
浴室は窓があり明るく癒しの時間を過ごせます
-
トイレ
-
室内
-
室内
-
-
室内
-
ECOジョーズで経済的!
-
ルーフバルコニーでくつろぎの時間
-
玄関にはシンボルツリーもあります
-
LINEで簡単問合せ!小樽・余市エリア版!LINE ID:@182vswiy
-
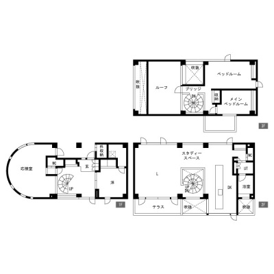
1F平面図
-
2F平面図
-
3F平面図
【WEB面談可】
販売状況、見学、詳細を知りたい方はこちら!おすすめポイント
- 駐車2台以上可
- 車庫あり
- 角地
- 都市ガス
- 近くて便利!徒歩5分以内にある施設
- 4分
4分- 3分
3分- 4分
4分
交通
- 小樽駅JR函館本線徒歩17分(約1.3km)
- 南小樽駅JR函館本線徒歩25分(約2km)
- 小樽駅JR函館本線バス4分→ 中央バス 「緑2丁目」停徒歩1分
物件概要
建物の階建 地上3階建 主要採光面 南東 構造 鉄骨造 バルコニー あり- ルーフバルコニー
接道状況 角地 - 北東側幅7.20mの公道に26.00m接道
- 南東側幅18.10mの公道に14.50m接道
都市計画区域 市街化区域 私道負担 なし 地目/地勢 宅地 国土法届出 不要 土地権利 所有権 用途地域 - 近隣商業地域(建ぺい率:80% / 容積率:200%)
- 第1種住居地域(建ぺい率:60% / 容積率:200%)
その他費用 その他 - 令和7年度固定資産税都市計画税約:46万円
引渡し 相談 現況 入居中 取引態様 仲介 物件No 仲介手数料概算 198万円(金額は概算です。正確な金額は不動産会社へお問合せ下さい) 設備・特徴 - 都市ガス
- 温水洗浄トイレ
- シャワー付洗面化粧台
- IHクッキングヒーター
- コンロ3口以上
- システムキッチン
- エコジョーズ
- モニタ付インターホン
- 角地
- 整形地
- 車庫あり
- 日当り良好
- 照明器具付
- シューズボックス
備考 ■現況渡し■境界非明示(公簿売買)■契約不適合責任免責■間取りは現況を優先します ■小樽市立山の手小学校・小樽市立松ケ枝中学校 ■道道の中心線から北西側30mまでが近隣商業地域30m以降は第一種住居地域です ■所有者様入居中のため日程調整が必要です■建蔽率80%は範囲の広い近隣商業地域の建蔽率を使用しています ■準防火地域 学区
- 小樽市立山の手小学校約505m(徒歩7分)
- 小樽市立松ケ枝中学校約1.6km(徒歩20分)
主な周辺施設
- 小樽緑二郵便局約226m(徒歩3分)
- 日本赤十字社小樽保育所約280m(徒歩4分)
- サツドラ小樽緑店約319m(徒歩4分)
- 小樽公園約510m(徒歩7分)
- まや幼稚園約363m(徒歩5分)
- 市立小樽図書館約594m(徒歩8分)
- セブンイレブン小樽緑店約500m(徒歩7分)
- ラルズマートおたる山の手店約550m(徒歩7分)
- 小樽市役所約627m(徒歩8分)
- コープさっぽろみどり店約709m(徒歩9分)
-
-

この物件の担当者 島(シマ)
よろしくお願いいたします。
※連合隊は物件情報の精度向上に努めています:「物件情報に誤りがある」「成約済みである」などお気付きの点がございましたらこちらよりご連絡ください。
写真枚数:20枚
2009年都市景観賞受賞の物件です!3階建鉄骨造り 是非ご内覧ください
間取りは現況を優先します
角地に位置しているため日当たり良好!ルーフバルコニーもありくつろぎの時間
駐車スペースも十分あります。
リビング横にはスタディスペースもございます
キッチンはIH 3口コンロです
洗面と浴室の区切りはガラスで区切られおしゃれ
浴室は窓があり明るく癒しの時間を過ごせます
トイレ
室内
室内
室内
ECOジョーズで経済的!
ルーフバルコニーでくつろぎの時間
玄関にはシンボルツリーもあります
LINEで簡単問合せ!小樽・余市エリア版!LINE ID:@182vswiy
1F平面図
2F平面図
3F平面図
札幌市内近郊、小樽近郊を得意エリアとし、地域に精通したスタッフがお客様のご希望をお聞きします!
不動産の購入や売却は一生のうちに何度も無いことです。そんな大きなイベントだからこそ、たくさんの疑問、不安、お悩み事が伴います。一つ一つに真摯に取り組み、笑顔になって頂けるようなサポートをお約束します。