前田11条10丁目事務所兼アパート
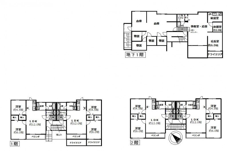
ここに注目!◆オーナーチェンジ物件 ◆4室中4室賃貸中、事務所賃貸中 (令和7年1月現在) ◆満室賃料 3,588,000円/年 ◆満室利回り 8.00%/年 ◆2LDK×4+事務所 ◆事務所兼アパート ◆倉庫・物置あり ◆スーパー、コンビニ徒歩10分圏内 ◆平成14年2月築 ◆LDK約12.0帖
| 価格 |
4,480万円
利回り8%
満室時想定年収:358万8,000円
|
|---|---|
| 住所 | 北海道札幌市手稲区前田十一条10丁目 |
| 交通 | 中央バス「手稲高校前」停 (徒歩3分) |
| 築年月 | 築23年(2002年2月) |
| 構造 | その他(木・鉄筋コンクリート造) |
| 面積 | 建物:295.23m² (89.3坪)/ 土地:329m² (99.52坪) |
| 現況 | 現在満室(総戸数4戸中 4戸賃貸中) |
販売状況、見学、詳細を知りたい方はこちら!
お電話の際は「連合隊の物件」とお伝えください。
情報掲載期限:あと28日(更新日 2025/12/14)
- 物件写真・概要
- 周辺地図
-
▼クリックで左の拡大画像が変わります。 すべての写真を拡大
販売状況、見学、詳細を知りたい方はこちら!
おすすめポイント
- 現在満室
交通
- 中央バス「手稲高校前」停 徒歩3分
物件概要
建物の階建 地上2階 地下1階建 間取り 2LDK×4戸 駐車場 あり接道状況 角地 - 南西側幅8.00mの公道に18.80m接道
- 北西側幅6.00mの公道に14.90m接道
都市計画区域 市街化区域 用途地域 - 第1種低層住居専用地域(建ぺい率:40% / 容積率:80%)
私道負担 地目/地勢 宅地 国土法届出 土地権利 所有権 引渡し 相談 取引態様 仲介 物件No 仲介手数料概算 154万4,400円(金額は概算です。正確な金額は不動産会社へお問合せ下さい) 設備・特徴 - バス/トイレ別
備考 西側2.0m隅切りあり 容積率:戸建住環境保全地区により、専用住宅、長屋、二戸の共同住宅以外は60%になります。 敷地面積の最低限度:165㎡ ※賃料等の収入や利回りは、将来にわたり、確実に得られることを保証するものではありません。 ※賃料等は、賃貸中のものについては現在の賃料等で、新築および空室または一部空き有のものについては、周辺の賃料相場に基づき満室となった場合を想定して表示しています。 主な周辺施設色がついているアイコンをクリックすると、本物件までの道順を見ることができます。
- ザ・ビッグエクスプレス前田店約850m(徒歩11分)
- サツドラ手稲前田7条店約1.3km(徒歩16分)
- フードD365BOSCO店約1.2km(徒歩14分)
- ローソン札幌前田13条店約590m(徒歩8分)
- 前田中央小学校約1.3km(徒歩16分)
- 前田中学校約1.9km(徒歩23分)
-
ホームページはこちら
北海道知事 石狩(8) 第5479号
アスカリアルター(株)
※連合隊は物件情報の精度向上に努めています:「物件情報に誤りがある」「成約済みである」などお気付きの点がございましたらこちらよりご連絡ください。
写真枚数:10枚
外観
エントランス
玄関
事務所入り口
駐車場
ザ・ビッグエクスプレス前田店
サツドラ手稲前田7条店
フードD365BOSCO店
ローソン札幌前田13条店
札幌市・札幌市近郊の不動産のことなら何でもご相談ください!
札幌市・札幌市近郊で土地・住宅・マンション・投資物件等をお探しのお客様、ご売却をお考えのお客様は、アスカリアルターがお手伝いさせて頂きます。代表者及び営業は、財閥系不動産業者に長年勤務しておりました。