野幌松並町 中古戸建
ここに注目!価格改定あり!リフォーム完了済みですぐにお住まい頂けます。広々としたキッチンには食洗器付き♪人気の角地です!
| 価格 |
1,898万円
|
|---|---|
| 建物面積 | 97.42m² (29.46坪) |
| 土地面積 | 222.29m² (67.24坪)(公簿) |
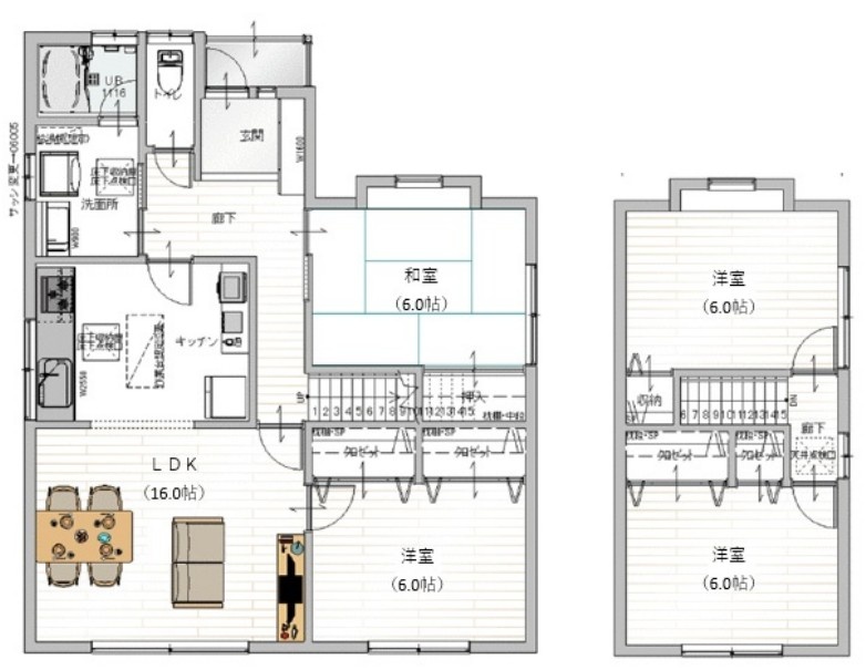
| 間取り | 1階:LDK16帖 洋室6帖 和室6帖 / 2階:洋室6帖 洋室6帖 |
| 住所 | 北海道江別市野幌松並町25-61 |
| 交通 | 野幌駅(徒歩18分)道順を見る |
| 築年月 | 築44年(1981年12月) |
| 駐車場 |
あり 駐車可能台数:2台
|
【WEB面談可】
販売状況、見学、詳細を知りたい方はこちら!
お電話の際は「連合隊の物件」とお伝えください。
新着 情報掲載期限:あと26日(更新日 2026/3/6)
- 物件写真・概要
- 周辺地図
-
▼クリックで左の拡大画像が変わります。 すべての写真を拡大
【WEB面談可】
販売状況、見学、詳細を知りたい方はこちら!おすすめポイント
- 即引渡し可
- 駐車2台以上可
- 角地
- 都市ガス
- リフォーム済み
交通色がついているアイコンをクリックすると、本物件までの道順を見ることができます。
物件概要
建物の階建 地上2階建 主要採光面 構造 木造 接道状況 角地 - 北東側幅8.00mの公道に12.70m接道
- 北西側幅8.00mの公道に11.10m接道
都市計画区域 市街化区域 私道負担 なし 地目/地勢 宅地 地勢:平坦 国土法届出 不要 土地権利 所有権 用途地域 - 第1種低層住居専用地域(建ぺい率:60% / 容積率:200%)
引渡し 即時 現況 空き 取引態様 仲介 物件No 仲介手数料概算 不動産会社へお問合せください 修繕履歴 - 2023年7月頃に物件全体を部分的にリフォームしています。施工内容:水回り設備交換:キッチン・浴室・トイレ 内装リフォーム:壁・床・全室
設備・特徴 - 日当り良好
- フローリング
- 二重サッシ
- シューズボックス
- コンロ3口以上
- 温水洗浄トイレ
- シャワー付洗面化粧台
- 全居室収納あり
- 食器洗乾燥機
- システムキッチン
- 浴室乾燥機
- 浴室暖房
- 灯油ボイラー
- 都市ガス
- 角地
- 玄関フード
- モニタ付インターホン
備考 無理のない資金計画で安心のマイホームをご提案申し上げます。 まずはローンのシミュレーションだけでも親切丁寧にお手伝いさせて頂きます。 物件についてのお問合せはもちろん、住宅ローンに不安のある方も、お気軽にお問合せ下さい! 【北海道電力・公営水道・公共下水・都市ガス】 学区色がついているアイコンをクリックすると、本物件までの道順を見ることができます。
主な周辺施設色がついているアイコンをクリックすると、本物件までの道順を見ることができます。
-

この物件の担当者 後澤潤(ウシロザワジュン)
物件のご提案、資金計画や住宅ローンについて、わかりやすく丁寧にご説明させて頂きます。お気軽に『資料請求』(無料)からお問合わせください。将来のお住まいについてしっかりとお手伝いさせて頂きます。
ホームページはこちら国土交通大臣 (1) 第10283号
(株)Grateful Home 【WEB面談可】
※連合隊は物件情報の精度向上に努めています:「物件情報に誤りがある」「成約済みである」などお気付きの点がございましたらこちらよりご連絡ください。
写真枚数:26枚
風除室あり
駐車2台可能
駐車2台可能
人気の角地
人気の角地
シューズボックスあり
水回り新品交換済み
お洒落なアクセントクロス
キッチン広々
水回り新品交換済み
食洗器付き
キッチン広々
水回り新品交換済み
水回り新品交換済み
水回り新品交換済み
収納豊富です
収納豊富です
コープさっぽろ野幌店:徒歩8分(620m)
ファミリーマート江別白樺通店:徒歩12分(926m)
わかば保育園本園:徒歩12分(930m)
平日や夜間のご内覧など、ご都合に合わせてご案内させて頂きます!
住宅は一生のうちの大半を過ごす大切な場所であり、そう何度もない大きな買い物です。グレイトフルホームでは専門知識と誠意のある対応でお客様の不安を解消し、しっかりご満足頂ける住まい探しをお手伝いいたします