江別市大麻北町 中古戸建
ここに注目!内装リフォーム済み!外装5月リフォーム完了予定!灯油暖房、灯油給湯で経済的♪ お家選びは 「しっかりとした資金計画」 と 「優良な物件探し」 から。 物件のご提案、資金計画や住宅ローンについて、 わかりやすく丁寧にご説明させて頂きます。 資料請求のみでもお気軽にお問合わせください。 将来のお住まいについてしっかりとお手伝いさせて頂きます。
| 価格 |
1,998万円
|
|---|---|
| 建物面積 | 98.19m² (29.7坪) |
| 土地面積 | 201.79m² (61.04坪)(公簿) |
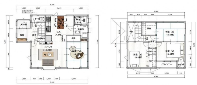
| 間取り | 4LDK1階:L17.5帖 和室6帖 / 2階:洋室6帖 洋室6帖 和室6帖 |
| 住所 | 北海道江別市大麻北町518-42 |
| 交通 | 大麻駅(徒歩39分)|野幌駅(徒歩36分)|中央バス「3番通11丁目」」停 (徒歩3分) |
| 築年月 | 築36年(1989年11月) |
| 駐車場 |
あり 駐車可能台数:1台
|
【WEB面談可】
販売状況、見学、詳細を知りたい方はこちら!
お電話の際は「連合隊の物件」とお伝えください。
情報掲載期限:あと30日(更新日 2025/12/6)
- 物件写真・概要
- 周辺地図
-
▼クリックで左の拡大画像が変わります。 すべての写真を拡大
【WEB面談可】
販売状況、見学、詳細を知りたい方はこちら!おすすめポイント
- 即引渡し可
- 駐車場あり
- 追い焚き風呂
- リフォーム済み
- 近くて便利!徒歩5分以内にある施設
- 3分
3分- 2分
2分- 5分
5分- 周辺施設を地図で確認
交通色がついているアイコンをクリックすると、本物件までの道順を見ることができます。
- 大麻駅JR函館本線徒歩39分(約3.1km)
- 野幌駅JR函館本線徒歩36分(約2.9km)
- 中央バス「3番通11丁目」」停 徒歩3分
物件概要
建物の階建 地上2階建 主要採光面 構造 木造 接道状況 一方 - 北西側幅8.00mの公道に16.10m接道
都市計画区域 私道負担 なし 地目/地勢 宅地 地勢:平坦 国土法届出 土地権利 所有権 用途地域 - 第1種中高層住居専用地域(建ぺい率:60% / 容積率:200%)
引渡し 即時 現況 空き 取引態様 仲介 物件No 仲介手数料概算 不動産会社へお問合せください 修繕履歴 - 2025年1月頃にリビング・キッチン・トイレ・浴室・玄関・建物全体・その他の箇所をリフォームしています。施工内容:畳、照明、給湯器等
- 2025年5月頃に屋根・外壁をリフォームしています。
設備・特徴 - 玄関フード
- 日当り良好
- 照明器具付
- フローリング
- 二重サッシ
- 納戸・トランクルーム
- シューズボックス
- シャワー付洗面化粧台
- 追い焚き風呂
- 浴室に窓
- コンロ3口以上
- システムキッチン
- 灯油暖房
- 灯油ボイラー
- モニタ付インターホン
備考 物件についてのお問合せはもちろん、住宅ローンに不安のある方も、お気軽にお問合せ下さい! まずはローンのシミュレーションだけでも親切丁寧にお手伝いさせて頂きます。 無理のない資金計画で安心のマイホームをご提案申し上げます。 【北海道電力・公営水道・公共下水・灯油】 学区色がついているアイコンをクリックすると、本物件までの道順を見ることができます。
主な周辺施設色がついているアイコンをクリックすると、本物件までの道順を見ることができます。
-

この物件の担当者 後澤潤(ウシロザワジュン)
物件のご提案、資金計画や住宅ローンについて、わかりやすく丁寧にご説明させて頂きます。お気軽に『資料請求』(無料)からお問合わせください。将来のお住まいについてしっかりとお手伝いさせて頂きます。
ホームページはこちら国土交通大臣 (1) 第10283号
(株)Grateful Home 【WEB面談可】
※連合隊は物件情報の精度向上に努めています:「物件情報に誤りがある」「成約済みである」などお気付きの点がございましたらこちらよりご連絡ください。
写真枚数:30枚
車庫付き
物置
風除室
シューズボックス
畳張替え済み
キッチン新品交換済み
洗面台交換済み
ユニットバス新品交換済み
トイレ交換済み
二面採光で明るい
畳張替え済み
畳張替え済み
大型収納あり
セブンイレブン江別大麻北町店
ホクレンショップFoodFarm大麻北町店
認定こども園あけぼの
ファミリーマート江別大麻新町店
平日や夜間のご内覧など、ご都合に合わせてご案内させて頂きます!
住宅は一生のうちの大半を過ごす大切な場所であり、そう何度もない大きな買い物です。グレイトフルホームでは専門知識と誠意のある対応でお客様の不安を解消し、しっかりご満足頂ける住まい探しをお手伝いいたします