一棟マンション|投資
関ハイツ1-1
| 価格 |
4億8,000万円
利回り5.94%
満室時想定年収:2,852万円
|
|---|---|
| 住所 | 北海道札幌市厚別区厚別中央一条1-3-43 |
| 交通 | ひばりが丘駅(徒歩4分)道順を見る |
| 築年月 | 築28年(1997年3月) |
| 構造 | 鉄筋コンクリート(RC)造 |
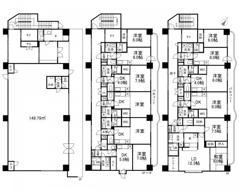
| 面積 | 建物:1756.54m² (531.35坪)/ 土地:1045.64m² (316.3坪)(公簿) |
| 現況 | 現在満室(総戸数35戸中 35戸賃貸中) |
販売状況、見学、詳細を知りたい方はこちら!
お電話の際は「連合隊の物件」とお伝えください。
011-621-5221
情報掲載期限:あと28日(更新日 2025/12/15)
- 物件写真・概要
- 周辺地図
-
販売状況、見学、詳細を知りたい方はこちら!
おすすめポイント
- 現在満室
- 駅徒歩5分以内
- 土地100坪超
- 複数路線利用可
交通色がついているアイコンをクリックすると、本物件までの道順を見ることができます。
物件概要
建物の階建 地上8階 地下1階建 間取り 2LDK×1戸、2DK×7戸、1DK×26戸、その他×1戸 駐車場 あり ※契約者負担料金:1万1,000円/台 駐車場台数:25台接道状況 角地 - 北東側幅25.00mの公道に22.60m接道
- 南東側幅32.00mの公道に26.60m接道
都市計画区域 市街化区域 用途地域 - 準工業地域(建ぺい率:60% / 容積率:200%)
私道負担 なし 地目/地勢 宅地 地勢:平坦 国土法届出 不要 土地権利 所有権 引渡し 相談 取引態様 仲介 物件No 仲介手数料概算 1,656万6,330円(金額は概算です。正確な金額は不動産会社へお問合せ下さい) 設備・特徴 - 角地
- エレベーター
- 複数路線利用可
- バス/トイレ別
- オートロック
備考 主な周辺施設色がついているアイコンをクリックすると、本物件までの道順を見ることができます。
-
ホームページはこちら
北海道知事 石狩(9) 第4323号
(株)カナディアンホーム
※連合隊は物件情報の精度向上に努めています:「物件情報に誤りがある」「成約済みである」などお気付きの点がございましたらこちらよりご連絡ください。
写真枚数:14枚
収益物件の他にも新築戸建、中古MS、土地等幅広く取り扱います。
「任意売却」「相続」ご高齢のご家族の資産管理・運用に関わる「家族信託」のご提案などは最も得意とするところです。介護施設の運用も自社にて行っており経験実績も豊富ですのでお気軽にご相談ください。