恵庭市黄金中央1丁目【中古戸建】
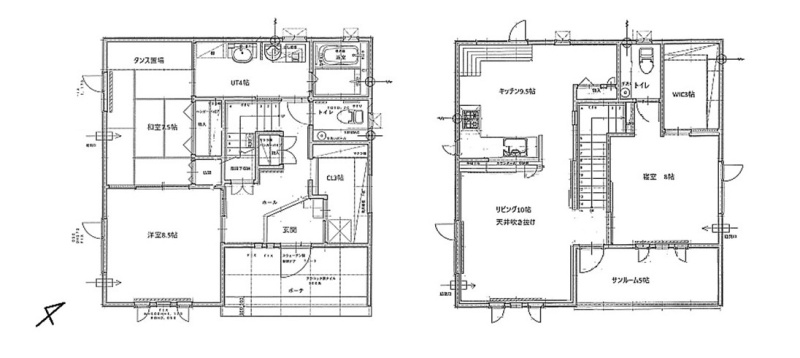
ここに注目!■JR「恵庭」駅まで徒歩6分、通勤・通学にも便利な好立地■駅近でありながら落ち着いた住環境の黄金中央エリア ■利便性と快適さを両立した、家族にうれしい住まいです!■ゆとりある敷地約70坪に建つ、(株)キクザワ施工の3LDK+S中古戸建■2階リビングには天窓から光が差し込み、明るく開放的な空間を演出■キッチンとリビングが緩やかにつながり、家族の会話が自然と弾みます■1階8.5帖の洋室と4.5帖の和室は、ご年配の方の居室や客間としても使いやすい間取りです■ サンルーム付きで天候を気にせず洗濯物を干すことが出来ます♪■カーポートやスロップシンク、食器洗乾燥機など暮らしの便利さを高める設備も充実しています
| 価格 |
3,580万円
|
|---|---|
| 建物面積 | 125.86m² (38.07坪) |
| 土地面積 | 234m² (70.78坪)(公簿) |
| 間取り | 3LDK |
| 住所 | 北海道恵庭市黄金中央1丁目1-9 |
| 交通 | 恵庭駅(徒歩6分)道順を見る |
| 築年月 | 築14年(2011年8月) |
| 駐車場 |
あり 駐車可能台数:2台
|
【WEB面談可】
販売状況、見学、詳細を知りたい方はこちら!
お電話の際は「連合隊の物件」とお伝えください。
情報掲載期限:あと20日(更新日 2026/2/26)
- 物件写真・概要
- 周辺地図
-
【WEB面談可】
販売状況、見学、詳細を知りたい方はこちら!おすすめポイント
- 駐車2台以上可
交通色がついているアイコンをクリックすると、本物件までの道順を見ることができます。
物件概要
建物の階建 地上2階建 主要採光面 構造 木造(2×4) 接道状況 一方 - 南東側幅8.00mの公道に13.00m接道
都市計画区域 市街化区域 私道負担 なし 地目/地勢 宅地 国土法届出 土地権利 所有権 用途地域 - 第1種住居地域(建ぺい率:60% / 容積率:200%)
引渡し 相談 現況 空き 施工業者 (株)キクザワ 取引態様 仲介 物件No 仲介手数料概算 不動産会社へお問合せください 設備・特徴 - 閑静な住宅街
- 日当り良好
- シューズインクローゼット
- トイレ2ヶ所以上
- シャワー付洗面化粧台
- 浴室1坪以上
- システムキッチン
- IHクッキングヒーター
- 食器洗乾燥機
備考 学区色がついているアイコンをクリックすると、本物件までの道順を見ることができます。
主な周辺施設色がついているアイコンをクリックすると、本物件までの道順を見ることができます。
-
ホームページはこちら
北海道知事 石狩(2) 第8391号
(株)エリアネット 千歳店 【WEB面談可】- 保証協会
- (公社)全国宅地建物取引業保証協会
- 公正取引協議会
- (一社)北海道不動産公正取引協議会
※連合隊は物件情報の精度向上に努めています:「物件情報に誤りがある」「成約済みである」などお気付きの点がございましたらこちらよりご連絡ください。
写真枚数:12枚
現地写真
1.2階間取り図面
外玄関
リビング
リビング
キッチン
キッチン
洗面
トイレ
浴室
クローゼット
バルコニー
当社は地域専門・地域密着で活動している会社です。宅建取引士の有資格者や経験豊富なスタッフも在籍。
不動産売買は高額な取引となる為頻繁に経験する事ではありません。安心・安全に取引きを行う事は『当たり前』と当社は考えています。売買仲介・買取・リースバック等のご相談も受け付けております。