サーム千歳ドミニオwing13
ここに注目!◆コンビニや公園まで徒歩5分圏内の好立地、4LDKのファミリータイプのお部屋です◆利回り9.00%◆入居者いらっしゃるためすぐに収益を得られます◆モニター付きインターホンもあり、防犯面も安心♪◆詳細はエリアネット千歳店0123-25-3175まで、お気軽にお問い合わせください!
| 価格 |
880万円
利回り9%
満室時想定年収:79万2,000円
管理費6,600円/月修繕積立金1万3,570円/月
|
|---|---|
| 住所 | 北海道千歳市文京1丁目2-3 |
| 交通 | 千歳相互バス 「文京1丁目」停(徒歩2分) |
| 築年月 | 築33年(1992年6月) |
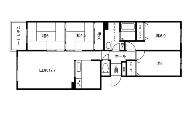
| 間取・専有 |
4LDK(90.23m²)└ LDK17.7帖 和室6帖 和室4.5帖 洋室6.9帖 洋室6帖
|
| 所在階 | 3階 / 地上5階建 |
| 現況 | 賃貸中 |
【WEB面談可】
販売状況、見学、詳細を知りたい方はこちら!
お電話の際は「連合隊の物件」とお伝えください。
新着 情報掲載期限:あと29日(更新日 2026/4/16)
- 物件写真・概要
- 周辺地図
-
【WEB面談可】
販売状況、見学、詳細を知りたい方はこちら!おすすめポイント
- 賃貸中
- 大学・専門近く
- エレベーター
- 2階以上
- オール電化
- 駐車場あり
交通
- 千歳駅JR千歳線バス31分→ 千歳相互バス 「文京1丁目」停徒歩2分
物件概要
土地権利 所有権 主要採光面 構造 鉄筋コンクリート(RC)造 駐車場 あり ※契約者負担料金:6,600円/台※近隣駐車場
バルコニー あり(4.35m²)管理形態 全部委託 管理組合 有 引渡し 相談 管理人 日勤 取引態様 仲介 物件No 仲介手数料概算 不動産会社へお問合せください 設備・特徴 - 大学・専門近く
- エレベーター
- 24時間ゴミ出し可
- 駐輪場
- オール電化
- 納戸・トランクルーム
- IHクッキングヒーター
- カウンターキッチン
- 照明器具付
- コンロ2口
- モニタ付インターホン
- BSアンテナ
備考 主な周辺施設色がついているアイコンをクリックすると、本物件までの道順を見ることができます。
-
ホームページはこちら
北海道知事 石狩(2) 第8391号
(株)エリアネット 千歳店 【WEB面談可】- 保証協会
- (公社)全国宅地建物取引業保証協会
- 公正取引協議会
- (一社)北海道不動産公正取引協議会
※連合隊は物件情報の精度向上に努めています:「物件情報に誤りがある」「成約済みである」などお気付きの点がございましたらこちらよりご連絡ください。
写真枚数:6枚
現地写真
間取り図
コープさっぽろ向陽台店
里美ターザン緑地
ツルハドラッグ千歳向陽台店
千歳白樺郵便局
当社は地域専門・地域密着で活動している会社です。宅建取引士の有資格者や経験豊富なスタッフも在籍。
不動産売買は高額な取引となる為頻繁に経験する事ではありません。安心・安全に取引きを行う事は『当たり前』と当社は考えています。売買仲介・買取・リースバック等のご相談も受け付けております。