グリーンヒル西春日
ここに注目!◆閑静な住環境で生活利便性良好な西春日エリアに立地!◆安心と信頼で人気のグリーンヒルシリーズ!◆南向き3階部分住戸で採光・眺望良好!バランスの取れた間取形成の3LDKタイプ!専有面積75.60㎡!◆嬉しい敷地内駐車場は全戸平置タイプ!◆近隣徒歩圏内にコンビニ・買物施設等生活利便施設充実!※敷地内駐車場の継承は要確認!
| 価格 |
1,780万円
坪単価:約77.9万円/坪
管理費7,600円/月修繕積立金1万4,100円/月
|
|---|---|
| 間取・専有 |
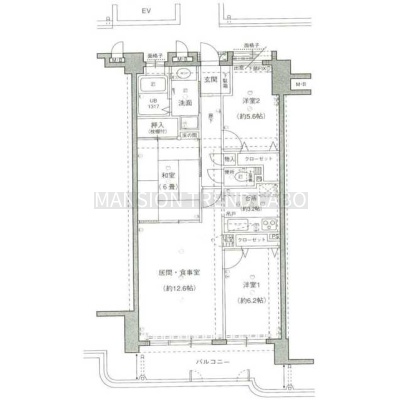
3LDK(75.6m²)└ LDK15.8帖 洋室6.2帖 洋室5.6帖 和室6帖
|
| 住所 | 大分県大分市西春日町8-23 |
| 交通 | 大分交通バス「西春日町バス」停 (徒歩3分)|西大分駅(徒歩17分)道順を見る |
| 築年月 | 築27年(1999年3月) |
| 駐車場 |
あり (7,000円/台) 駐車可能台数:1台
7,000円/月額※区画変更の可能性有! |
【WEB面談可】
販売状況、見学、詳細を知りたい方はこちら!
お電話の際は「連合隊の物件」とお伝えください。
新着 情報掲載期限:あと29日(更新日 2026/3/13)
- 物件写真・概要
- 周辺地図
-
▼クリックで左の拡大画像が変わります。 すべての写真を拡大
-
南向きバルコニーからの眺望!
-
南向き3階部分住戸で採光・眺望良好!バランスの取れた間取形成の3LDKタイプ!専有面積75.60㎡!※間取は現況優先!
-
デザイン性の高い建物外観!
-
緑が溢れるエントランスアプローチ!
-
広々としたエントランスホール!
-
採光・眺望良好な南向きのLDKは広々15.8帖!
-
ビルトイン食洗機付のシステムキッチン!
-
LDK・バルコニーに面した南側洋室6.2帖!クローゼット収納付!
-
LDKに面した和室6畳!床の間スペース・押入収納付!
-
奥行きのある南向きバルコニー!
-
LDKから玄関スペースを望む!
-
ウオシュレット付トイレ!ニッチ・上部棚付!
-
1日の疲れを癒せるユニットバス!人気の窓・浴室換気乾燥機・追炊機能付!
-
出窓付で採光・通風良好な北側洋室5.6帖!
-
北東側洋室5.6帖内クローゼット収納内部!
-
造作の靴箱収納付の玄関ホール!
【WEB面談可】
販売状況、見学、詳細を知りたい方はこちら!おすすめポイント
- 南向き
- 駐車場あり
- 都市ガス
- 追い焚き風呂
- 2階以上
- オートロック
- エレベーター
- 近くて便利!徒歩5分以内にある施設
- 2分
2分- 5分
5分- 4分
4分- 5分
5分- 周辺施設を地図で確認
交通色がついているアイコンをクリックすると、本物件までの道順を見ることができます。
- 西大分駅JR日豊本線徒歩17分(約1.4km)
- 大分交通バス「西春日町バス」停 徒歩3分
物件概要
所在階/建物の階建 3階 / 地上8階建 総戸数 37戸 主要採光面 南 構造 鉄筋コンクリート(RC)造 バルコニー あり(12.03m²)- バルコニー南向き
土地権利 所有権 その他費用 毎月の費用 - 自治会費:250円
- 駐輪場スペース使用料1台:200円
引渡し 相談 現況 入居中 管理人 日勤 管理形態 全部委託 管理組合 有 施工業者 梅林建設㈱ 取引態様 仲介 物件No 仲介手数料概算 65万3,400円(金額は概算です。正確な金額は不動産会社へお問合せ下さい) 設備・特徴 - 閑静な住宅街
- タイル貼り
- エレベーター
- 駐輪場
- 日当り良好
- 室内洗濯機置場
- 照明器具付
- フローリング
- 出窓
- シューズボックス
- 全居室収納あり
- 温水洗浄トイレ
- シャワー付洗面化粧台
- 浴室乾燥機
- 追い焚き風呂
- 浴室暖房
- 浴室に窓
- コンロ3口以上
- システムキッチン
- 都市ガス
- エアコン付
- 防犯カメラ
- オートロック
- ケーブルテレビ
- ブロードバンド回線(光ファイバー等の高速インターネット)
- ピアノ相談可
- 管理員
- 食器洗乾燥機
備考 管理会社/㈱合人社計画研究所 大分市西部・ 閑静な住環境・ 南向き・ 管理員 学区色がついているアイコンをクリックすると、本物件までの道順を見ることができます。
主な周辺施設色がついているアイコンをクリックすると、本物件までの道順を見ることができます。
-
-
ホームページはこちら
大分県知事(3) 第3043号
マンショントレンド・ラボ (有)佐伯ビル 【WEB面談可】- 加入団体
- (一社)大分県宅地建物取引業協会
- 保証協会
- (公社)全国宅地建物取引業保証協会
- 公正取引協議会
- (一社)九州不動産公正取引協議会
※連合隊は物件情報の精度向上に努めています:「物件情報に誤りがある」「成約済みである」などお気付きの点がございましたらこちらよりご連絡ください。
写真枚数:16枚
南向きバルコニーからの眺望!
南向き3階部分住戸で採光・眺望良好!バランスの取れた間取形成の3LDKタイプ!専有面積75.60㎡!※間取は現況優先!
デザイン性の高い建物外観!
緑が溢れるエントランスアプローチ!
広々としたエントランスホール!
採光・眺望良好な南向きのLDKは広々15.8帖!
ビルトイン食洗機付のシステムキッチン!
LDK・バルコニーに面した南側洋室6.2帖!クローゼット収納付!
LDKに面した和室6畳!床の間スペース・押入収納付!
奥行きのある南向きバルコニー!
LDKから玄関スペースを望む!
ウオシュレット付トイレ!ニッチ・上部棚付!
1日の疲れを癒せるユニットバス!人気の窓・浴室換気乾燥機・追炊機能付!
出窓付で採光・通風良好な北側洋室5.6帖!
北東側洋室5.6帖内クローゼット収納内部!
造作の靴箱収納付の玄関ホール!

大分・別府市内の中古マンションのご売却・ご購入の事なら経験豊富・誠心誠意のお手伝いが出来る当社に安心してお任せ下さい! 営業を担当する代表取締役・営業部長が宅地建物取引士・住宅ローンアドバイザー保有!
前職のマンションスタイルクリエイト代表取締役・専務取締役時代からこれまでに中古マンション仲介売買に特化して1300件超の成約実績! 売却査定・購入・住宅ローン・税務全般お任せ下さい! 営業を担当する代表取締役・営業部長が宅地建物取引士・住宅ローンアドバイザーの有資格者! ご見学から住宅ローンの申込・重説・契約・お引渡まで有資格の専任担当者が誠心誠意のお手伝いをさせて頂きます!安心してお任せ下さい!