アドバンス21ブレスティア南春日
ここに注目!◆市内屈指の文教地区南春日エリアに立地!◆人気のペット可!アドバンスシリーズ!◆シニア層・子育てファミリーにお奨め!採光・眺望良好な南向き6階部分住戸!◆奥様の家事が捗る水廻り2WAY動線を採用!バランスの取れた間取形成の3LDKタイプ!専有面積72.39㎡!◆安心・安全・経済的なオール電化タイプ!嬉しい敷地内駐車場1台無料!◆室内綺麗に使われています!◆附属小学校まで徒歩4分(約300m)、附属中学校まで徒歩6分(約451m)。
| 価格 |
3,180万円
坪単価:約145.3万円/坪
管理費6,500円/月修繕積立金5,400円/月
|
|---|---|
| 間取・専有 |
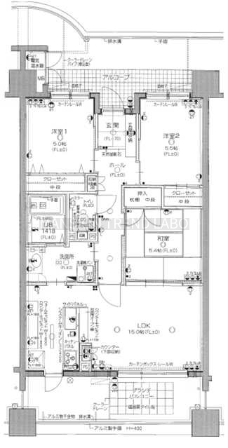
3LDK(72.39m²)└ LDK15帖 和室5.4帖 洋室5.5帖 洋室5帖
|
| 住所 | 大分県大分市南春日町6-45 |
| 交通 | 大分交通バス「大分市営グランド前バス」停 (徒歩1分)|大分駅(徒歩16分)道順を見る |
| 築年月 | 築19年(2006年7月) |
| 駐車場 |
あり 駐車可能台数:1台
※敷地内駐車場1台無料 |
【WEB面談可】
販売状況、見学、詳細を知りたい方はこちら!
お電話の際は「連合隊の物件」とお伝えください。
情報掲載期限:あと24日(更新日 2026/3/7)
- 物件写真・概要
- 周辺地図
-
▼クリックで左の拡大画像が変わります。 すべての写真を拡大
-
デザイン性の高い建物南側外観!
-
良好な南向き6階部分住戸!バランスの取れた間取形成の3LDKタイプ!専有面積72.39㎡!
-
デザイン性の高い建物南側外観!
-
車寄付のエントランスアプローチ!
-
エントランスアプローチ!
-
南向きで採光・眺望良好なLDKは広々15帖!
-
IHクッキングヒーター・ビルトイン食洗機付のシステムキッチン!バルコニーへの勝手口付!
-
キッチン背面にはカップボード付!
-
南向きで採光・眺望良好なLDKは広々15帖!
-
LDKに面した和室5.4畳!押入収納付!
-
奥行きのある南向きバルコニー!嬉しいバルコニー水栓付!
-
南向きバルコニーからの眺望!
-
水廻り2WAY動線を採用した洗面スペース!
-
ランドリースペース!
-
1日の疲れを癒せるユニットバス!追炊機能・浴室換気乾燥機付!
-
タンクレスウオシュレット付トイレ!手洗水栓・上部収納付!
-
北面にルーバー開閉式窓付の北東側洋室5.5帖!クローゼット収納付!
-
北面にルーバー開閉式の窓付!北西側洋室5帖!収納力の高いクローゼット収納付!
-
LDKから玄関を望む!
-
造作の靴箱収納付の玄関ホール!
【WEB面談可】
販売状況、見学、詳細を知りたい方はこちら!おすすめポイント
- 南向き
- 駐車場あり
- リフォーム済み
- オール電化
- 追い焚き風呂
- 2階以上
- ペット相談可
- オートロック
- エレベーター
- 近くて便利!徒歩5分以内にある施設
- 2分
2分- 4分
4分- 周辺施設を地図で確認
交通色がついているアイコンをクリックすると、本物件までの道順を見ることができます。
- 大分駅阿蘇高原線、ゆふ高原線、JR日豊本線徒歩16分(約1.3km)
- 大分交通バス「大分市営グランド前バス」停 徒歩1分
物件概要
所在階/建物の階建 6階 / 地上12階建 総戸数 128戸 主要採光面 南 構造 鉄筋コンクリート(RC)造 バルコニー あり(12.85m²)- バルコニー南向き
土地権利 所有権 その他費用 毎月の費用 - 自治会費:500円
引渡し 相談 現況 空き 管理人 日勤 管理形態 全部委託 管理組合 有 施工業者 西松建設㈱ 取引態様 仲介 物件No 仲介手数料概算 111万5,400円(金額は概算です。正確な金額は不動産会社へお問合せ下さい) 修繕履歴 - 2025年10月頃に部分的にリフォームしています。施工内容:電気温水器及び洗面所のシャワーホースを交換
設備・特徴 - 閑静な住宅街
- タイル貼り
- エレベーター
- 駐輪場
- バイク置き場
- 日当り良好
- オール電化
- 室内洗濯機置場
- フローリング
- バリアフリー
- 天井高2.5m以上
- 二重サッシ
- 全居室収納あり
- シューズボックス
- 温水洗浄トイレ
- シャワー付洗面化粧台
- 浴室乾燥機
- 追い焚き風呂
- 浴室暖房
- コンロ3口以上
- IHクッキングヒーター
- システムキッチン
- カウンターキッチン
- 食器洗乾燥機
- 浄水器
- 24時間換気システム
- 電気温水器
- オートロック
- モニタ付インターホン
- 防犯カメラ
- 宅配BOX
- ディンプルキー
- ケーブルテレビ
- BSアンテナ
- CSアンテナ
- ブロードバンド回線(光ファイバー等の高速インターネット)
- ペット相談可
- 猫相談可
- ピアノ相談可
- 管理員
- 照明器具付
備考 管理会社/㈱合人社計画研究所 オール電化・ 大分市西部・ 管理員・ 閑静な住環境・ 来客用駐車場・ ペット可(条件有)・ スロップシンク・ 南向き・ 室内程度良好 学区色がついているアイコンをクリックすると、本物件までの道順を見ることができます。
主な周辺施設色がついているアイコンをクリックすると、本物件までの道順を見ることができます。
-
-
ホームページはこちら
大分県知事(3) 第3043号
マンショントレンド・ラボ (有)佐伯ビル 【WEB面談可】- 加入団体
- (一社)大分県宅地建物取引業協会
- 保証協会
- (公社)全国宅地建物取引業保証協会
- 公正取引協議会
- (一社)九州不動産公正取引協議会
※連合隊は物件情報の精度向上に努めています:「物件情報に誤りがある」「成約済みである」などお気付きの点がございましたらこちらよりご連絡ください。
写真枚数:20枚
デザイン性の高い建物南側外観!
良好な南向き6階部分住戸!バランスの取れた間取形成の3LDKタイプ!専有面積72.39㎡!
デザイン性の高い建物南側外観!
車寄付のエントランスアプローチ!
エントランスアプローチ!
南向きで採光・眺望良好なLDKは広々15帖!
IHクッキングヒーター・ビルトイン食洗機付のシステムキッチン!バルコニーへの勝手口付!
キッチン背面にはカップボード付!
南向きで採光・眺望良好なLDKは広々15帖!
LDKに面した和室5.4畳!押入収納付!
奥行きのある南向きバルコニー!嬉しいバルコニー水栓付!
南向きバルコニーからの眺望!
水廻り2WAY動線を採用した洗面スペース!
ランドリースペース!
1日の疲れを癒せるユニットバス!追炊機能・浴室換気乾燥機付!
タンクレスウオシュレット付トイレ!手洗水栓・上部収納付!
北面にルーバー開閉式窓付の北東側洋室5.5帖!クローゼット収納付!
北面にルーバー開閉式の窓付!北西側洋室5帖!収納力の高いクローゼット収納付!
LDKから玄関を望む!
造作の靴箱収納付の玄関ホール!

大分・別府市内の中古マンションのご売却・ご購入の事なら経験豊富・誠心誠意のお手伝いが出来る当社に安心してお任せ下さい! 営業を担当する代表取締役・営業部長が宅地建物取引士・住宅ローンアドバイザー保有!
前職のマンションスタイルクリエイト代表取締役・専務取締役時代からこれまでに中古マンション仲介売買に特化して1300件超の成約実績! 売却査定・購入・住宅ローン・税務全般お任せ下さい! 営業を担当する代表取締役・営業部長が宅地建物取引士・住宅ローンアドバイザーの有資格者! ご見学から住宅ローンの申込・重説・契約・お引渡まで有資格の専任担当者が誠心誠意のお手伝いをさせて頂きます!安心してお任せ下さい!