つかさアーバングリーン大道
ここに注目!◆あなたもプチ大家さんになってみませんか?最初の不動産投資!将来の自己年金費用捻出に最適!◆生活利便性良好な大道エリア!つかさのアーバングリーンシリーズ!シングル・DINKSにおススメの最上階住戸の2Kタイプ!専有面積26.6平米!◆想定月額賃料収入3.3万円・想定年額賃料収入39.6万円・想定年間表面利回り12.77%!!◆生活利便性良好な周辺環境!JR日豊本線大分駅までのアクセスも良好で、今後も安定した賃貸需要が見込めます!◆人気のペット可!(条件有)で将来の自己居住用にも適します!※現在、締結している管理会社との管理委託契約の継承が条件となります!◆人気のペット可(犬か猫どちらか1匹飼育可!)
| 価格 |
310万円
坪単価:約38.6万円/坪
管理費5,000円/月修繕積立金3,000円/月
|
|---|---|
| 間取・専有 |
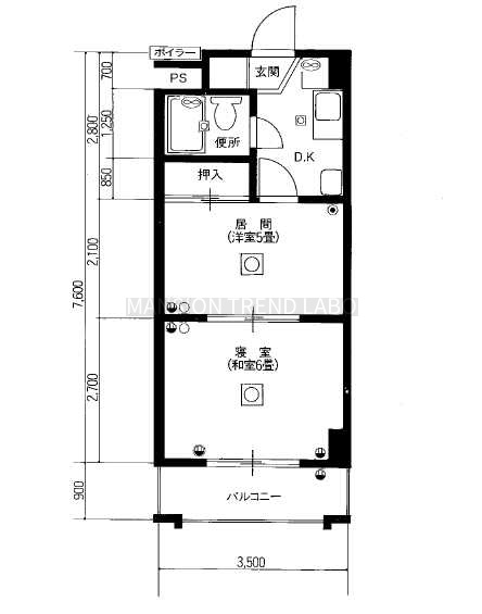
2K(26.6m²)└ K2.5帖 洋室6帖 洋室5帖
|
| 住所 | 大分県大分市大道町4丁目3-11 |
| 交通 | 大分駅(徒歩13分)|大分バス「大道4丁目バス」停 (徒歩5分)道順を見る |
| 築年月 | 築41年(1985年2月) |
| 駐車場 |
近隣月極駐車場
|
【WEB面談可】
販売状況、見学、詳細を知りたい方はこちら!
お電話の際は「連合隊の物件」とお伝えください。
情報掲載期限:あと30日(更新日 2026/3/7)
- 物件写真・概要
- 周辺地図
-
▼クリックで左の拡大画像が変わります。 すべての写真を拡大
【WEB面談可】
販売状況、見学、詳細を知りたい方はこちら!おすすめポイント
- 2階以上
- 最上階
- ペット相談可
- エレベーター
- 近くて便利!徒歩5分以内にある施設
- 5分
5分- 5分
5分- 周辺施設を地図で確認
交通色がついているアイコンをクリックすると、本物件までの道順を見ることができます。
- 大分駅阿蘇高原線、ゆふ高原線、JR日豊本線徒歩13分(約999m)
- 大分バス「大道4丁目バス」停 徒歩5分
物件概要
所在階/建物の階建 7階 / 地上7階建 総戸数 78戸 主要採光面 東 構造 鉄筋コンクリート(RC)造 バルコニー あり(3.5m²)土地権利 所有権 その他費用 毎月の費用 - 自治会費:4万5,050円
- 水道料定額:3,000円
引渡し 相談(※現在、賃貸中の為、室内のご見学は出来ません!) 現況 入居中 管理人 巡回 管理形態 全部委託 管理組合 有 施工業者 ㈱司建設 取引態様 仲介 物件No 仲介手数料概算 33万円(金額は概算です。正確な金額は不動産会社へお問合せ下さい) 設備・特徴 - 閑静な住宅街
- エレベーター
- 駐輪場
- バイク置き場
- 最上階
- 照明器具付
- フローリング
- シューズボックス
- LPガス
- エアコン付
- ケーブルテレビ
- ブロードバンド回線(光ファイバー等の高速インターネット)
- ペット相談可
- 猫相談可
備考 管理会社/㈱つかさビル管理 大分市中心部・ 東向き・ 閑静な住環境・ ペット可(条件有)(犬か猫どちらか1匹飼育可!)・ オーナーチェンジ・ 最上階※近隣敷地外駐車場の空き状況は要確認!※敷金有・継承可!※司法書士は売主指定となります! 学区色がついているアイコンをクリックすると、本物件までの道順を見ることができます。
主な周辺施設色がついているアイコンをクリックすると、本物件までの道順を見ることができます。
-
ホームページはこちら
大分県知事(3) 第3043号
マンショントレンド・ラボ (有)佐伯ビル 【WEB面談可】- 加入団体
- (一社)大分県宅地建物取引業協会
- 保証協会
- (公社)全国宅地建物取引業保証協会
- 公正取引協議会
- (一社)九州不動産公正取引協議会
※連合隊は物件情報の精度向上に努めています:「物件情報に誤りがある」「成約済みである」などお気付きの点がございましたらこちらよりご連絡ください。
写真枚数:6枚
デザイン性の高い建物外観!
採光・眺望良好な東向き最上階住戸!2Kタイプ!
デザイン性の高い建物外観!
エレベーターホール内集合郵便ポスト!
エントランスアプローチ!
敷地内駐輪場スペース!

大分・別府市内の中古マンションのご売却・ご購入の事なら経験豊富・誠心誠意のお手伝いが出来る当社に安心してお任せ下さい! 営業を担当する代表取締役・営業部長が宅地建物取引士・住宅ローンアドバイザー保有!
前職のマンションスタイルクリエイト代表取締役・専務取締役時代からこれまでに中古マンション仲介売買に特化して1300件超の成約実績! 売却査定・購入・住宅ローン・税務全般お任せ下さい! 営業を担当する代表取締役・営業部長が宅地建物取引士・住宅ローンアドバイザーの有資格者! ご見学から住宅ローンの申込・重説・契約・お引渡まで有資格の専任担当者が誠心誠意のお手伝いをさせて頂きます!安心してお任せ下さい!