サンパーク金池EXIA
ここに注目!◆価格変更しました!◆JR日豊本線大分駅まで徒歩9分の好立地!人気のペット可!2018年築のサンパークシリーズ!◆採光・通風・眺望に優れた東南西角部屋!収納スペース充実!開放的な間取形成の4LDK+WIC!専有面積80.97㎡!南・西2面バルコニー付!◆セントラル浄水システム・各住戸に災害緊急キットの常備を採用!
| 価格 |
4,880万円
坪単価:約199.3万円/坪
管理費9,980円/月修繕積立金4,860円/月
|
|---|---|
| 間取・専有 |
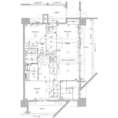
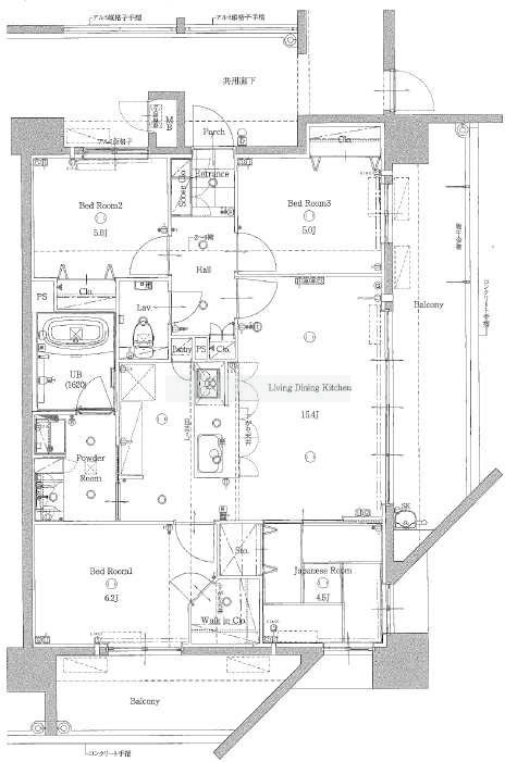
4SLDK(80.97m²)└ LDK15.4帖 洋室6.2帖 洋室5帖 洋室5帖 和室4.5帖
|
| 住所 | 大分県大分市顕徳町1丁目5-15 |
| 交通 | 大分バス「上野中学校前バス」停 (徒歩3分)|大分駅(徒歩8分)道順を見る |
| 築年月 | 築7年(2018年10月) |
| 駐車場 |
あり (7,500円/台) 駐車可能台数:1台
※継承については要確認! |
【WEB面談可】
販売状況、見学、詳細を知りたい方はこちら!
お電話の際は「連合隊の物件」とお伝えください。
情報掲載期限:あと30日(更新日 2025/12/26)
- 物件写真・概要
- 周辺地図
-
▼クリックで左の拡大画像が変わります。 すべての写真を拡大
【WEB面談可】
販売状況、見学、詳細を知りたい方はこちら!おすすめポイント
- 南向き
- 駐車場あり
- 都市ガス
- 角部屋
- 追い焚き風呂
- 2階以上
- ペット相談可
- オートロック
- エレベーター
- 近くて便利!徒歩5分以内にある施設
- 3分
3分- 5分
5分- 周辺施設を地図で確認
交通色がついているアイコンをクリックすると、本物件までの道順を見ることができます。
- 大分駅阿蘇高原線、ゆふ高原線、JR日豊本線徒歩8分(約639m)
- 大分バス「上野中学校前バス」停 徒歩3分
物件概要
所在階/建物の階建 4階 / 地上11階建 総戸数 58戸 主要採光面 南 構造 鉄筋コンクリート(RC)造 バルコニー あり(24.08m²)- バルコニー2面以上
- バルコニー南向き
土地権利 所有権 その他費用 毎月の費用 - 自治会費:300円
引渡し 相談 現況 空き 管理人 日勤 管理形態 全部委託 管理組合 有 施工業者 株式会社菅組 取引態様 仲介 物件No 仲介手数料概算 167万6,400円(金額は概算です。正確な金額は不動産会社へお問合せ下さい) 設備・特徴 - タイル貼り
- エレベーター
- 駐輪場
- 角部屋
- 照明器具付
- 室内洗濯機置場
- バリアフリー
- フローリング
- 3面採光
- 二重サッシ
- 天井高2.5m以上
- ウォークインクローゼット
- シューズボックス
- 全居室収納あり
- 温水洗浄トイレ
- シャワー付洗面化粧台
- 浴室乾燥機
- 追い焚き風呂
- 浴室暖房
- コンロ3口以上
- システムキッチン
- カウンターキッチン
- 食器洗乾燥機
- 浄水器
- 都市ガス
- 24時間換気システム
- エコジョーズ
- オートロック
- モニタ付インターホン
- 防犯カメラ
- 宅配BOX
- ディンプルキー
- ケーブルテレビ
- BSアンテナ
- CSアンテナ
- ブロードバンド回線(光ファイバー等の高速インターネット)
- ペット相談可
- 猫相談可
- ピアノ相談可
- 管理員
- 日当り良好
- プライスダウン
備考 管理会社/大英リビングサポート㈱ 大分市中心部・ 管理員・スロップシンク・ ペット可(条件有)・ スロップシンク・ ワイドバルコニー・ 室内程度良好・ 南向き・ 角部屋・ ウォークインクローゼット・ 2面バルコニー※1住戸につき犬・猫合計3匹まで・可燃ゴミ回収サービス有! 学区色がついているアイコンをクリックすると、本物件までの道順を見ることができます。
主な周辺施設色がついているアイコンをクリックすると、本物件までの道順を見ることができます。
-
ホームページはこちら
大分県知事(3) 第3043号
マンショントレンド・ラボ (有)佐伯ビル 【WEB面談可】- 加入団体
- (一社)大分県宅地建物取引業協会
- 保証協会
- (公社)全国宅地建物取引業保証協会
- 公正取引協議会
- (一社)九州不動産公正取引協議会
※連合隊は物件情報の精度向上に努めています:「物件情報に誤りがある」「成約済みである」などお気付きの点がございましたらこちらよりご連絡ください。
写真枚数:16枚
バルコニーからの眺望!
採光・通風・眺望に優れた東南西角部屋!
デザイン性の高い建物外観!
エントランスアプローチ!
人気の宅配ボックス完備!
エントランス風除室!
南向きのLDKは広々15.4帖!東側から望む!
南向きのLDKは広々15.4帖!
動線が充分確保されたキッチンスペース!
ビルトイン食洗機付のシステムキッチン!
南向きのLDKは広々15.4帖!キッチン側から望む!
南面バルコニーにはスロップシンク付!
収納充実の洗面化粧台!
ランドリースペース!・上部収納付!
1日の疲れを癒せるユニットバス!浴室換気乾燥機付!
ウオシュレット付トイレ!上部収納付!

大分・別府市内の中古マンションのご売却・ご購入の事なら経験豊富・誠心誠意のお手伝いが出来る当社に安心してお任せ下さい! 営業を担当する代表取締役・営業部長が宅地建物取引士・住宅ローンアドバイザー保有!
前職のマンションスタイルクリエイト代表取締役・専務取締役時代からこれまでに中古マンション仲介売買に特化して1300件超の成約実績! 売却査定・購入・住宅ローン・税務全般お任せ下さい! 営業を担当する代表取締役・営業部長が宅地建物取引士・住宅ローンアドバイザーの有資格者! ご見学から住宅ローンの申込・重説・契約・お引渡まで有資格の専任担当者が誠心誠意のお手伝いをさせて頂きます!安心してお任せ下さい!