グリーンヒル明野
ここに注目!◆マンション周辺には緑の残る閑静な住環境!安心と信頼で人気のグリーンヒルシリーズ!◆採光・眺望良好な南向き高層階7階住戸!バランスの取れた間取形成の3LDKタイプ!専有面積68.79㎡!◆嬉しい屋内平面駐車場1台継承可!◆2013年5月大規模修繕工事実施済で管理面も安心です!◆近隣徒歩圏内に買物・郵便局等生活利便施設が充実!生活利便性良好!
| 価格 |
1,280万円
坪単価:約61.5万円/坪
管理費6,200円/月修繕積立金5,000円/月
|
|---|---|
| 間取・専有 |
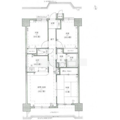
3LDK(68.79m²)└ LDK13.2帖 和室6帖 洋室6帖 洋室5.4帖
|
| 住所 | 大分県大分市猪野957-16 |
| 交通 | 高城駅(徒歩22分)|大分バス「猪野団地入口」停 (徒歩3分) |
| 築年月 | 築33年(1992年6月) |
| 駐車場 |
あり (6,500円/台) 駐車可能台数:1台
※屋内駐車場継承可! |
【WEB面談可】
販売状況、見学、詳細を知りたい方はこちら!
お電話の際は「連合隊の物件」とお伝えください。
情報掲載期限:あと23日(更新日 2026/3/9)
- 物件写真・概要
- 周辺地図
-
▼クリックで左の拡大画像が変わります。 すべての写真を拡大
【WEB面談可】
販売状況、見学、詳細を知りたい方はこちら!おすすめポイント
- 南向き
- 駐車場あり
- 都市ガス
- 2階以上
- オートロック
- エレベーター
- 近くて便利!徒歩5分以内にある施設
- 5分
5分- 5分
5分- 周辺施設を地図で確認
交通色がついているアイコンをクリックすると、本物件までの道順を見ることができます。
- 高城駅JR日豊本線徒歩22分(約1.7km)
- 大分バス「猪野団地入口」停 徒歩3分
物件概要
所在階/建物の階建 7階 / 地上8階建 総戸数 72戸 主要採光面 南 構造 鉄筋コンクリート(RC)造 バルコニー あり(8.56m²)- バルコニー南向き
土地権利 所有権 その他費用 毎月の費用 - 管理組合費:100円
- 自治会費:400円
その他 - 運営費:200円
- 駐輪場スペース使用料1台:200円
引渡し 相談 現況 空き 管理人 日勤 管理形態 全部委託 管理組合 有 施工業者 東洋建設㈱ 取引態様 仲介 物件No 仲介手数料概算 48万8,400円(金額は概算です。正確な金額は不動産会社へお問合せ下さい) 修繕履歴 - 2013年5月頃に建物全体を部分的にリフォームしています。施工内容:大規模修繕工事
設備・特徴 - 閑静な住宅街
- タイル貼り
- エレベーター
- 駐輪場
- バイク置き場
- 日当り良好
- 室内洗濯機置場
- フローリング
- シューズボックス
- 全居室収納あり
- 温水洗浄トイレ
- シャワー付洗面化粧台
- コンロ3口以上
- システムキッチン
- カウンターキッチン
- 都市ガス
- オートロック
- モニタ付インターホン
- 防犯カメラ
- ケーブルテレビ
- ブロードバンド回線(光ファイバー等の高速インターネット)
- ピアノ相談可
- 管理員
- 屋内駐車場
備考 管理会社/ランドメンテナンス㈱ 大分市東部・ 閑静な住環境・ プレイロット・ 管理員・ 南向き※敷地内駐車場は継承可!近隣に駐車場有・現在は空き有(都度確認要)月額5,000円※現況有姿売買が条件となります! 学区色がついているアイコンをクリックすると、本物件までの道順を見ることができます。
主な周辺施設色がついているアイコンをクリックすると、本物件までの道順を見ることができます。
-
ホームページはこちら
大分県知事(3) 第3043号
マンショントレンド・ラボ (有)佐伯ビル 【WEB面談可】- 加入団体
- (一社)大分県宅地建物取引業協会
- 保証協会
- (公社)全国宅地建物取引業保証協会
- 公正取引協議会
- (一社)九州不動産公正取引協議会
※連合隊は物件情報の精度向上に努めています:「物件情報に誤りがある」「成約済みである」などお気付きの点がございましたらこちらよりご連絡ください。
写真枚数:15枚
デザイン性の高い建物外観!
南向きバルコニーからの眺望!
南向き7階部分住戸!バランスの取れた3LDK!
広々としたエントランスホール!
敷地内プレイロット!
緑が溢れるエントランスアプローチ!
南向きのLDKは13.2帖!バルコニー側から望む!
動線が充分確保されたキッチンスペース!
LDKに面した和室6畳!押入収納収納充実!
奥行きのある南向きバルコニー!
ウオシュレット付トイレ!
シャンプードレッサータイプの洗面化粧台!
1日の疲れを癒せるユニットバス!
北面に窓付で採光・通風良好な北東側洋室5.4帖
北西側洋室6帖!クローゼット収納内部!

大分・別府市内の中古マンションのご売却・ご購入の事なら経験豊富・誠心誠意のお手伝いが出来る当社に安心してお任せ下さい! 営業を担当する代表取締役・営業部長が宅地建物取引士・住宅ローンアドバイザー保有!
前職のマンションスタイルクリエイト代表取締役・専務取締役時代からこれまでに中古マンション仲介売買に特化して1300件超の成約実績! 売却査定・購入・住宅ローン・税務全般お任せ下さい! 営業を担当する代表取締役・営業部長が宅地建物取引士・住宅ローンアドバイザーの有資格者! ご見学から住宅ローンの申込・重説・契約・お引渡まで有資格の専任担当者が誠心誠意のお手伝いをさせて頂きます!安心してお任せ下さい!