グラディス大分駅前
ここに注目!◆JR大分駅まで徒歩4分の好立地!令和4年2月竣工の築浅物件!◆人気のペット可!(1住戸2匹まで可)要町エリアに立地するグラディスマンション!◆採光・眺望・通風に優れた高層階12階部分の南西角部屋!◆収納充実!全居室フローリングタイプ!バランスの取れた間取形成の3LDKタイプ!専有面積72.87㎡!室内綺麗に保たれています!◆奥行き最大2m!南西向きのバルコニーにはスロップシンク付!◆終の棲家に最適!徒歩圏内に駅、小・中学校、買物施設、郵便局等が充実!生活利便性良好!温泉・映画館・アミュプラザ等テナント充実のJR大分シティまで徒歩4分(約270m)、ファミリーマート大分金池1丁目店まで徒歩2分(約110m)、ドラッグイレブンJR大分駅上野の森口店、ゲオ大分駅前店まで共に徒歩3分(約190m)、KCA・アクロスプラザ大分駅南まで徒歩4分(約300m)、日々の運動不足解消にスポーツクラブルネサンス大分店まで徒歩6分(約497m)、子育て中のファミリー層にも嬉しい立地!金池小学校まで徒歩9分(約680m)、上野ヶ丘中学校まで徒歩7分(約510m)とお子様の通学も安心です。
| 価格 |
5,100万円
坪単価:約231.4万円/坪
管理費1万690円/月修繕積立金9,220円/月
|
|---|---|
| 間取・専有 |
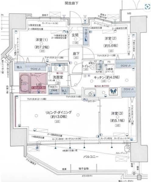
3LDK(72.87m²)└ LDK17帖 洋室7.2帖 洋室5.6帖 洋室5.1帖
|
| 住所 | 大分県大分市要町5-20 |
| 交通 | 大分バス「金池南2丁目」停 (徒歩2分)|大分駅(徒歩5分)道順を見る |
| 築年月 | 築4年(2022年2月) |
| 駐車場 |
あり (8,000円/台) 駐車可能台数:1台
※タワーパーキング2台空き有!車高1800mm等の制限有!※都度確認要す! |
【WEB面談可】
販売状況、見学、詳細を知りたい方はこちら!
お電話の際は「連合隊の物件」とお伝えください。
情報掲載期限:あと12日(更新日 2026/2/17)
- 物件写真・概要
- 周辺地図
-
▼クリックで左の拡大画像が変わります。 すべての写真を拡大
【WEB面談可】
販売状況、見学、詳細を知りたい方はこちら!おすすめポイント
- 築5年以内
- 駐車場あり
- 都市ガス
- 角部屋
- 追い焚き風呂
- 2階以上
- ペット相談可
- オートロック
- エレベーター
- 駅徒歩5分以内
- 近くて便利!徒歩5分以内にある施設
- 4分
4分- 周辺施設を地図で確認
交通色がついているアイコンをクリックすると、本物件までの道順を見ることができます。
- 大分駅阿蘇高原線、ゆふ高原線、JR日豊本線徒歩5分(約342m)
- 大分バス「金池南2丁目」停 徒歩2分
物件概要
所在階/建物の階建 12階 / 地上14階建 総戸数 52戸 主要採光面 南西 構造 鉄筋コンクリート(RC)造 バルコニー あり(15m²)土地権利 所有権 その他費用 毎月の費用 - インターネット使用料:1,111円
- 自治会費:500円
- GMアソシエライフアップサービス:275円
その他 - 駐輪場スペース使用料1台:200円
- バイク置場スペース使用料1台:1,000円
引渡し 相談 現況 空き 管理人 日勤 管理形態 全部委託 管理組合 有 施工業者 ㈱菅組 取引態様 仲介 物件No 仲介手数料概算 174万9,000円(金額は概算です。正確な金額は不動産会社へお問合せ下さい) 設備・特徴 - タイル貼り
- エレベーター
- 駐輪場
- バイク置き場
- 角部屋
- 日当り良好
- 室内洗濯機置場
- バリアフリー
- フローリング
- 防音壁
- 3面採光
- 出窓
- 二重サッシ
- 天井高2.5m以上
- シューズボックス
- 全居室収納あり
- 温水洗浄トイレ
- シャワー付洗面化粧台
- 浴室乾燥機
- 追い焚き風呂
- 浴室暖房
- 浴室に窓
- IHクッキングヒーター
- コンロ3口以上
- システムキッチン
- カウンターキッチン
- 食器洗乾燥機
- 浄水器
- 都市ガス
- 床暖房
- 24時間換気システム
- オートロック
- モニタ付インターホン
- 防犯カメラ
- 宅配BOX
- ディンプルキー
- ケーブルテレビ
- ブロードバンド回線(光ファイバー等の高速インターネット)
- ペット相談可
- 猫相談可
- 管理員
- ウォークインクローゼット
- プライスダウン
備考 管理会社/㈱GMアソシエ 大分市中心部・ 管理員・ スロップシンク・ ペット可(条件有)※1住戸2匹まで・室内程度良好・ ウォークインクローゼット・ 南西向き・ ワイドバルコニー※敷地内タワー式駐車場、駐輪場、バイク置場の空き状況は都度確認を要す! 学区色がついているアイコンをクリックすると、本物件までの道順を見ることができます。
主な周辺施設色がついているアイコンをクリックすると、本物件までの道順を見ることができます。
-
ホームページはこちら
大分県知事(3) 第3043号
マンショントレンド・ラボ (有)佐伯ビル 【WEB面談可】- 加入団体
- (一社)大分県宅地建物取引業協会
- 保証協会
- (公社)全国宅地建物取引業保証協会
- 公正取引協議会
- (一社)九州不動産公正取引協議会
※連合隊は物件情報の精度向上に努めています:「物件情報に誤りがある」「成約済みである」などお気付きの点がございましたらこちらよりご連絡ください。
写真枚数:14枚
南西向きバルコニーからの眺望1
採光・通風・眺望に優れた南西角部屋!
デザイン性の高い建物外観!
ホテルライクなエントランスホール!
人気の宅配ボックス完備!
エントランスアプローチ!
広々としたLDKは広々17帖!床暖房付!
動線が充分確保されたキッチンスペース
IHクッキングヒータータイプのシステムキッチン!
奥行きのある南西向きバルコニー!スロップシンク付!
窓・追炊機能・浴室換気乾燥機・TV付!
広々とした洋室7.2帖!
玄関ホール内造作の靴箱収納内部!
玄関ホールから室内を望む!

大分・別府市内の中古マンションのご売却・ご購入の事なら経験豊富・誠心誠意のお手伝いが出来る当社に安心してお任せ下さい! 営業を担当する代表取締役・営業部長が宅地建物取引士・住宅ローンアドバイザー保有!
前職のマンションスタイルクリエイト代表取締役・専務取締役時代からこれまでに中古マンション仲介売買に特化して1300件超の成約実績! 売却査定・購入・住宅ローン・税務全般お任せ下さい! 営業を担当する代表取締役・営業部長が宅地建物取引士・住宅ローンアドバイザーの有資格者! ご見学から住宅ローンの申込・重説・契約・お引渡まで有資格の専任担当者が誠心誠意のお手伝いをさせて頂きます!安心してお任せ下さい!