ドゥペール観海寺
ここに注目!◆価格変更しました!別府観海寺エリアの人気のドゥペールシリーズ!◆閑静な住環境小高い丘陵地に立地し採光・通風・眺望良好!絶景のパノラマビューが楽しめます!◆1フロア2邸で戸建感覚!採光・通風・眺望に優れた高層階の東南角部屋!広々としたLDK32帖をを擁する3LDK+Sタイプ!専有面積144.46㎡!東・南・北3面バルコニー付!
| 価格 |
1,790万円
坪単価:約41.0万円/坪
管理費9,000円/月修繕積立金1万5,000円/月
|
|---|---|
| 間取・専有 |
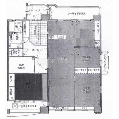
3SLDK(144.46m²)└ LDK32帖 洋室6帖 洋室10帖 和室10帖 S5帖
|
| 住所 | 大分県別府市南立石八幡町2270-4 |
| 交通 | 別府駅(徒歩32分)|亀の井バス「観海寺橋」停 (徒歩2分) |
| 築年月 | 築25年(2000年8月) |
| 駐車場 |
あり 駐車可能台数:1台
※継承可!※来客用駐車場有! |
【WEB面談可】
販売状況、見学、詳細を知りたい方はこちら!
お電話の際は「連合隊の物件」とお伝えください。
情報掲載期限:あと24日(更新日 2025/12/7)
- 物件写真・概要
- 周辺地図
-
▼クリックで左の拡大画像が変わります。 すべての写真を拡大
【WEB面談可】
販売状況、見学、詳細を知りたい方はこちら!おすすめポイント
- 南向き
- 駐車場あり
- 角部屋
- 追い焚き風呂
- 2階以上
- エレベーター
- 近くて便利!徒歩5分以内にある施設
- 2分
2分- 2分
2分- 周辺施設を地図で確認
交通色がついているアイコンをクリックすると、本物件までの道順を見ることができます。
- 別府駅JR日豊本線徒歩32分(約2.5km)
- 亀の井バス「観海寺橋」停 徒歩2分
物件概要
所在階/建物の階建 12階 / 地上14階 地下1階建 総戸数 28戸 主要採光面 南 構造 鉄骨鉄筋コンクリート(SRC)造 バルコニー あり(22.18m²)- バルコニー2面以上
- バルコニー南向き
土地権利 所有権 その他費用 毎月の費用 - 自治会費:500円
その他 - ガーデン維持費:500円
- 駐輪場スペース使用料1台:100円
- バイク置場スペース使用料1台:200円
引渡し 相談 現況 空き 管理人 巡回 管理形態 全部委託 管理組合 有 施工業者 豊建設工業㈱ 取引態様 仲介 物件No 仲介手数料概算 65万6,700円(金額は概算です。正確な金額は不動産会社へお問合せ下さい) 設備・特徴 - 閑静な住宅街
- タイル貼り
- エレベーター
- 駐輪場
- バイク置き場
- 角部屋
- 日当り良好
- 照明器具付
- 室内洗濯機置場
- フローリング
- 3面採光
- 天井高2.5m以上
- 納戸・トランクルーム
- シューズボックス
- 全居室収納あり
- 温水洗浄トイレ
- シャワー付洗面化粧台
- 追い焚き風呂
- 浴室に窓
- コンロ3口以上
- システムキッチン
- カウンターキッチン
- LPガス
- 防犯カメラ
- ケーブルテレビ
- ブロードバンド回線(光ファイバー等の高速インターネット)
- リゾート向け
- プライスダウン
備考 管理会社/㈱ベツダイ 南向き・ 角部屋・ 別府市・ 3面バルコニー・ 閑静な住環境・ 1フロア2邸・ 東南角部屋・ 戸建感覚・ プライスダウン・ 来客用駐車場・ 室内程度良好 学区色がついているアイコンをクリックすると、本物件までの道順を見ることができます。
主な周辺施設色がついているアイコンをクリックすると、本物件までの道順を見ることができます。
-
ホームページはこちら
大分県知事(3) 第3043号
マンショントレンド・ラボ (有)佐伯ビル 【WEB面談可】- 加入団体
- (一社)大分県宅地建物取引業協会
- 保証協会
- (公社)全国宅地建物取引業保証協会
- 公正取引協議会
- (一社)九州不動産公正取引協議会
※連合隊は物件情報の精度向上に努めています:「物件情報に誤りがある」「成約済みである」などお気付きの点がございましたらこちらよりご連絡ください。
写真枚数:5枚
デザイン性の高い建物南側外観!
採光・通風・眺望に優れた東南角部屋!
デザイン性の高い建物北側外観!
エントランスアプローチ!
エントランス入口!

大分・別府市内の中古マンションのご売却・ご購入の事なら経験豊富・誠心誠意のお手伝いが出来る当社に安心してお任せ下さい! 営業を担当する代表取締役・営業部長が宅地建物取引士・住宅ローンアドバイザー保有!
前職のマンションスタイルクリエイト代表取締役・専務取締役時代からこれまでに中古マンション仲介売買に特化して1300件超の成約実績! 売却査定・購入・住宅ローン・税務全般お任せ下さい! 営業を担当する代表取締役・営業部長が宅地建物取引士・住宅ローンアドバイザーの有資格者! ご見学から住宅ローンの申込・重説・契約・お引渡まで有資格の専任担当者が誠心誠意のお手伝いをさせて頂きます!安心してお任せ下さい!