サーパス牧
ここに注目!◆価格変更しました!◆閑静な住環境で生活利便性の高い牧エリアに立地!安心と信頼で人気のサーパスシリーズ!◆採光・通風・眺望良好な3階部分の南西角部屋!収納充実!バランスの取れた間取形成の3LDKタイプ!専有面積76.18㎡!南・西・北3面バルコニー!戸建感覚!玄関門扉・ポーチ付!◆マンション供給の少ない東大分小学校・城東中学校区!
| 価格 |
1,390万円
坪単価:約60.3万円/坪
管理費9,500円/月修繕積立金1万4,500円/月
|
|---|---|
| 間取・専有 |
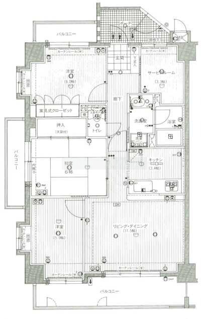
3SLDK(76.18m²)└ LDK14.9帖 洋室6帖 洋室6帖 洋室5.9帖 和室6帖 S3.3帖
|
| 住所 | 大分県大分市牧3丁目15-12 |
| 交通 | 大分バス「城東中学校前バス」停 (徒歩2分)|牧駅(徒歩12分)道順を見る |
| 築年月 | 築28年(1997年2月) |
| 駐車場 |
あり (6,000円/台) 駐車可能台数:1台
|
【WEB面談可】
販売状況、見学、詳細を知りたい方はこちら!
お電話の際は「連合隊の物件」とお伝えください。
情報掲載期限:あと26日(更新日 2025/12/21)
- 物件写真・概要
- 周辺地図
-
▼クリックで左の拡大画像が変わります。 すべての写真を拡大
【WEB面談可】
販売状況、見学、詳細を知りたい方はこちら!おすすめポイント
- 南向き
- 駐車場あり
- 都市ガス
- 角部屋
- 2階以上
- オートロック
- エレベーター
交通色がついているアイコンをクリックすると、本物件までの道順を見ることができます。
- 牧駅JR日豊本線徒歩12分(約915m)
- 大分バス「城東中学校前バス」停 徒歩2分
物件概要
所在階/建物の階建 3階 / 地上6階建 総戸数 29戸 主要採光面 南 構造 鉄筋コンクリート(RC)造 バルコニー あり(16.73m²)- バルコニー2面以上
- バルコニー南向き
土地権利 所有権 その他費用 毎月の費用 - 自治会費:500円
その他 - 駐輪場スペース使用料1台月額:200円
- バイク置場スペース使用料1台月額:300円
引渡し 相談 現況 入居中 管理人 日勤 管理形態 全部委託 管理組合 有 施工業者 ㈱穴吹工務店 取引態様 仲介 物件No 仲介手数料概算 52万4,700円(金額は概算です。正確な金額は不動産会社へお問合せ下さい) 修繕履歴 - 2009年11月頃に屋根・外壁・建物全体をリフォームしています。施工内容:大規模修繕工事
設備・特徴 - 閑静な住宅街
- タイル貼り
- エレベーター
- 駐輪場
- バイク置き場
- 角部屋
- 日当り良好
- 室内洗濯機置場
- フローリング
- 3面採光
- 出窓
- 納戸・トランクルーム
- シューズボックス
- 全居室収納あり
- 温水洗浄トイレ
- シャワー付洗面化粧台
- コンロ3口以上
- システムキッチン
- カウンターキッチン
- 都市ガス
- オートロック
- モニタ付インターホン
- 防犯カメラ
- ケーブルテレビ
- ブロードバンド回線(光ファイバー等の高速インターネット)
- ピアノ相談可
- 管理員
- プライスダウン
備考 管理会社/㈱穴吹コミュニティ 南向き・ 大分市中部・ 閑静な住環境 ・ 管理員・ 角部屋・ 3面バルコニー・ 南西角部屋※敷地内駐車場は2年に1回全戸場所変更の抽選有!次回は、令和9年3月頃実施予定! 学区色がついているアイコンをクリックすると、本物件までの道順を見ることができます。
主な周辺施設色がついているアイコンをクリックすると、本物件までの道順を見ることができます。
-
ホームページはこちら
大分県知事(3) 第3043号
マンショントレンド・ラボ (有)佐伯ビル 【WEB面談可】- 加入団体
- (一社)大分県宅地建物取引業協会
- 保証協会
- (公社)全国宅地建物取引業保証協会
- 公正取引協議会
- (一社)九州不動産公正取引協議会
※連合隊は物件情報の精度向上に努めています:「物件情報に誤りがある」「成約済みである」などお気付きの点がございましたらこちらよりご連絡ください。
写真枚数:6枚
デザイン性の高い建物南側外観!
採光・眺望・通風良好な南西角部屋!
デザイン性の高い建物北側外観!
エントランス風除室!
エントランスアプローチ!
屋根付の駐輪場スペース!

大分・別府市内の中古マンションのご売却・ご購入の事なら経験豊富・誠心誠意のお手伝いが出来る当社に安心してお任せ下さい! 営業を担当する代表取締役・営業部長が宅地建物取引士・住宅ローンアドバイザー保有!
前職のマンションスタイルクリエイト代表取締役・専務取締役時代からこれまでに中古マンション仲介売買に特化して1300件超の成約実績! 売却査定・購入・住宅ローン・税務全般お任せ下さい! 営業を担当する代表取締役・営業部長が宅地建物取引士・住宅ローンアドバイザーの有資格者! ご見学から住宅ローンの申込・重説・契約・お引渡まで有資格の専任担当者が誠心誠意のお手伝いをさせて頂きます!安心してお任せ下さい!