速見郡日出町仁王 平家 2,890万円 3SLDK 駐車場3台可
ここに注目!大分県速見郡日出町!2025年11月完成!人気の平家建て!JR暘谷駅まで徒歩13分!3LDK+ウォークインクローゼット!広々とした92坪の敷地!駐車場並列3台可!閑静な住宅街!使いやすい対面式システムキッチン!浴室乾燥機や暖房機能、追い焚き機能も完備!シャワー付洗面化粧台や温水洗浄トイレも設置!徒歩5分圏内に病院や生活雑貨店が充実!利便性良好!
| 価格 |
2,890万円
|
|---|---|
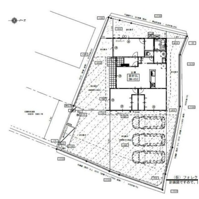
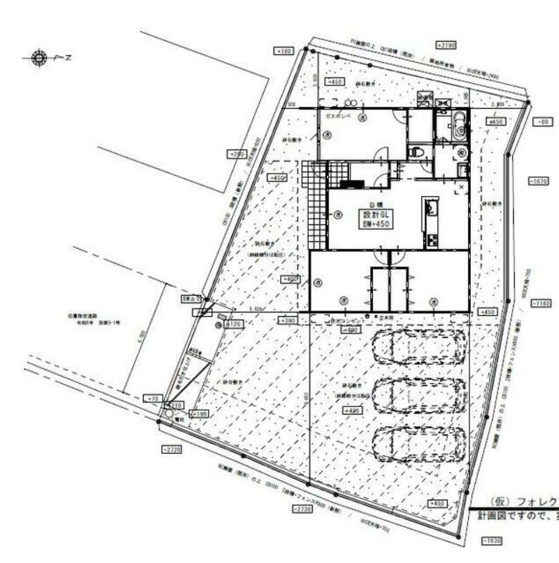
| 建物面積 | 80.32m² (24.29坪) |
| 土地面積 | 306.4m² (92.68坪)(公簿) |
| 間取り | 3LDK |
| 住所 | 大分県速見郡日出町1532番5 |
| 交通 | 暘谷駅(徒歩13分)道順を見る |
| 築年月 | 新築(2025年11月) |
| 駐車場 |
あり 駐車可能台数:3台
|
販売状況、見学、詳細を知りたい方はこちら!
お電話の際は「連合隊の物件」とお伝えください。
情報掲載期限:あと26日(更新日 2026/1/23)
- 物件写真・概要
- 周辺地図
-
販売状況、見学、詳細を知りたい方はこちら!
おすすめポイント
- 新築
- 駐車2台以上可
- 追い焚き風呂
- 平屋
- 近くて便利!徒歩5分以内にある施設
- 5分
5分- 周辺施設を地図で確認
交通色がついているアイコンをクリックすると、本物件までの道順を見ることができます。
物件概要
建物の階建 地上1階建 主要採光面 構造 木造 接道状況 - 北側幅6.50mの公道に6.50m接道
都市計画区域 非線引区域 私道負担 地目/地勢 宅地 地勢:平坦 国土法届出 土地権利 所有権 用途地域 - 無指定(建ぺい率:70% / 容積率:200%)
引渡し 相談 現況 空き 建築確認番号 第R070693号 取引態様 仲介 物件No 仲介手数料概算 101万9,700円(金額は概算です。正確な金額は不動産会社へお問合せ下さい) 設備・特徴 - 閑静な住宅街
- ウォークインクローゼット
- シューズボックス
- フローリング
- 温水洗浄トイレ
- シャワー付洗面化粧台
- 浴室に窓
- 浴室1坪以上
- 浴室暖房
- 浴室乾燥機
- 追い焚き風呂
- システムキッチン
- カウンターキッチン
- コンロ3口以上
- 24時間換気システム
- モニタ付インターホン
- 平屋
備考 学区色がついているアイコンをクリックすると、本物件までの道順を見ることができます。
主な周辺施設色がついているアイコンをクリックすると、本物件までの道順を見ることができます。
-
ホームページはこちら
大分県知事 (9) 第1761号
日光不動産(有)
※連合隊は物件情報の精度向上に努めています:「物件情報に誤りがある」「成約済みである」などお気付きの点がございましたらこちらよりご連絡ください。
写真枚数:20枚
☆売却物件大募集中!買取物件も募集しています!査定のみでももちろんOKです!お気軽にお電話ください♪
※定休日 不定休(お盆期間、年末年始、ゴールデンウィークは休業致します) ☆当社となりの無人展示場もご利用ください♪ 売却物件・買取物件大募集! お気軽にご相談下さい♪