サンワコーポ岩田
ここに注目!GRCデザイン フルリノベーション物件!女性が喜ぶ豪華なキッチン設備!空間にワークスペースがあり、住空間と自宅で仕事や勉強に励むことができるデザイナーズ物件です! ◎弊社売主につき仲介手数料なし!!◎駐車場1台分あり ※現在外壁と共用廊下等大規模修繕中で綺麗になります。
この物件は、仲介手数料がかかりません。
この物件の売主は、情報を掲載している不動産会社です。仲介物件ではないため、仲介手数料は発生しません。
| 価格 |
1,840万円
坪単価:約88.0万円/坪
管理費6,500円/月修繕積立金6,000円/月
|
|---|---|
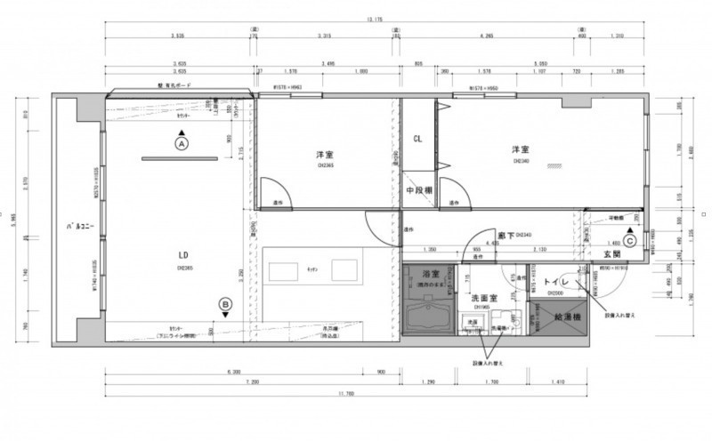
| 間取・専有 |
2LDK(69.12m²)└ LDK
|
| 住所 | 大分県大分市岩田町1丁目12−1 |
| 交通 | 牧駅(徒歩17分)道順を見る |
| 築年月 | 築43年(1982年1月) |
| 駐車場 |
あり (3,000円/台) 駐車可能台数:1台
協力金250円(外部所有者) |
販売状況、見学、詳細を知りたい方はこちら!
お電話の際は「連合隊の物件」とお伝えください。
情報掲載期限:あと29日(更新日 2025/12/26)
- 物件写真・概要
- 周辺地図
-
▼クリックで左の拡大画像が変わります。 すべての写真を拡大
販売状況、見学、詳細を知りたい方はこちら!
おすすめポイント
- 即引渡し可
- 南向き
- 駐車場あり
- リフォーム済み
- 角部屋
- 2階以上
- エレベーター
- 近くて便利!徒歩5分以内にある施設
- 3分
3分- 周辺施設を地図で確認
交通色がついているアイコンをクリックすると、本物件までの道順を見ることができます。
物件概要
所在階/建物の階建 7階(715) / 地上13階建 総戸数 主要採光面 南 構造 鉄骨鉄筋コンクリート(SRC)造 バルコニー あり- バルコニー南向き
土地権利 所有権 引渡し 即時 現況 空き 管理人 日勤 管理形態 全部委託 管理組合 有 取引態様 売主 物件No 25-10-31 T 仲介手数料概算 取引態様が売主なので仲介手数料は不要です 修繕履歴 - 2025年9月頃に外壁をリフォームしています。施工内容:外壁・共用廊下等大規模修繕
- 2025年3月頃にリノベーションしています。施工内容:デザイナーズフルリノベーション
設備・特徴 - エレベーター
- デザイナーズ
- 角部屋
- 日当り良好
- 室内洗濯機置場
- フローリング
- 納戸・トランクルーム
- ウォークインクローゼット
- IHクッキングヒーター
- カウンターキッチン
- システムキッチン
- 食器洗乾燥機
備考 ローンシュミレーション例 : 借入額1840万円 変動金利0.895% 期間40年 毎月均等払い45,617円 ※各金融機関によって条件は異なります。 学区色がついているアイコンをクリックすると、本物件までの道順を見ることができます。
主な周辺施設色がついているアイコンをクリックすると、本物件までの道順を見ることができます。
-
ホームページはこちら
大分県知事 (6) 第2537号
ジー・アール・シー(株) 府内店〒870-0021
TEL:097-534-8448
FAX:097-534-8449
営業時間:9:30~17:00
定休日:毎週 月曜・日曜・祝日
- 保証協会
- (公社)全国宅地建物取引業保証協会
- 公正取引協議会
- (一社)九州不動産公正取引協議会
※連合隊は物件情報の精度向上に努めています:「物件情報に誤りがある」「成約済みである」などお気付きの点がございましたらこちらよりご連絡ください。
写真枚数:17枚
広々としたリビング
現在外壁他共用廊下等大規模修繕中
現在外壁他共用廊下等大規模修繕中
家具設置をシュミレート
雰囲気のある間接照明
スタイリッシュなキッチン
寝室
大分エリアの不動産のことなら弊社にお任せください! 不動産を通じて、創業53年!
豊富な知識とおもてなしの精神でスタッフが、あなたにぴったりの不動産を見つけます!リノベーション物件多数!テナント情報も豊富!お気軽にお問合せいただくとともに、心よりお電話、メールお待ちしております!