函館市堀川町 土地
ここに注目!☆堀川町土地☆建築条件なし!!コンビニ目の前☆スーパー・郵便局・病院が徒歩5分ほどの場所に揃っている便利な立地です♪市電・バスへのアクセスも良好!!お気軽にお問い合わせください。
ご来店予約で最大3000円分のクオカードプレゼント!詳細はこちらからご覧ください。
| 価格 |
480万円
坪単価:約11.7万円/坪
|
|---|---|
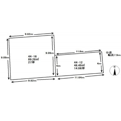
| 土地面積 | 135.77m² (41.07坪)(公簿) |
| 住所 | 北海道函館市堀川町16-12(地番:44-12、42-16) |
| 交通 | 昭和橋駅(徒歩5分)|函館バス「堀川町中野通」停 (徒歩1分)道順を見る |
| 現況 | 更地 |
| 建築条件 | なし |
| 用途地域 |
|
【WEB面談可】
販売状況、見学、詳細を知りたい方はこちら!
お電話の際は「連合隊の物件」とお伝えください。
情報掲載期限:あと29日(更新日 2026/2/26)
- 物件写真・概要
- 周辺地図
-
【WEB面談可】
販売状況、見学、詳細を知りたい方はこちら!おすすめポイント
- 更地
- 建築条件なし
- 上下水道
- 駅徒歩5分以内
- 近くて便利!徒歩5分以内にある施設
- 1分
1分- 5分
5分- 4分
4分- 周辺施設を地図で確認
交通色がついているアイコンをクリックすると、本物件までの道順を見ることができます。
- 昭和橋駅函館市電5系統、函館市電2系統徒歩5分
- 函館バス「堀川町中野通」停 徒歩1分
物件概要
販売区画数/
総区画数-/- 接道状況 一方 - 東側幅7.90mの道に4.00m接道
都市計画区域 市街化区域 私道負担 地目/地勢 宅地 国土法届出 土地権利 所有権 用途地域 - 第1種住居地域(建ぺい率:60% / 容積率:200%)
引渡し 相談 現況 更地 取引態様 仲介 物件No 8226 仲介手数料概算 33万円(金額は概算です。正確な金額は不動産会社へお問合せ下さい) 設備・特徴 - 閑静な住宅街
- 上下水道
備考 ※現状有姿渡しとなります。 ※住居表示:16-12 ※都市ガス埋設管有 学区色がついているアイコンをクリックすると、本物件までの道順を見ることができます。
主な周辺施設
- マックスバリュ堀川店約350m(徒歩5分)
- キングストア堀川店約450m(徒歩6分)
- スーパーアークス千代台店約900m(徒歩12分)
- セブンイレブン函館堀川町店約27m(徒歩1分)
- ローソン函館中島店約650m(徒歩9分)
- ハセガワストア千代台店約650m(徒歩9分)
- サツドラ函館高盛店約550m(徒歩7分)
- ツルハドラッグ函館的場店約750m(徒歩10分)
- 函館赤十字病院約500m(徒歩7分)
- 函館堀川郵便局約270m(徒歩4分)
-

この物件の担当者 渡部 伸孝(わたなべ のぶたか)
不動産仲介課の渡部です。不動産に興味があり、この仕事に就きました。笑顔で精一杯頑張りますので、よろしくお願いします。
ホームページはこちら北海道知事 渡島(3) 第1146号
(株)アイーナホーム 【WEB面談可】〒041-0851
TEL:0120-949-117(お客様専用フリーダイヤル)
TEL:0138-86-6358(アイーナホーム 函館店)
FAX:0138-86-6359
営業時間:9:00~20:00
定休日:毎週 水曜
- 保証協会
- (公社)全国宅地建物取引業保証協会
- 公正取引協議会
- (一社)北海道不動産公正取引協議会
※連合隊は物件情報の精度向上に努めています:「物件情報に誤りがある」「成約済みである」などお気付きの点がございましたらこちらよりご連絡ください。
写真枚数:9枚
☆接道側
☆南側
☆前面道路
マックスバリュ堀川店
キングストア堀川店
スーパーアークス千代台店
セブンイレブン函館堀川町店

















一戸建て・マンション・土地を売る・買うなら函館ナンバー1物件数の【中古住宅専門店】アイーナホームへ!
函館市・北斗市・七飯町地域の中古住宅専門店アイーナホームです。 査定・売却・購入・リフォームのご相談は、実績と豊富な経験のある弊社にお任せ下さい。 無料相談フリーダイヤル 0120-949-117