鹿部町字本別の中古住宅
ここに注目!北海道茅部郡鹿部町本別ロイヤルシティ鹿部リゾート内の3SLDKの一戸建て住宅です。 本数は少ないですが函館バス「やすらぎの里」停まで徒歩10分と、バスも利用できる立地です。 広々とした敷地はゆとりがあり、家庭菜園やガーデニングなど、豊かなスローライフをお楽しみいただけます。 建物は3階建て、延床面積128.86㎡のゆったりとした3SLDK。2019年には外壁塗装のリフォーム実施済。浴室は一坪以上あり、嬉しい温泉付き(設備動作未確認)で、日々の疲れを癒すことができます。設備はリクシルのハイグレード設備「SPAGE」となっており、浴槽は広く、打たせ湯やオーバーヘッドシャワー付き。さらにお風呂場に大きな窓があり、自然豊かな外の景色も堪能でき、お風呂でリラックスしたひと時を堪能できます。 土地内駐車スペースは5台分程あり、電動シャッター付きの車庫もあります。 都会の喧騒から離れた静かな田舎暮らしや2拠点生活を求める方おすすめの物件です。
| 価格 |
833万円
|
|---|---|
| 建物面積 | 128.86m² (38.98坪) |
| 土地面積 | 800m² (242坪)(公簿) |
| 間取り | 3SLDK |
| 住所 | 北海道茅部郡鹿部町本別569-767 |
| 交通 | 函館バス 「やすらぎの里」停(徒歩10分)|鹿部駅(徒歩22分)道順を見る |
| 築年月 | 築29年(1996年12月) |
| 駐車場 |
あり 駐車可能台数:5台
|
販売状況、見学、詳細を知りたい方はこちら!
お電話の際は「連合隊の物件」とお伝えください。
情報掲載期限:あと25日(更新日 2026/3/9)
- 物件写真・概要
- 周辺地図
-
▼クリックで左の拡大画像が変わります。 すべての写真を拡大
販売状況、見学、詳細を知りたい方はこちら!
おすすめポイント
- 駐車2台以上可
- 車庫あり
- 追い焚き風呂
- 温泉付
交通色がついているアイコンをクリックすると、本物件までの道順を見ることができます。
- 鹿部駅JR函館本線徒歩22分(約1.8km)
- 函館バス 「やすらぎの里」停徒歩10分(約750m)
物件概要
建物の階建 地上3階建 主要採光面 西 構造 その他(木・鉄筋コンクリート造亜鉛メッキ鋼板葺) 接道状況 都市計画区域 都市計画区域外 私道負担 地目/地勢 山林 地勢:平坦 国土法届出 土地権利 所有権 用途地域 - 無指定
引渡し 相談 現況 空き 取引態様 仲介 物件No 仲介手数料概算 34万890円(金額は概算です。正確な金額は不動産会社へお問合せ下さい) 修繕履歴 - 2019年1月頃に部分的にリフォームしています。施工内容:外壁塗装
設備・特徴 - 電動シャッター
- 車庫あり
- 庭が広い(10坪以上)
- 日当り良好
- 出窓
- LPガス
- 浴室1坪以上
- 浴室に窓
- 温泉付
- 田舎暮らし向き
- 納戸・トランクルーム
- トイレ2ヶ所以上
- 整形地
- IHクッキングヒーター
- コンロ3口以上
- リゾート向け
- シューズボックス
- システムキッチン
- 灯油暖房
- 灯油ボイラー
- シャワー付洗面化粧台
- 温水洗浄トイレ
- 追い焚き風呂
備考 現況有姿・境界明示 ロイヤルシティー鹿部リゾート U街区767号地 維持管理費、温泉使用料がかかります。 管理:ダイワリゾート ウッドデッキ破損、浄化槽未点検、各設備動作未確認となります。 学区色がついているアイコンをクリックすると、本物件までの道順を見ることができます。
-
ホームページはこちら
北海道知事 渡島(3) 第1133号
Kuniパラリーガル(有)- 加入団体
- (公社)北海道宅地建物取引業協会
- 保証協会
- (公社)全国宅地建物取引業保証協会
- 公正取引協議会
- (一社)北海道不動産公正取引協議会
※連合隊は物件情報の精度向上に努めています:「物件情報に誤りがある」「成約済みである」などお気付きの点がございましたらこちらよりご連絡ください。
写真枚数:26枚
玄関
リビング①
リビング②
リビング③
キッチン
LDK窓
3階和室
2階洋室①
2階洋室②
洗面所
浴室
浴室設備
3階トイレ
トイレ(2階)
2階納戸
玄関
玄関階段
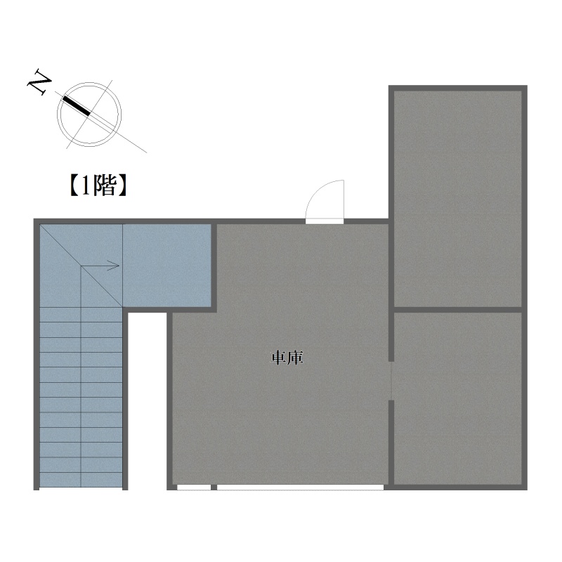
1階車庫
1階車庫内
ウッドデッキ破損してます
ウッドデッキ下部
定休日は土・日・祝日となっております。 内覧等のご希望は事前に連絡いただければ、土日でも対応しますので、お気軽にご連絡ください。