禅
ここに注目!札幌市営地下鉄東豊線「月寒中央」駅まで徒歩2分の好立地!通勤・通学に便利なアクセスが魅力のデザイナーズマンション「禅」。 駅近ながら、周辺にはコンビニ、スーパー、ドラッグストア、銀行などが揃い、日々の暮らしに不便を感じさせません。生活施設が徒歩圏内に充実しており、快適な日々をサポートします。 鉄筋コンクリート造りの堅牢な建物は、オートロック完備で安心をお届け。バス・トイレ別、ブロードバンド回線対応で、インターネットが無料で利用できる点も嬉しいポイントです。 単身の方からカップルまで対応するワンルーム・1LDKの多彩な間取りをご用意。現在満室稼働中、安定した賃貸経営をご検討の方にもおすすめです。 利回り6.57%、想定年間収入1,117万円。駐車場も7台分確保しています。 過去5年間の入居率は97.5%(2020年~2024年実績) この機会に、ぜひ一度お問い合わせください。
| 価格 |
1億7,000万円
利回り6.57%
満室時想定年収:1,117万円
|
|---|---|
| 住所 | 北海道札幌市豊平区月寒西一条7-7-3 |
| 交通 | 月寒中央駅(徒歩2分)|美園駅(徒歩16分)|福住駅(徒歩17分)道順を見る |
| 築年月 | 築8年(2017年2月) |
| 構造 | 鉄筋コンクリート(RC)造 |
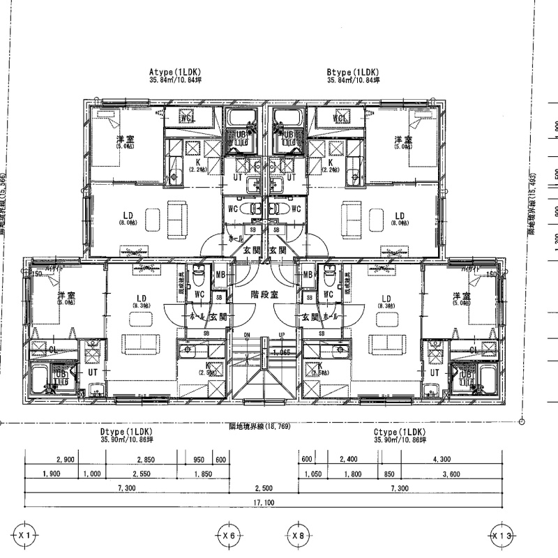
| 面積 | 建物:628.72m² (190.18坪)/ 土地:291.35m² (88.13坪)(公簿) 専有:最小20.59m² (6.22坪)~最大35.9m² (10.85坪) |
| 現況 | 現在満室(総戸数17戸中 17戸賃貸中) |
【WEB面談可】
販売状況、見学、詳細を知りたい方はこちら!
お電話の際は「連合隊の物件」とお伝えください。
情報掲載期限:あと9日(更新日 2025/12/3)
- 物件写真・概要
- 周辺地図
-
【WEB面談可】
販売状況、見学、詳細を知りたい方はこちら!おすすめポイント
- 現在満室
- 築10年以内
- 駅徒歩3分以内
- 複数路線利用可
交通色がついているアイコンをクリックすると、本物件までの道順を見ることができます。
物件概要
建物の階建 地上4階建 間取り 1LDK×12戸、ワンルーム×5戸 駐車場 あり ※契約者負担料金:8,800円/台 駐車場台数:7台接道状況 一方 - 北西側幅9.00mの公道に18.70m接道
都市計画区域 市街化区域 用途地域 - 第1種住居地域(建ぺい率:60% / 容積率:200%)
私道負担 なし 地目/地勢 宅地 地勢:平坦 国土法届出 不要 土地権利 所有権 その他費用 毎月の費用 - インターネット無料サービス料:1万2,210円
- 清掃料:1万1,000円
- レンタルマット:1,771円
引渡し 即時 施工業者 株式会社アスク工業 建築確認番号 第SKK161170 取引態様 仲介 物件No 仲介手数料概算 567万6,000円(金額は概算です。正確な金額は不動産会社へお問合せ下さい) 設備・特徴 - 複数路線利用可
- デザイナーズ
- バス/トイレ別
- オートロック
- ブロードバンド回線(光ファイバー等の高速インターネット)
備考 主な周辺施設色がついているアイコンをクリックすると、本物件までの道順を見ることができます。
-

この物件の担当者 山口 雅徳( ヤマグチ マサノリ )
収益物件の仲介を得意としております。お客様のご期待に沿えるよう全力で対応いたします。
ホームページはこちら北海道知事 石狩(4) 第7511号
Y'sパートナー(株) 【WEB面談可】〒060-0042
北海道札幌市中央区大通西15丁目1‐12
マンション大通 306TEL:011-788-2801
FAX:011-788-2802
営業時間:10:00~17:00
定休日:毎週 土曜・日曜・祝日
- 加入団体
- (公社)北海道宅地建物取引業協会
- 保証協会
- (公社)全国宅地建物取引業保証協会
- 公正取引協議会
- 未加盟
※連合隊は物件情報の精度向上に努めています:「物件情報に誤りがある」「成約済みである」などお気付きの点がございましたらこちらよりご連絡ください。
写真枚数:6枚
札幌市内の収益物件情報なら弊社にお任せください!!
インターネットサイトに掲載できない物件等、収益物件情報多数ございますので、ぜひお問合せ下さい!!