大変キレイなスウェーデンハウスの1戸建て!
ここに注目!売主様がこまめにメンテナンスされてきたスウェーデンハウスの素敵なお家です!!◆3層ガラスで断熱性能の高い家です!更にメーターモジュール設計で各部屋、階段幅などもゆったりとした3LDKです◆徒歩圏にフードD、コンビニ、飲食店、ドラッグストア、しまむらなど多数の利便施設があり大変便利な立地です!◆2018年に給湯暖房ボイラーを灯油から経済的な北ガスエコジョーズに取り換え済み!◆2019年に屋根外壁塗装コーキング工事済◆その他売主様がこまめにリフォーム等実施され大切にされてきたお家です◆全室LED照明◆リビング、寝室にエアコン付き、更に2023年にダスキンの清掃実施!◆屋根はストッパールーフ施工で雪落ちしない仕様で冬も快適に過ごせます◆外回りは見た目もすっきりアスファルト舗装で駐車3~4台の他、お庭や畑、BBQなどが出来るスペースもあります!◆敷地北側と裏側はしっかりとしたブロック塀の擁壁が設置済み◆木製の可愛い物置付き!広さも4畳程度あります!◆1階、2階にもトイレ付きで便利です!◆洗面室には電動昇降物干し付き◆喫煙歴の無い家です!
| 価格 |
3,150万円
|
|---|---|
| 建物面積 | 126.44m² (38.24坪) |
| 土地面積 | 235.74m² (71.31坪)(公簿) |
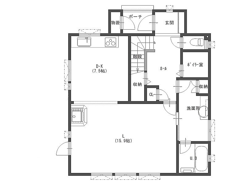
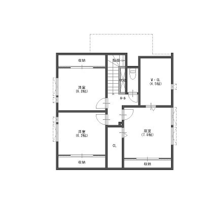
| 間取り | 3LDK1階:L15.9帖 DK7.5帖 / 2階:洋室7.8帖 洋室6.2帖 洋室6.2帖 |
| 住所 | 北海道千歳市北陽1-8-7 |
| 交通 | 長都駅(徒歩20分)|中央バス「フードD」停 (徒歩2分) |
| 築年月 | 築27年(1998年8月) |
| 駐車場 |
あり 駐車可能台数:3台
|
販売状況、見学、詳細を知りたい方はこちら!
お電話の際は「連合隊の物件」とお伝えください。
情報掲載期限:あと17日(更新日 2025/11/22)
- 物件写真・概要
- 周辺地図
-
▼クリックで左の拡大画像が変わります。 すべての写真を拡大
-
-
-
屋根外壁もメンテナンスが行き届いています。
-
広めの71坪超の角地です♪
-
北側道路側から♪
-
-
-
リビングだけで約16帖あります♪
-
木貼りとクロスのナチュラルでオシャレ内装♪
-
窓(3層高断熱!)が多く明るいです♪
-
広くて明るいリビング♪
-
高断熱の3重サッシ仕様♪
-
大変明るくキレイなキッチン♪
-
大変きれいにされています♪
-
ihヒーター、レンジフードは最近交換♪
-
収納付きで奥様にうれしい造りの洗面室♪
-
6.2帖の洋室♪
-
天窓付きの寝室♪
-
4.5帖の広いウオークインクローゼット!
-
玄関ホールも明るく広いです♪
-
幅の広い仕様の広々階段♪
-
お風呂も大変きれいにお使いです♪
-
リビングから♪
-
敷地裏側の段差はしかっりとブロック塀で囲っております。
-
新オーナー様へも施工メーカーから情報誌が届きます(^^♪
-
エアコン2台付き!2023年にダスキンで清掃済み!
-
前面道路が広いので広々と感じます♪
-
北陽高校とは樹木で遮られており視線が気になりません。
-
キャンピングカーは付きません♪
-
約2坪の可愛い木製物置♪
販売状況、見学、詳細を知りたい方はこちら!
おすすめポイント
- 駐車2台以上可
- 角地
- 南向き
- リフォーム済み
- 近くて便利!徒歩5分以内にある施設
- 4分
4分- 4分
4分- 周辺施設を地図で確認
交通色がついているアイコンをクリックすると、本物件までの道順を見ることができます。
- 長都駅JR千歳線徒歩20分(約1.9km)
- 中央バス「フードD」停 徒歩2分
物件概要
建物の階建 地上2階建 主要採光面 南 構造 木造(2×4) 接道状況 角地 - 西側幅16.00mの公道に11.87m接道
- 北側幅8.00mの公道に14.88m接道
都市計画区域 市街化区域 私道負担 なし 地目/地勢 宅地 地勢:平坦 国土法届出 不要 土地権利 所有権 用途地域 - 第1種低層住居専用地域(建ぺい率:40% / 容積率:60%)
引渡し 引渡し予定:2026年2月下旬 現況 入居中 施工業者 スウェーデンハウス 取引態様 仲介 物件No 仲介手数料概算 110万5,500円(金額は概算です。正確な金額は不動産会社へお問合せ下さい) 修繕履歴 - 2019年8月頃に屋根・外壁をリフォームしています。施工内容:屋根外壁の塗装及びコーキング
- 2020年3月頃にリビング・キッチンをリフォームしています。施工内容:クロス張替、フローリングワックスコーティング、キッチンレンジフード取り換え
- 2020年3月頃にトイレをリフォームしています。施工内容:トイレ本体交換、クロス張替
- 2018年4月頃に部分的にリフォームしています。施工内容:暖房給湯を都市ガスエコジョーズに交換
- 2023年4月頃にキッチンをリフォームしています。施工内容:IHヒーター新品交換
設備・特徴 - 角地
- 整形地
- 閑静な住宅街
- 物置
- 日当り良好
- 照明器具付
- フローリング
- ウォークインクローゼット
- シューズボックス
- 全居室収納あり
- トイレ2ヶ所以上
- 温水洗浄トイレ
- シャワー付洗面化粧台
- IHクッキングヒーター
- コンロ3口以上
- システムキッチン
- エアコン付
- 24時間換気システム
- エコジョーズ
- モニタ付インターホン
備考 物件のお引渡しは令和8年2月末予定 専門業者による清掃のうえお引渡し致します。 現在入居中の為ご見学ご希望の方は事前にご連絡のうえ見学希望日をお伝えください。 学区色がついているアイコンをクリックすると、本物件までの道順を見ることができます。
主な周辺施設色がついているアイコンをクリックすると、本物件までの道順を見ることができます。
-
-
ホームページはこちら
北海道知事 石狩(2) 第8913号
(株)ハウスフィット- 加入団体
- (公社)北海道宅地建物取引業協会
- 保証協会
- (公社)全国宅地建物取引業保証協会
- 公正取引協議会
- (一社)北海道不動産公正取引協議会
※連合隊は物件情報の精度向上に努めています:「物件情報に誤りがある」「成約済みである」などお気付きの点がございましたらこちらよりご連絡ください。
写真枚数:30枚
屋根外壁もメンテナンスが行き届いています。
広めの71坪超の角地です♪
北側道路側から♪
リビングだけで約16帖あります♪
木貼りとクロスのナチュラルでオシャレ内装♪
窓(3層高断熱!)が多く明るいです♪
広くて明るいリビング♪
高断熱の3重サッシ仕様♪
大変明るくキレイなキッチン♪
大変きれいにされています♪
ihヒーター、レンジフードは最近交換♪
収納付きで奥様にうれしい造りの洗面室♪
6.2帖の洋室♪
天窓付きの寝室♪
4.5帖の広いウオークインクローゼット!
玄関ホールも明るく広いです♪
幅の広い仕様の広々階段♪
お風呂も大変きれいにお使いです♪
リビングから♪
敷地裏側の段差はしかっりとブロック塀で囲っております。
新オーナー様へも施工メーカーから情報誌が届きます(^^♪
エアコン2台付き!2023年にダスキンで清掃済み!
前面道路が広いので広々と感じます♪
北陽高校とは樹木で遮られており視線が気になりません。
キャンピングカーは付きません♪
約2坪の可愛い木製物置♪
千歳恵庭から札幌近郊まで不動産(土地・建物・アパート・マンションなど)の売却購入に幅広く対応致します
地元千歳で10年以上、札幌での勤務も10年以上の経験とつながりを生かし、売主様、買主様側に立った公正公平な不動産仲介を心掛けております。 令和6年の年始の営業は1月7日からとなります。