札幌市清田区モデルハウス「ひっそりと」【アートホーム】
ここに注目!■清田区のアートホームモデルハウス販売 ■小学校徒歩10分 ■吉田川沿いの自然あふれる立地 ■北野通ちかく、国道36号線にも出やすく車通勤に便利 ■アートホームは無垢材をふんだんに使い美しくモダンな空間づくりにこだわった注文住宅を施工しています。高気密高断熱で温かく、毎月の光熱費も経済的。35年間のアフターサービスで末永く安心。
札幌市清田区の販売型モデルハウス「ひっそりと」 【アートホーム公式】
この物件は、仲介手数料がかかりません。
この物件の売主は、情報を掲載している不動産会社です。仲介物件ではないため、仲介手数料は発生しません。
| 価格 |
5,500万円
|
|---|---|
| 建物面積 | 138m² (41.74坪) |
| 土地面積 | 215.56m² (65.2坪)(実測) |
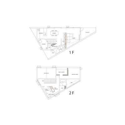
| 間取り | 3LDK1階:LDK23.6帖 / 2階:洋室4.5帖 洋室4.5帖 洋室6.9帖 その他3.9帖 |
| 住所 | 北海道札幌市清田区北野二条1丁目95番37 |
| 交通 | 中央バス「北野2条2丁目」停 (徒歩2分)|福住駅(徒歩35分)道順を見る |
| 築年月 | 新築(2025年9月) |
| 駐車場 |
あり 駐車可能台数:2台
|
販売状況、見学、詳細を知りたい方はこちら!
お電話の際は「連合隊の物件」とお伝えください。
情報掲載期限:あと24日(更新日 2025/12/1)
- 物件写真・概要
- 周辺地図
-
販売状況、見学、詳細を知りたい方はこちら!
おすすめポイント
- 新築
- 駐車2台以上可
- 追い焚き風呂
- 土地付き提案住宅
- 近くて便利!徒歩5分以内にある施設
- 1分
1分- 3分
3分- 周辺施設を地図で確認
交通色がついているアイコンをクリックすると、本物件までの道順を見ることができます。
- 福住駅札幌市営地下鉄東豊線徒歩35分(約2.8km)
- 中央バス「北野2条2丁目」停 徒歩2分(約180m)
物件概要
建物の階建 地上2階建 主要採光面 北西 構造 木造(在来工法) 接道状況 一方 - 南西側幅8.00mの公道に22.90m接道
都市計画区域 市街化区域 私道負担 なし 地目/地勢 宅地 地勢:平坦 国土法届出 不要 土地権利 所有権 用途地域 - 第1種中高層住居専用地域(建ぺい率:60% / 容積率:200%)
引渡し 現況 施工業者 株式会社アートホーム 建築確認番号 SKK20244886 取引態様 売主 物件No 仲介手数料概算 取引態様が売主なので仲介手数料は不要です 設備・特徴 - 閑静な住宅街
- 土地付き提案住宅
- ウォークインクローゼット
- シューズボックス
- 追い焚き風呂
- システムキッチン
- 食器洗乾燥機
- LPガス
- ガス暖房
- エコジョーズ
- 24時間換気システム
- モニタ付インターホン
- コンロ3口以上
- 納戸・トランクルーム
- 温水洗浄トイレ
- 浴室1坪以上
- 照明器具付
- 二重サッシ
- 吹き抜け
- 日当り良好
- IHクッキングヒーター
備考 ※定休日:水・木 / お問い合わせは、アートホーム札幌支店まで TEL:011-581-8686 学区色がついているアイコンをクリックすると、本物件までの道順を見ることができます。
主な周辺施設色がついているアイコンをクリックすると、本物件までの道順を見ることができます。
- ファミリーマート北野通店約60m(徒歩1分)
- 産直生鮮市場北野店約190m(徒歩3分)
- DCM北野通店約500m(徒歩7分)
- 豊平体育館約230m(徒歩3分)
-
※連合隊は物件情報の精度向上に努めています:「物件情報に誤りがある」「成約済みである」などお気付きの点がございましたらこちらよりご連絡ください。
写真枚数:28枚
間取り図|清田区のアートホーム販売型モデル
札幌市立北野平小学校 徒歩10分(800km)
札幌市立北野中学校 徒歩12分( 950m)
自然素材が生きた美しい空間づくりが特徴。使い込むほどに味わいの深まる家。
千歳、札幌、北見に拠点をおくアートホーム。無垢の床材をふんだんに使ったシンプルでモダンな内観は、余分な線を一本でも少なく引く設計のこだわりがあらわれたナチュラルで簡潔なデザイン。