千歳市北陽戸建て住宅
ここに注目!千歳市北陽に佇む、職人のこだわりが息づく特別な一戸建てをご紹介します。 キッチンや洗面台、カップボード、テレビ台など、既製品ではない造作の数々が空間に上質な統一感をもたらし、機能性とデザイン性を両立。リビングには埋め込み暖房と天井高2.5m以上が叶える開放感があり、日々の暮らしを彩ります。 長期優良住宅認定に加え、省令準耐火構造・耐震構造で安心の住まい。2022年にはボイラー交換済みで、快適にお住まいいただけます。 広々18帖のLDKを含む4LDKの間取りは、ご家族のライフスタイルに合わせた使い方が可能。ウォークインクローゼットやシューズインクローゼット、物置など収納も豊富です。 JR長都駅まで車で5分。千歳市立北陽小学校へ徒歩10分、複数のこども園も徒歩圏内と、子育て世代に嬉しい立地。スーパーやドラッグストア、病院も近く、生活利便性も兼ね備えています。 駐車スペースは嬉しい2台分(縦列)。都市ガス、エコジョーズ、追い焚き風呂、食洗機など設備も充実。 ぜひ一度、この住まいの魅力を現地でご体感ください。お問い合わせをお待ちしております。
| 価格 |
3,280万円
|
|---|---|
| 建物面積 | 116.75m² (35.31坪) |
| 土地面積 | 210.11m² (63.55坪)(実測) |
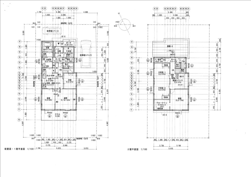
| 間取り | 4LDK1階:LDK18帖 洋室3.75帖 / 2階:洋室5.26帖 洋室5.26帖 洋室10帖 |
| 住所 | 北海道千歳市北陽6丁目15-10 |
| 交通 | 長都駅(徒歩23分)|長都駅(車で5分)道順を見る |
| 築年月 | 築14年(2011年11月) |
| 駐車場 |
あり 駐車可能台数:2台
|
販売状況、見学、詳細を知りたい方はこちら!
お電話の際は「連合隊の物件」とお伝えください。
情報掲載期限:あと13日(更新日 2025/11/28)
- 物件写真・概要
- 周辺地図
-
▼クリックで左の拡大画像が変わります。 すべての写真を拡大
-
外観です!
-
間取り図になります!
-
玄関回りです!
-
造作の物置です!
-
お庭も広いです!
-
塗り壁です!
-
リビングです! 右下に見えますのが埋め込み暖房です!
-
ダイニングです!
-
ダイニングからリビングの眺めです!
-
キッチン! 造作キッチンです!
-
カップボードも造作です!
-
キッチンにはカウンターも付いております!
-
ユーティリティ 洗面台も造作です!
-
お風呂です! 追い炊き機能付き
-
タオルボーイも造作です!
-
1Fトイレです!
-
玄関です! 造作ベンチがあります!
-
シューズクロークです! 靴やアウトドア用品もたっぷり入ります!
-
廊下です! ドアも造作です!
-
1Fの洋室です!(3帖)
-
2F主寝室です!(約10帖)
-
主寝室にはウォークインクローゼットがあります!
-
2Fお子様部屋です(それぞれ5帖)
-
中は間仕切りできるようになっております!
-
勉強スペースというお部屋です!(5帖)
-
2Fトイレです!
-
フードDまで徒歩13分
-
千歳市立市民病院まで徒歩17分
-
ツルハドラッグ千歳北陽店まで徒歩11分
-
ローソン千歳北陽保育園前店まで徒歩5分
販売状況、見学、詳細を知りたい方はこちら!
おすすめポイント
- 駐車2台以上可
- 都市ガス
- 追い焚き風呂
- リフォーム済み
- 近くて便利!徒歩5分以内にある施設
- 5分
5分- 5分
5分- 周辺施設を地図で確認
交通色がついているアイコンをクリックすると、本物件までの道順を見ることができます。
物件概要
建物の階建 地上2階建 主要採光面 北東 構造 木造 接道状況 一方 - 北東側幅14.00mの公道に10.68m接道 位置指定:無
都市計画区域 市街化区域 私道負担 なし 地目/地勢 宅地 地勢:平坦 国土法届出 不要 土地権利 所有権 用途地域 - 第1種低層住居専用地域(建ぺい率:40% / 容積率:60%)
引渡し 相談 現況 入居中 施工業者 ブレイン株式会社 建築確認番号 第SKK 222238 取引態様 仲介 物件No 仲介手数料概算 114万8,400円(金額は概算です。正確な金額は不動産会社へお問合せ下さい) 修繕履歴 - 2022年12月頃に部分的にリフォームしています。施工内容:ボイラー交換
設備・特徴 - 物置
- 耐震
- ケーブルテレビ
- モニタ付インターホン
- エアコン付
- ガス暖房
- 24時間換気システム
- エコジョーズ
- 都市ガス
- コンロ3口以上
- 食器洗乾燥機
- トイレ2ヶ所以上
- 温水洗浄トイレ
- 浴室1坪以上
- 追い焚き風呂
- ウォークインクローゼット
- シューズインクローゼット
- 日当り良好
- 天井高2.5m以上
- 3面採光
- 照明器具付
- デザイナーズ
備考 学区色がついているアイコンをクリックすると、本物件までの道順を見ることができます。
主な周辺施設色がついているアイコンをクリックすると、本物件までの道順を見ることができます。
-
-
ホームページはこちら
北海道知事 石狩(4) 第7625号
ブレイン(株)- 加入団体
- (公社)北海道宅地建物取引業協会
- 保証協会
- (公社)全国宅地建物取引業保証協会
- 公正取引協議会
- (一社)北海道不動産公正取引協議会
※連合隊は物件情報の精度向上に努めています:「物件情報に誤りがある」「成約済みである」などお気付きの点がございましたらこちらよりご連絡ください。
写真枚数:30枚
外観です!
間取り図になります!
玄関回りです!
造作の物置です!
お庭も広いです!
塗り壁です!
リビングです! 右下に見えますのが埋め込み暖房です!
ダイニングです!
ダイニングからリビングの眺めです!
キッチン! 造作キッチンです!
カップボードも造作です!
キッチンにはカウンターも付いております!
ユーティリティ 洗面台も造作です!
お風呂です! 追い炊き機能付き
タオルボーイも造作です!
1Fトイレです!
玄関です! 造作ベンチがあります!
シューズクロークです! 靴やアウトドア用品もたっぷり入ります!
廊下です! ドアも造作です!
1Fの洋室です!(3帖)
2F主寝室です!(約10帖)
主寝室にはウォークインクローゼットがあります!
2Fお子様部屋です(それぞれ5帖)
中は間仕切りできるようになっております!
勉強スペースというお部屋です!(5帖)
2Fトイレです!
フードDまで徒歩13分
千歳市立市民病院まで徒歩17分
ツルハドラッグ千歳北陽店まで徒歩11分
ローソン千歳北陽保育園前店まで徒歩5分
千歳市近郊の住まい・土地探しはお任せください!
お客さまの思いやライフスタイルに寄り添い、 暮らしにフィットする家づくりを追求することが、私たちブレインの使命です。 日々、理想の住まいを実現するために建築と真剣に向き合っています。