ここに注目!閑静な住宅街の物件をお預かりしました。広々4LDK子供部屋も6.0帖と広く使い勝手は様々です。 お気軽にお問い合わせください。
| 価格 |
2,500万円
|
|---|---|
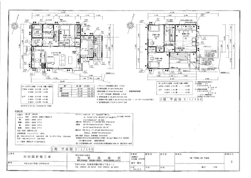
| 建物面積 | 115.1m² (34.81坪) |
| 土地面積 | 183.34m² (55.46坪)(公簿) |
| 間取り | 4LDK1階:和室6帖 / 2階:洋室6帖 洋室6帖 洋室8帖 |
| 住所 | 長崎県佐世保市大和町45-9 |
| 交通 | 日宇駅(徒歩26分)道順を見る |
| 築年月 | 築18年(2007年12月) |
| 駐車場 |
あり 駐車可能台数:3台
|
【WEB面談可】
販売状況、見学、詳細を知りたい方はこちら!
お電話の際は「連合隊の物件」とお伝えください。
情報掲載期限:あと24日(更新日 2026/2/23)
- 物件写真・概要
- 周辺地図
-
【WEB面談可】
販売状況、見学、詳細を知りたい方はこちら!おすすめポイント
- 駐車2台以上可
- 車庫あり
- 南向き
- オール電化
- 追い焚き風呂
交通色がついているアイコンをクリックすると、本物件までの道順を見ることができます。
物件概要
建物の階建 地上2階建 主要採光面 南 構造 木造(在来工法) バルコニー あり(12m²)接道状況 一方 - 東側幅6.00mの公道に13.00m接道 位置指定:無
都市計画区域 市街化区域 私道負担 なし 地目/地勢 宅地 地勢:平坦 国土法届出 不要 土地権利 所有権 用途地域 - 第1種住居地域(建ぺい率:60% / 容積率:200%)
引渡し 相談 現況 空き 施工業者 株式会社 佐世保地所 建築確認番号 第H19確認建築佐世保市00350号 取引態様 仲介 物件No 仲介手数料概算 89万1,000円(金額は概算です。正確な金額は不動産会社へお問合せ下さい) 設備・特徴 - 整形地
- 閑静な住宅街
- 車庫あり
- 太陽光発電システム
- 照明器具付
- オール電化
- 出窓
- フローリング
- 二重サッシ
- シューズボックス
- 全居室収納あり
- 温水洗浄トイレ
- シャワー付洗面化粧台
- 浴室乾燥機
- 追い焚き風呂
- 浴室に窓
- 浴室1坪以上
- IHクッキングヒーター
- システムキッチン
- エアコン付
- 電気温水器
- モニタ付インターホン
備考 閑静な住宅街の物件をお預かりしました。広々4LDK子供部屋も6.0帖と広く使い勝手は様々です。 お気軽にお問い合わせください 学区色がついているアイコンをクリックすると、本物件までの道順を見ることができます。
主な周辺施設色がついているアイコンをクリックすると、本物件までの道順を見ることができます。
-
※連合隊は物件情報の精度向上に努めています:「物件情報に誤りがある」「成約済みである」などお気付きの点がございましたらこちらよりご連絡ください。
写真枚数:10枚
「住まいを通じて、一生のお付き合い」を会社のテーマとしてお住いのお手伝いをしております。
佐世保市内全域にて、分譲住宅地の開発及びデザイナー住宅の販売を中心に、賃貸アパート、マンション、事業用物件の建設、仲介、管理を行っております。