早岐C-4 ~ちょっぴり贅沢な建売住宅~
ここに注目!家具、カーテン、全室照明、エアコン2台付(LDKにはダイキンのうるさら搭載です。~ちょっぴり贅沢な建売住宅~ 穏やかな大人の暮らし
この物件は、仲介手数料がかかりません。
この物件の売主は、情報を掲載している不動産会社です。仲介物件ではないため、仲介手数料は発生しません。
| 価格 |
4,130万円
|
|---|---|
| 建物面積 | 108.06m² (32.68坪) |
| 土地面積 | 183.29m² (55.44坪)(公簿) |
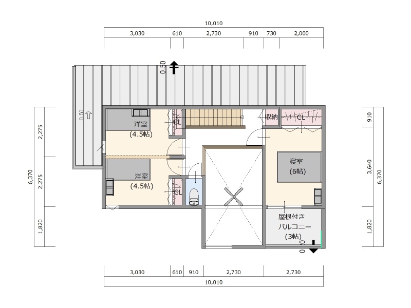
| 間取り | 4LDK1階:LDK19.5帖 和室3帖 / 2階:洋室4.5帖 洋室4.5帖 洋室6帖 |
| 住所 | 長崎県佐世保市権常寺町359-30 |
| 交通 | 西肥バス「花高皆瀬」停 (徒歩7分) |
| 築年月 | 建築中(2026年6月完成予定) |
| 駐車場 |
あり 駐車可能台数:4台
|
【WEB面談可】
販売状況、見学、詳細を知りたい方はこちら!
お電話の際は「連合隊の物件」とお伝えください。
情報掲載期限:あと17日(更新日 2025/12/25)
- 物件写真・概要
- 周辺地図
-
【WEB面談可】
販売状況、見学、詳細を知りたい方はこちら!おすすめポイント
- 建築中
- 駐車2台以上可
- 南向き
- オール電化
- 追い焚き風呂
交通
- 西肥バス「花高皆瀬」停 徒歩7分(約540m)
物件概要
建物の階建 地上2階建 主要採光面 南 構造 木造(在来工法) バルコニー あり(4.96m²)接道状況 一方 - 南側幅6.00mの公道に14.00m接道
都市計画区域 市街化区域 私道負担 なし 地目/地勢 宅地 地勢:高台 国土法届出 不要 土地権利 所有権 用途地域 - 第1種低層住居専用地域(建ぺい率:50% / 容積率:80%)
引渡し 相談 現況 空き 施工業者 株式会社佐世保地所 建築確認番号 第ERI-25038302 取引態様 売主 物件No 仲介手数料概算 取引態様が売主なので仲介手数料は不要です 設備・特徴 - トイレ2ヶ所以上
- シャワー付洗面化粧台
- 温水洗浄トイレ
- 追い焚き風呂
- 浴室乾燥機
- 浴室暖房
- 浴室1坪以上
- IHクッキングヒーター
- カウンターキッチン
- 食器洗乾燥機
- 浄水器
- エアコン付
- シーリングファン
- 個別空調
- 24時間換気システム
- エコキュート
- モニタ付インターホン
- 高台に立地
- 閑静な住宅街
- デザイナーズ
- 日当り良好
- 照明器具付
- オール電化
- バリアフリー
- フローリング
- 吹き抜け
- 二重サッシ
- ウォークインクローゼット
- 床下収納
- シューズインクローゼット
- 全居室収納あり
省エネ性能ラベル
備考 学区色がついているアイコンをクリックすると、本物件までの道順を見ることができます。
主な周辺施設色がついているアイコンをクリックすると、本物件までの道順を見ることができます。
-
※連合隊は物件情報の精度向上に努めています:「物件情報に誤りがある」「成約済みである」などお気付きの点がございましたらこちらよりご連絡ください。
写真枚数:5枚
「住まいを通じて、一生のお付き合い」を会社のテーマとしてお住いのお手伝いをしております。
佐世保市内全域にて、分譲住宅地の開発及びデザイナー住宅の販売を中心に、賃貸アパート、マンション、事業用物件の建設、仲介、管理を行っております。