【眺望良好】須田尾町戸建
ここに注目!【眺望良好】の物件名にふさわしい、佐世保市須田尾町の高台に佇む一戸建てをご紹介します。 南向きで日当たり良好なこのお住まいは、広々とした20帖のLDKを含む5LDK。ご家族皆様がゆったりと過ごせる空間が魅力です。 IHクッキングヒーター付きのシステムキッチンはカウンタータイプで、ご家族との会話を楽しみながらお料理できます。トイレ2ヶ所以上、浴室乾燥機、追い焚き機能、浴室に窓があり、水回り設備も充実。床暖房やエコキュートも備わり、快適で経済的な暮らしをサポートします。 全居室収納に加え、ウォークインクローゼットや床下収納も完備し、収納力も豊富です。 駐車場は縦列で2台、軽自動車なら3台駐車可能。来客時も安心です。 西肥バス「山祇町」停まで徒歩11分。閑静な住宅街に位置しながら、スーパーやコンビニ、ドラッグストアが徒歩10分圏内に揃い、生活利便性も良好。小学校まで徒歩11分、中学校まで徒歩9分と、お子様の通学も安心です。 美しい眺望と充実の設備、快適な住環境を兼ね備えたこのお住まいで、新しい生活を始めてみませんか?ぜひ一度現地をご覧ください。お問い合わせをお待ちしております。
| 価格 |
2,900万円
|
|---|---|
| 建物面積 | 136.63m² (41.33坪) |
| 土地面積 | 214.07m² (64.75坪)(公簿) |
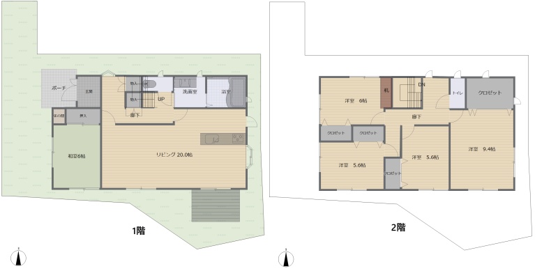
| 間取り | 5LDK1階:LDK20帖 和室6帖 / 2階:洋室9.4帖 洋室6帖 洋室5.6帖 洋室5.6帖 |
| 住所 | 長崎県佐世保市須田尾町392-31 |
| 交通 | 佐世保駅(徒歩22分)|西肥バス 「山祇町」停(徒歩11分)|バス停(徒歩11分)道順を見る |
| 築年月 | 築21年(2004年10月) |
| 駐車場 |
あり (無料) 駐車可能台数:2台
縦列駐車で2台可能(軽自動車なら3台駐車可能) |
販売状況、見学、詳細を知りたい方はこちら!
お電話の際は「連合隊の物件」とお伝えください。
情報掲載期限:あと26日(更新日 2025/12/4)
- 物件写真・概要
- 周辺地図
-
販売状況、見学、詳細を知りたい方はこちら!
おすすめポイント
- 駐車2台以上可
- 角地
- 南向き
- 追い焚き風呂
交通色がついているアイコンをクリックすると、本物件までの道順を見ることができます。
- 佐世保駅JR佐世保線、西九州線徒歩22分(約1.8km)
- 西肥バス 「山祇町」停徒歩11分
- バス停徒歩11分(約650m)
物件概要
建物の階建 地上2階建 主要採光面 南 構造 木造 バルコニー あり接道状況 一方 - 北側幅6.00mの公道に3.00m接道 位置指定:無
都市計画区域 市街化区域 私道負担 なし 地目/地勢 宅地 地勢:高台 国土法届出 不要 土地権利 所有権 用途地域 - 第1種低層住居専用地域(建ぺい率:60% / 容積率:100%)
その他費用 その他 - 固定資産税:9万4,700円
引渡し 相談 現況 空き 建築確認番号 第H16 確認建築佐世保市00220号 取引態様 仲介 物件No 仲介手数料概算 102万3,000円(金額は概算です。正確な金額は不動産会社へお問合せ下さい) 設備・特徴 - 角地
- 整形地
- 閑静な住宅街
- 高台に立地
- 物置
- 日当り良好
- 照明器具付
- フローリング
- ウォークインクローゼット
- 床下収納
- 全居室収納あり
- トイレ2ヶ所以上
- 温水洗浄トイレ
- シャワー付洗面化粧台
- 浴室乾燥機
- 追い焚き風呂
- 浴室に窓
- 浴室1坪以上
- IHクッキングヒーター
- コンロ3口以上
- システムキッチン
- カウンターキッチン
- エアコン付
- 床暖房
- エコキュート
- モニタ付インターホン
備考 ※テレビアンテナ・BSアンテナなし(配管はあり)・町費あり要確認・食洗器は故障で現状渡し 学区色がついているアイコンをクリックすると、本物件までの道順を見ることができます。
主な周辺施設色がついているアイコンをクリックすると、本物件までの道順を見ることができます。
-
※連合隊は物件情報の精度向上に努めています:「物件情報に誤りがある」「成約済みである」などお気付きの点がございましたらこちらよりご連絡ください。
写真枚数:24枚
佐世保市内でのお部屋探し・不動産に関するご相談があるお客様は縁homeへ
佐世保市内のアパート、マンションを管理させて頂いております。お客様・オーナー様とのご縁を大切し、 お客様のご要望にあう住まいのご提案をさせていただきます。お気軽にご相談下さいませ。