☆積水ハウス施工☆築4年☆シャーウッドの魅力を感じる吹き抜けリビングの平家☆☆30年保証承継☆
ここに注目!積水ハウス施工☆長期優良住宅☆築4年☆シャーウッドの魅力がつまった吹き抜けリビングの平家☆太陽光発電システム&蓄電池も備えた省エネ住宅、積水ハウスの30年長期保証も承継できます♪閑静な住宅街の一画に建つ、モダンな外観のセキスイハウス施工の平屋のお家♪高い耐震性を持ちながら、住み心地の良い大空間を可能にするシャーウッドハイブリッド構造や、半永久色あせしない陶板外壁ベルバーン等、シャーウッドの魅力を感じる高品質住宅です♪吹き抜け天井で開放的な広々としたリビングは南向きで日当たり良好♪暗くなれば高い天井を照らす間接照明のあかりが家族でもおひとりの時でもくつろぎの時間をつくります♪まだまだ築浅ですので水周りも程度良好、ハウスクリーニングのみでもお住まいいただけます♪78坪の敷地はお車もゆったりと駐車できますので、運転が苦手な方でも安心です♪
| 価格 |
3,980万円
|
|---|---|
| 建物面積 | 94.25m² (28.51坪) |
| 土地面積 | 259.68m² (78.55坪)(公簿) |
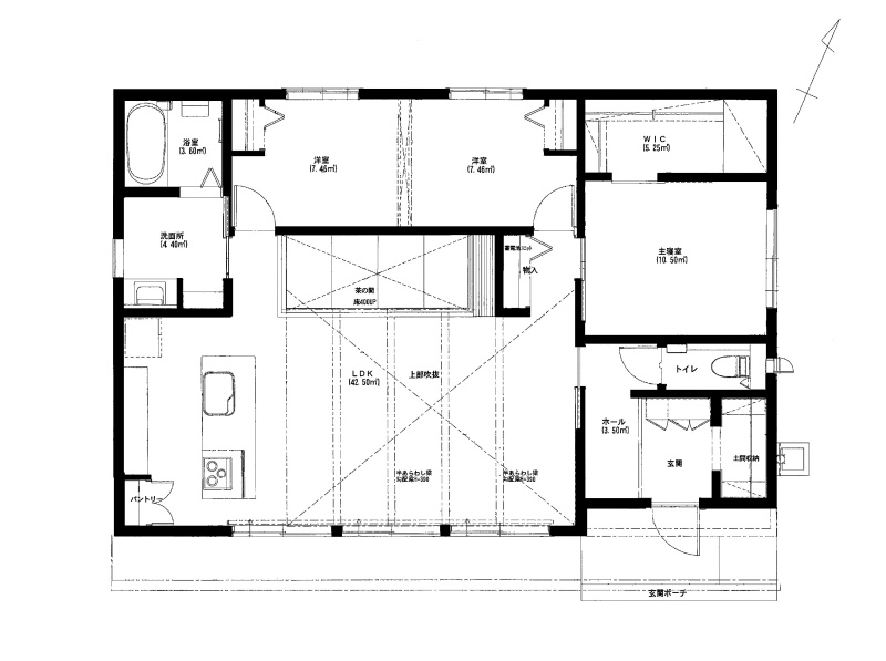
| 間取り | 3LDKLDK26.2帖 洋室6.48帖 洋室4.6帖 洋室4.6帖 |
| 住所 | 長崎県佐世保市佐世保市棚方町424-137 |
| 交通 | 西肥バス 「六条通り入口」停(徒歩4分)|棚方駅(徒歩8分)道順を見る |
| 築年月 | 築5年(2021年3月) |
| 駐車場 |
あり 駐車可能台数:3台
|
販売状況、見学、詳細を知りたい方はこちら!
お電話の際は「連合隊の物件」とお伝えください。
情報掲載期限:あと23日(更新日 2026/2/23)
- 物件写真・概要
- 周辺地図
-
販売状況、見学、詳細を知りたい方はこちら!
おすすめポイント
- 即引渡し可
- 駐車2台以上可
- 南向き
- オール電化
- 追い焚き風呂
- 平屋
交通色がついているアイコンをクリックすると、本物件までの道順を見ることができます。
- 棚方駅西九州線徒歩8分(約596m)
- 西肥バス 「六条通り入口」停徒歩4分(約320m)
物件概要
建物の階建 地上1階建 主要採光面 南 構造 木造 バルコニー あり- ウッドデッキ・テラス
接道状況 一方 - 西側幅6.00mの公道に12.30m接道
都市計画区域 市街化区域 私道負担 なし 地目/地勢 宅地 国土法届出 土地権利 所有権 用途地域 - 第1種中高層住居専用地域(建ぺい率:60% / 容積率:150%)
その他費用 毎月の費用 - 集中浄化槽:3,500円
引渡し 即時 現況 空き 施工業者 積水ハウス株式会社 建築確認番号 第20WHEC確建福01436号 取引態様 仲介 物件No 仲介手数料概算 137万9,400円(金額は概算です。正確な金額は不動産会社へお問合せ下さい) 設備・特徴 - 整形地
- 閑静な住宅街
- タイル貼り
- 太陽光発電システム
- 性能評価取得(設計住宅)
- 庭が広い(10坪以上)
- 耐震
- 日当り良好
- 照明器具付
- オール電化
- フローリング
- 吹き抜け
- 天井高2.5m以上
- ウォークインクローゼット
- 床下収納
- シューズボックス
- シューズインクローゼット
- 全居室収納あり
- 温水洗浄トイレ
- シャワー付洗面化粧台
- 浴室乾燥機
- 追い焚き風呂
- 浴室暖房
- 浴室1坪以上
- IHクッキングヒーター
- コンロ3口以上
- システムキッチン
- 食器洗乾燥機
- エアコン付
- 24時間換気システム
- エコキュート
- モニタ付インターホン
- 平屋
- 北部
備考 学区色がついているアイコンをクリックすると、本物件までの道順を見ることができます。
主な周辺施設色がついているアイコンをクリックすると、本物件までの道順を見ることができます。
-
※連合隊は物件情報の精度向上に努めています:「物件情報に誤りがある」「成約済みである」などお気付きの点がございましたらこちらよりご連絡ください。
写真枚数:26枚
















賃貸物件や売買物件のご紹介・ご案内はもちろん、不動産の売却や利活用、不動産買取や相続のご相談等お気軽におたずね下さい♪ スタッフ一同ご来店お待ちしております♪