☆築1年☆佐々町中川原免一戸建☆
ここに注目!☆築1年☆モダンな外観の一戸建てです♪複数台駐車可能で、ちょうどよい広さのお庭もあります。室内はシンプルで落ち着きのあるデザインで、各部屋ダウンライト、調光付き間接照明があるリビングは照明を落としてくつろぐことが出来ます♪洗面脱衣所は洗濯物を干せる広さがあります。浴室は一坪タイプで、色を切り替えられるLED照明です。二階ホールには大容量ウォークインクローゼットがあり、なんでも収納でき大変便利です♪洋室4.5帖はどちらも何かと使える便利なカウンターがついています♪車で5分圏内には大型スーパーや病院等多数あり利便性良好♪また、小中学校はどちらも1㎞以内でお子様の通学もしやすいです♪
| 価格 |
3,080万円
|
|---|---|
| 建物面積 | 82.8m² (25.04坪) |
| 土地面積 | 175.96m² (53.22坪)(公簿) |
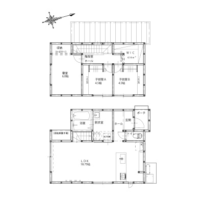
| 間取り | 3LDK1階:LDK18.7帖 / 2階:洋室6帖 洋室4.5帖 洋室4.5帖 |
| 住所 | 長崎県北松浦郡佐々町中川原免1-1 |
| 交通 | 清峰高校前駅(徒歩6分)|西肥バス 「古川」停(徒歩3分)道順を見る |
| 築年月 | 築1年(2024年10月) |
| 駐車場 |
あり 駐車可能台数:4台
|
販売状況、見学、詳細を知りたい方はこちら!
お電話の際は「連合隊の物件」とお伝えください。
情報掲載期限:あと29日(更新日 2026/1/27)
- 物件写真・概要
- 周辺地図
-
▼クリックで左の拡大画像が変わります。 すべての写真を拡大
販売状況、見学、詳細を知りたい方はこちら!
おすすめポイント
- 即引渡し可
- 築3年以内
- 駐車2台以上可
- 南向き
- オール電化
- 追い焚き風呂
交通色がついているアイコンをクリックすると、本物件までの道順を見ることができます。
- 清峰高校前駅西九州線徒歩6分(約421m)
- 西肥バス 「古川」停徒歩3分
物件概要
建物の階建 地上2階建 主要採光面 南 構造 木造 接道状況 一方 - 西側幅4.00mの公道に8.00m接道
都市計画区域 非線引区域 私道負担 なし 地目/地勢 宅地 地勢:平坦 国土法届出 土地権利 所有権 用途地域 - 無指定(建ぺい率:70% / 容積率:200%)
引渡し 即時 現況 空き 施工業者 ユーセイホーム株式会社 取引態様 仲介 物件No 仲介手数料概算 108万2,400円(金額は概算です。正確な金額は不動産会社へお問合せ下さい) 設備・特徴 - 日当り良好
- 照明器具付
- オール電化
- フローリング
- ウォークインクローゼット
- 床下収納
- シューズボックス
- 全居室収納あり
- 温水洗浄トイレ
- シャワー付洗面化粧台
- 浴室乾燥機
- 追い焚き風呂
- 浴室暖房
- 浴室1坪以上
- IHクッキングヒーター
- システムキッチン
- 食器洗乾燥機
- コンロ3口以上
- エアコン付
- エコキュート
- モニタ付インターホン
- 北部
備考 学区色がついているアイコンをクリックすると、本物件までの道順を見ることができます。
主な周辺施設色がついているアイコンをクリックすると、本物件までの道順を見ることができます。
-
※連合隊は物件情報の精度向上に努めています:「物件情報に誤りがある」「成約済みである」などお気付きの点がございましたらこちらよりご連絡ください。
写真枚数:30枚
☆佐々川遊歩道が近くにあり、ランニングや散歩におすすめです☆
☆佐々川遊歩道が近くにあり、ランニングや散歩におすすめです☆
☆西九州道佐々IC☆
















賃貸物件や売買物件のご紹介・ご案内はもちろん、不動産の売却や利活用、不動産買取や相続のご相談等お気軽におたずね下さい♪ スタッフ一同ご来店お待ちしております♪