☆トーカンマンション潮見町☆10階☆3LDK→2LDK広々リビング☆
ここに注目!☆ハウスクリーニング済み☆10階☆南向き日当り眺望良好☆以前大規模リフォームが施されており室内きれいです♪3LDKを2LDKに間取り変更していますのでリビングがとても広々しています♪2013.11リフォーム・洗面化粧台、システムキッチン交換(浄水器、食器洗浄乾燥機、電動昇降吊戸棚、三口ビルトインガスコンロ)2019.3リフォーム(トイレ、システムバス交換、室内壁紙張替え、建具交換、フローリング張替え&バリアフリー工事)元々あった段差は解消!室内はバリアフリー化されております♪玄関に靴の脱ぎ履きに便利な収納式椅子もあり、室内段差なく小さいお子様や高齢の方でも安全に不自由なくお住まいいただけます♪玄関やリビングにはピクチャーレールも設置しています。絵画や写真等自在に飾ることが出来ます♪佐世保駅徒歩5分!四ヶ町アーケードや佐世保五番街、公園や病院等近隣にあり利便性良好な好立地物件です♪南向きで日当たり良好!見晴らし通風も良好で快適にお住まいいただけます♪お問合せお待ちしております♪
| 価格 |
2,080万円
坪単価:約93.4万円/坪
管理費1万810円/月修繕積立金3,310円/月
|
|---|---|
| 間取・専有 |
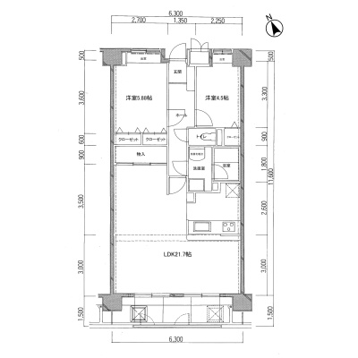
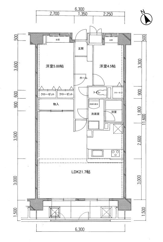
2LDK(73.6m²)└ 洋室5.8帖 洋室4.5帖 LDK21.7帖
|
| 住所 | 長崎県佐世保市潮見町8-29 |
| 交通 | 佐世保駅(徒歩5分)道順を見る |
| 築年月 | 築34年(1991年2月) |
| 駐車場 |
あり (9,000円/台) 駐車可能台数:1台
※機械式・制限等あり。詳しくはおたずねください。 |
販売状況、見学、詳細を知りたい方はこちら!
お電話の際は「連合隊の物件」とお伝えください。
情報掲載期限:あと29日(更新日 2026/1/27)
- 物件写真・概要
- 周辺地図
-
▼クリックで左の拡大画像が変わります。 すべての写真を拡大
-
-
-
-
☆オートロックはタッチキーです☆
-
☆宅配ボックス☆
-
☆吹き抜けで解放感のあるエントランスホール☆
-
☆ダブルロックの玄関ドア☆
-
☆玄関・ピクチャーレールがあります☆
-
☆広々リビング☆
-
☆広々リビング☆
-
☆リビング日当たり良好☆
-
☆以前交換されておりきれいです。電動昇降吊り戸棚・浄水器・食器洗浄乾燥機・三口コンロ☆
-
☆モニターホン☆
-
☆洗面化粧台☆
-
☆脱衣所☆
-
☆暖房乾燥機付きほっカラリ床のシステムバス☆
-
☆暖房で浴室を暖めることが出来ます☆
-
☆オート開閉蓋、温水洗浄便座付☆
-
☆段差の無いバリアフリーな洋室です☆
-
☆大容量クローゼット☆
-
☆段差の無いバリアフリーな洋室です☆
-
☆広々バルコニー☆
-
☆日当り見晴らし共に良好です☆
-
☆日当り見晴らし共に良好です☆
-
☆日当り見晴らし共に良好です☆
-
☆収納式椅子があり靴の脱ぎ履きに大変便利です☆
販売状況、見学、詳細を知りたい方はこちら!
おすすめポイント
- 即引渡し可
- 南向き
- 駐車場あり
- リフォーム済み
- 都市ガス
- 2階以上
- ペット相談可
- オートロック
- エレベーター
- 駅徒歩5分以内
- 近くて便利!徒歩5分以内にある施設
- 5分
5分- 3分
3分- 周辺施設を地図で確認
交通色がついているアイコンをクリックすると、本物件までの道順を見ることができます。
物件概要
所在階/建物の階建 10階(1010) / 地上16階建 総戸数 189戸 主要採光面 南 構造 鉄骨鉄筋コンクリート(SRC)造 バルコニー あり(9.45m²)- バルコニー南向き
土地権利 所有権 引渡し 即時 現況 空き 管理人 日勤 管理形態 全部委託 管理組合 有 施工業者 清水建設株式会社 取引態様 仲介 物件No 仲介手数料概算 75万2,400円(金額は概算です。正確な金額は不動産会社へお問合せ下さい) 修繕履歴 - 2025年2月頃に建物全体を部分的にリフォームしています。
- 2013年11月頃にキッチンをリフォームしています。施工内容:洗面化粧台、システムキッチン交換(浄水器、食器洗浄乾燥機、電動昇降吊戸棚、三口ビルトインガスコンロ)
- 2019年3月頃にリビング・トイレ・浴室・その他の箇所をリフォームしています。施工内容:浴室、トイレ、洗面所、給湯器、内装全面(床・壁・天井・建具)
設備・特徴 - エレベーター
- 駐輪場
- バイク置き場
- 日当り良好
- 照明器具付
- 室内洗濯機置場
- バリアフリー
- 遮音フローリング
- 出窓
- シューズボックス
- 全居室収納あり
- 温水洗浄トイレ
- シャワー付洗面化粧台
- 浴室乾燥機
- 浴室暖房
- コンロ3口以上
- システムキッチン
- カウンターキッチン
- 食器洗乾燥機
- 浄水器
- 都市ガス
- エアコン付
- オートロック
- モニタ付インターホン
- 防犯カメラ
- 宅配BOX
- ディンプルキー
- ペット相談可
- 猫相談可
- オーシャンビュー(海が見える立地)
- 中部
- フローリング
備考 ・自転車1,000円/年 ・バイク3,000円/年 ・令和7年度固定資産年税額84,000円 学区色がついているアイコンをクリックすると、本物件までの道順を見ることができます。
主な周辺施設色がついているアイコンをクリックすると、本物件までの道順を見ることができます。
-
-
※連合隊は物件情報の精度向上に努めています:「物件情報に誤りがある」「成約済みである」などお気付きの点がございましたらこちらよりご連絡ください。
写真枚数:26枚
☆オートロックはタッチキーです☆
☆宅配ボックス☆
☆吹き抜けで解放感のあるエントランスホール☆
☆ダブルロックの玄関ドア☆
☆玄関・ピクチャーレールがあります☆
☆広々リビング☆
☆広々リビング☆
☆リビング日当たり良好☆
☆以前交換されておりきれいです。電動昇降吊り戸棚・浄水器・食器洗浄乾燥機・三口コンロ☆
☆モニターホン☆
☆洗面化粧台☆
☆脱衣所☆
☆暖房乾燥機付きほっカラリ床のシステムバス☆
☆暖房で浴室を暖めることが出来ます☆
☆オート開閉蓋、温水洗浄便座付☆
☆段差の無いバリアフリーな洋室です☆
☆大容量クローゼット☆
☆段差の無いバリアフリーな洋室です☆
☆広々バルコニー☆
☆日当り見晴らし共に良好です☆
☆日当り見晴らし共に良好です☆
☆日当り見晴らし共に良好です☆
☆収納式椅子があり靴の脱ぎ履きに大変便利です☆
















賃貸物件や売買物件のご紹介・ご案内はもちろん、不動産の売却や利活用、不動産買取や相続のご相談等お気軽におたずね下さい♪ スタッフ一同ご来店お待ちしております♪