☆14階☆アプローズ佐世保駅☆
ここに注目!☆オーナーチェンジ☆JR佐世保駅まで徒歩2分の好立地!駅周辺の商業施設や飲食店が身近に揃い、毎日が快適な住まいです。 建物14階、南西向きの陽当り良好な3LDK。広々LDKと和室がゆとりのある暮らしを演出。大切なペットと一緒に暮らせるのも魅力です。 オートロック、宅配BOX、システムキッチン、追い焚き機能付バス、温水洗浄トイレなど設備充実。防犯カメラやディンプルキーでセキュリティも安心です。 現在賃貸中のオーナーチェンジ物件。想定年間収入150万円、表面利回り5.81%と、投資用としてもご検討いただけます。月額2,500円で駐車場も利用可。 交通・生活利便性に優れたこの物件で、新たな生活を始めてみませんか。ぜひご検討を。お問い合わせをお待ちしております!
| 価格 |
2,580万円
利回り5.81%
満室時想定年収:150万円
管理費8,100円/月修繕積立金3,900円/月
|
|---|---|
| 住所 | 長崎県佐世保市干尽町60 |
| 交通 | 佐世保駅(徒歩2分)|西肥バス 「佐世保駅前」停(徒歩3分)道順を見る |
| 築年月 | 築18年(2007年3月) |
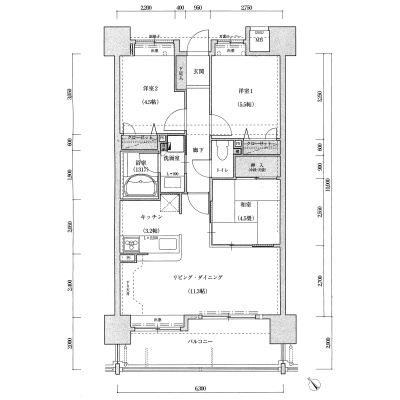
| 間取・専有 |
3LDK(63m²)└ 洋室5.5帖 洋室4.5帖 和室4.5帖 LDK14.5帖
|
| 所在階 | 14階(1403) / 地上15階建 |
| 現況 | 賃貸中(H25.6から賃貸中) |
販売状況、見学、詳細を知りたい方はこちら!
お電話の際は「連合隊の物件」とお伝えください。
情報掲載期限:あと30日(更新日 2025/12/8)
- 物件写真・概要
- 周辺地図
-
▼クリックで左の拡大画像が変わります。 すべての写真を拡大
販売状況、見学、詳細を知りたい方はこちら!
おすすめポイント
- 賃貸中
- リフォーム済み
- 駅徒歩3分以内
- バス/トイレ別
- ペット相談可
- オートロック
- エレベーター
- 2階以上
- 追い焚き風呂
- 駐車場あり
交通色がついているアイコンをクリックすると、本物件までの道順を見ることができます。
- 佐世保駅JR佐世保線、西九州線駅近!徒歩2分(約160m)
- 西肥バス 「佐世保駅前」停徒歩3分
物件概要
土地権利 所有権 主要採光面 南西 構造 鉄筋コンクリート(RC)造 駐車場 あり ※契約者負担料金:2,500円/台 駐車場台数:1台バルコニー あり(12.6m²)- バルコニー南向き
管理形態 全部委託 管理組合 有 引渡し 即時 管理人 日勤 施工業者 前田建設工業株式会社九州支店 取引態様 仲介 物件No 仲介手数料概算 91万7,400円(金額は概算です。正確な金額は不動産会社へお問合せ下さい) 修繕履歴 - 2025年4月頃に建物全体を部分的にリフォームしています。施工内容:外部大規模修繕
設備・特徴 - 駐輪場
- バイク置き場
- エレベーター
- 角地
- 日当り良好
- 室内洗濯機置場
- フローリング
- シューズボックス
- バス/トイレ別
- 温水洗浄トイレ
- シャワー付洗面化粧台
- 追い焚き風呂
- コンロ3口以上
- システムキッチン
- カウンターキッチン
- 都市ガス
- オートロック
- 防犯カメラ
- 宅配BOX
- ディンプルキー
- ペット相談可
- 猫相談可
- 中部
備考 ○令和7年度固定資産税額106,400円/年 ※駐車場機械式・高さ制限有1550㎜ 主な周辺施設色がついているアイコンをクリックすると、本物件までの道順を見ることができます。
-
※連合隊は物件情報の精度向上に努めています:「物件情報に誤りがある」「成約済みである」などお気付きの点がございましたらこちらよりご連絡ください。
写真枚数:30枚
※平成25年4月撮影
※平成25年4月撮影
※平成25年4月撮影
※平成25年4月撮影
※平成25年4月撮影
※平成25年4月撮影
※平成25年4月撮影
※平成25年4月撮影
※平成25年4月撮影
※平成25年4月撮影
※平成25年4月撮影
※平成25年4月撮影
※平成25年4月撮影
※平成25年4月撮影
















賃貸物件や売買物件のご紹介・ご案内はもちろん、不動産の売却や利活用、不動産買取や相続のご相談等お気軽におたずね下さい♪ スタッフ一同ご来店お待ちしております♪