☆敷地410坪☆海とお城を臨む一戸建て☆平戸市田平町野田免☆
ここに注目!長崎県平戸市田平町、海と歴史ある平戸城を望む一戸建てです。約410坪のゆとりある敷地、5台以上の駐車スペースと広々としたお庭が広がり、多様なライフスタイルを叶えます♪ 建物は2階建て4SLDK。2階の24.5帖のLDKは明るく開放的です♪16.5帖の洋室や8帖の和室など、各居室もゆとりの広さ。収納に便利なウォークインクローゼットや納戸、DK下には秘密基地感がある広々とした納戸もあります♪ 徒歩4分のところにサムソンホテル「なごみの湯」露天風呂もある天然温泉があります♪日常のお買い物に便利なスーパーやコンビニも車で少しの距離。さらに、この物件の魅力は、ルーフバルコニーからのオーシャンビュー!平戸城も一望できる、贅沢なロケーションです♪海が近く釣りにもすぐ行けますし、山も近くレジャーや日々の疲れを豊かな緑でリフレッシュも出来ます♪平戸の歴史、文化も感じられ、海や緑に囲まれたとても贅沢な住環境です♪この特別な住まいで、理想の暮らしを始めてみませんか?別荘として、また穏やかな移住先としてもご検討いただけます。お問い合わせをお待ちしております♪
| 価格 |
1,180万円
|
|---|---|
| 建物面積 | 213.58m² (64.6坪) |
| 土地面積 | 1370.34m² (414.52坪)(公簿) |
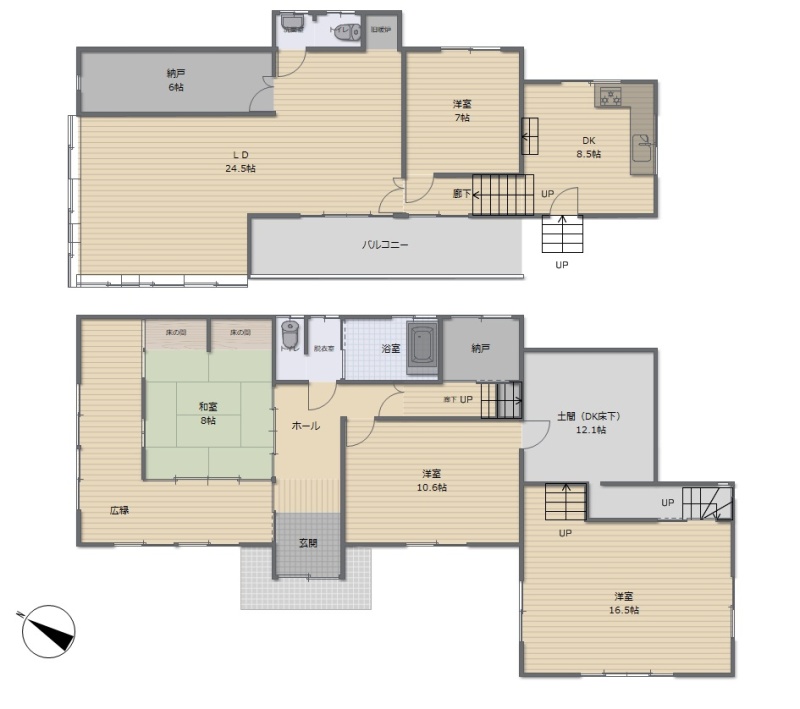
| 間取り | 4SLDK1階:洋室16.5帖 洋室10.6帖 和室8帖 / 2階:洋室7帖 LD24.5帖 DK8.5帖 / その他:S6帖 |
| 住所 | 長崎県平戸市田平町野田免186-14 |
| 交通 | 西肥バス 「田平港」停(徒歩17分)|たびら平戸口駅(徒歩24分)道順を見る |
| 築年月 | 築48年(1977年4月) |
| 駐車場 |
あり 駐車可能台数:5台
5台以上駐車可能です |
販売状況、見学、詳細を知りたい方はこちら!
お電話の際は「連合隊の物件」とお伝えください。
情報掲載期限:あと18日(更新日 2025/12/8)
- 物件写真・概要
- 周辺地図
-
販売状況、見学、詳細を知りたい方はこちら!
おすすめポイント
- 駐車2台以上可
交通色がついているアイコンをクリックすると、本物件までの道順を見ることができます。
- たびら平戸口駅西九州線徒歩24分(約2km)
- 西肥バス 「田平港」停徒歩17分
物件概要
建物の階建 地上2階建 主要採光面 南西 構造 木造 バルコニー あり- ルーフバルコニー
- ルーフバルコニー
- ルーフバルコニー
接道状況 一方 - 西側幅8.00mの公道に50.00m接道
都市計画区域 非線引区域 私道負担 なし 地目/地勢 宅地 / 公衆用道路 地勢:平坦 国土法届出 土地権利 所有権 用途地域 - ―(建ぺい率:70% / 容積率:200%)
引渡し 相談 現況 入居中 取引態様 仲介 物件No 仲介手数料概算 45万5,400円(金額は概算です。正確な金額は不動産会社へお問合せ下さい) 設備・特徴 - 庭が広い(10坪以上)
- 日当り良好
- ウォークインクローゼット
- 納戸・トランクルーム
- トイレ2ヶ所以上
- 浴室に窓
- 浴室1坪以上
- LPガス
- エアコン付
- オーシャンビュー(海が見える立地)
備考 建物②:木造瓦葺平屋建・居宅・44.68㎡・家屋番号186番14の2・昭和55年2月10日 学区色がついているアイコンをクリックすると、本物件までの道順を見ることができます。
主な周辺施設色がついているアイコンをクリックすると、本物件までの道順を見ることができます。
-
※連合隊は物件情報の精度向上に努めています:「物件情報に誤りがある」「成約済みである」などお気付きの点がございましたらこちらよりご連絡ください。
写真枚数:30枚
















賃貸物件や売買物件のご紹介・ご案内はもちろん、不動産の売却や利活用、不動産買取や相続のご相談等お気軽におたずね下さい♪ スタッフ一同ご来店お待ちしております♪