中通町戸建
ここに注目!人気の高い清水小・中校区内に、純和風の平屋戸建が出ました。南向きで日当りも良く、すぐ裏に月極駐車場が確保出来ます。佐世保市少年科学館星ひかりもすぐそばです。トイレ2ヶ所、電動シャッター・エアコン・照明付き。綺麗な庭も付いています。市役所も徒歩圏内です。
| 価格 |
1,880万円
|
|---|---|
| 建物面積 | 111.31m² (33.67坪) |
| 土地面積 | 217.08m² (65.66坪)(公簿) |
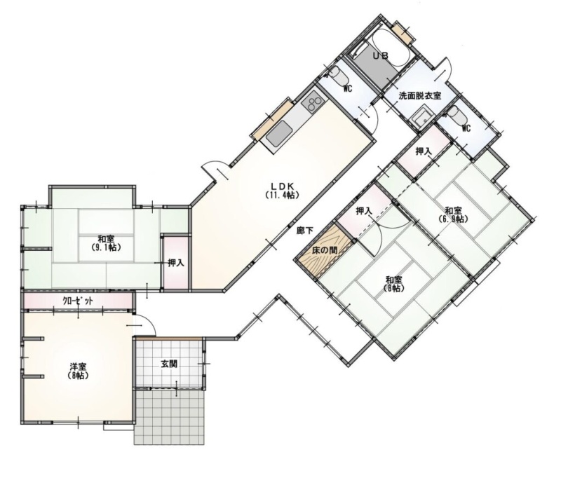
| 間取り | 4LDK1階:洋室8帖 和室8帖 和室6帖 和室6帖 / その他:LDK11.4帖 |
| 住所 | 長崎県佐世保市中通町570-7 |
| 交通 | 「総合教育センター前」停 (徒歩6分)|北佐世保駅(徒歩12分)道順を見る |
| 築年月 | 築22年(2003年7月) |
| 駐車場 |
近隣月極駐車場 (6,600円/台) 駐車可能台数:1台
|
販売状況、見学、詳細を知りたい方はこちら!
お電話の際は「連合隊の物件」とお伝えください。
情報掲載期限:あと21日(更新日 2026/3/6)
- 物件写真・概要
- 周辺地図
-
販売状況、見学、詳細を知りたい方はこちら!
おすすめポイント
- 即引渡し可
- 南向き
- 都市ガス
- 平屋
- 近くて便利!徒歩5分以内にある施設
- 5分
5分- 周辺施設を地図で確認
交通色がついているアイコンをクリックすると、本物件までの道順を見ることができます。
- 北佐世保駅西九州線徒歩12分(約933m)
- 「総合教育センター前」停 徒歩6分(約350m)
物件概要
建物の階建 地上1階建 主要採光面 南 構造 木造 接道状況 一方 - 南側幅4.00mの私道に2.10m接道 位置指定:有
都市計画区域 市街化区域 私道負担 地目/地勢 宅地 / 公衆用道路 / 雑種地 国土法届出 土地権利 所有権 用途地域 - 第2種中高層住居専用地域(建ぺい率:60% / 容積率:200%)
引渡し 即時 現況 空き 取引態様 仲介 物件No 仲介手数料概算 68万6,400円(金額は概算です。正確な金額は不動産会社へお問合せ下さい) 設備・特徴 - 閑静な住宅街
- 電動シャッター
- 日当り良好
- 照明器具付
- シューズボックス
- IHクッキングヒーター
- 都市ガス
- エアコン付
- モニタ付インターホン
- 平屋
- トイレ2ヶ所以上
備考 学区色がついているアイコンをクリックすると、本物件までの道順を見ることができます。
主な周辺施設色がついているアイコンをクリックすると、本物件までの道順を見ることができます。
-
※連合隊は物件情報の精度向上に努めています:「物件情報に誤りがある」「成約済みである」などお気付きの点がございましたらこちらよりご連絡ください。
写真枚数:22枚
マックスバリュ
セブンイレブン
佐世保市役所
清水小学校
佐世保の不動産のことならアースコンサルへ!
相続・住み替え・売却・購入・管理から不動産に関するお困りごとなど何でもお気軽にご相談ください。家賃だけで入居できるラク賃プランの賃貸物件もご用意しています。