大岳台土地
ここに注目!【9/5価格変更しました】大岳台の宅地です。登記上面積は広いですが半分くらい崖下です。コンパクトな住宅用地や駐車場用地としていかがでしょうか?
| 価格 |
190万円
坪単価:約2.5万円/坪
|
|---|---|
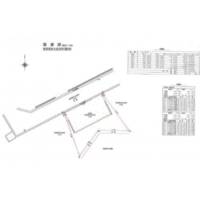
| 土地面積 | 251.45m² (76.06坪)(公簿) |
| 住所 | 長崎県佐世保市大岳台町2番594 |
| 交通 | |
| 現況 | 更地 |
| 建築条件 | なし |
| 用途地域 |
|
【WEB面談可】
販売状況、見学、詳細を知りたい方はこちら!
お電話の際は「連合隊の物件」とお伝えください。
情報掲載期限:あと20日(更新日 2025/11/28)
- 物件写真・概要
- 周辺地図
-
【WEB面談可】
販売状況、見学、詳細を知りたい方はこちら!おすすめポイント
- 即引渡し可
- 更地
- 建築条件なし
- 電気
物件概要
販売区画数/
総区画数-/- 接道状況 一方 - 北側幅6.00mの公道に16.00m接道 位置指定:無
都市計画区域 市街化区域 私道負担 なし 地目/地勢 宅地 地勢:その他 国土法届出 土地権利 所有権 用途地域 - 第1種低層住居専用地域(建ぺい率:50% / 容積率:80%)
引渡し 即時 現況 更地 取引態様 仲介 物件No 仲介手数料概算 33万円(金額は概算です。正確な金額は不動産会社へお問合せ下さい) 設備・特徴 - 高台に立地
- 閑静な住宅街
- LPガス
- 電気
備考 ※過去西部ガスのプロパン庫があり、当時のガス配管が残置されています。 ※前面道路に上下水は来ていますが敷地内引き込みがありません。 ※地盤調査・埋設物調査は行っておりません。 ※現況でのお渡しとなります。 学区色がついているアイコンをクリックすると、本物件までの道順を見ることができます。
主な周辺施設色がついているアイコンをクリックすると、本物件までの道順を見ることができます。
-
※連合隊は物件情報の精度向上に努めています:「物件情報に誤りがある」「成約済みである」などお気付きの点がございましたらこちらよりご連絡ください。
写真枚数:6枚
佐世保でのお部屋探しは第百不動産へお任せください!!
当社は佐世保エリアを中心に賃貸・売買・仲介・管理・買取などを展開しています。 なくてはならない地域No.1企業へと成長するため、心から「ありがとう」と、言ってもらえる場面を大切に、努力してまいります。