ラピスガーデン札幌東
ここに注目!◆平成11年築、RC造◆4LDK◆周辺施設充実◆地下鉄東西線【菊水】駅徒歩8分◆広々LDK◆内装リフォーム実施済(12月完成)◆弊社売主の為、仲介手数料が発生しません!お気軽にお問い合わせ下さい。
この物件は、仲介手数料がかかりません。
この物件の売主は、情報を掲載している不動産会社です。仲介物件ではないため、仲介手数料は発生しません。
| 価格 |
2,850万円
坪単価:約90.4万円/坪
管理費1万3,500円/月修繕積立金2万7,610円/月
|
|---|---|
| 間取・専有 |
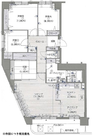
4LDK(104.2m²)└ 7階:LDK22.5帖 洋室7.5帖 洋室6帖 洋室5帖 和室5帖
|
| 住所 | 北海道札幌市白石区菊水八条二丁目5-18 |
| 交通 | 菊水駅(徒歩8分)道順を見る |
| 築年月 | 築27年(1999年2月) |
| 駐車場 |
あり
|
販売状況、見学、詳細を知りたい方はこちら!
お電話の際は「連合隊の物件」とお伝えください。
新着 情報掲載期限:あと28日(更新日 2026/2/9)
- 物件写真・概要
- 周辺地図
-
販売状況、見学、詳細を知りたい方はこちら!
おすすめポイント
- 即引渡し可
- 駐車場あり
- リフォーム済み
- 角部屋
- 2階以上
- ペット相談可
- オートロック
- エレベーター
- 近くて便利!徒歩5分以内にある施設
- 1分
1分- 5分
5分- 4分
4分- 5分
5分- 4分
4分- 周辺施設を地図で確認
交通色がついているアイコンをクリックすると、本物件までの道順を見ることができます。
物件概要
所在階/建物の階建 7階(701) / 地上10階 地下1階建 総戸数 39戸 主要採光面 構造 鉄筋コンクリート(RC)造 バルコニー あり(11.44m²)土地権利 所有権 引渡し 即時 現況 空き 管理人 日勤 管理形態 全部委託 管理組合 有 取引態様 売主 物件No 仲介手数料概算 取引態様が売主なので仲介手数料は不要です 修繕履歴 - 2025年12月頃にリビング・キッチン・トイレ・浴室・玄関・その他の箇所をリフォームしています。施工内容:フローリング一部・クロス張替え、交換(ストーブ・給湯器・キッチン・お風呂・洗面台・トイレ)実施
設備・特徴 - 閑静な住宅街
- エレベーター
- 駐輪場
- 日当り良好
- フローリング
- 室内洗濯機置場
- 角部屋
- 二重サッシ
- シューズボックス
- 全居室収納あり
- 温水洗浄トイレ
- シャワー付洗面化粧台
- コンロ3口以上
- システムキッチン
- LPガス
- 灯油暖房
- オートロック
- 防犯カメラ
- 宅配BOX
- ペット相談可
備考 学区色がついているアイコンをクリックすると、本物件までの道順を見ることができます。
主な周辺施設色がついているアイコンをクリックすると、本物件までの道順を見ることができます。
-
ホームページはこちら
北海道知事 石狩(2) 第8517号
(株)三光リアルティ〒060-0809
北海道札幌市北区北九条西2丁目12番1号
SANKO札幌駅前ビルTEL:0120-044-724(物件についてのお問い合わせ先)
TEL:011-558-3400(物件についてのお問い合わせ先)
FAX:011-558-3500(物件についてのお問い合わせ先)
定休日:第2 水曜・土曜
- 加入団体
- (公社)全日本不動産協会
- 保証協会
- (公社)不動産保証協会
- 公正取引協議会
- (一社)北海道不動産公正取引協議会
※連合隊は物件情報の精度向上に努めています:「物件情報に誤りがある」「成約済みである」などお気付きの点がございましたらこちらよりご連絡ください。
写真枚数:23枚









札幌市および近郊の収益物件のことなら三光リアルティへ!!
不動産投資について豊富な知識と経験を持ったスタッフにおまかせください。不動産の購入・売却・買い取り・査定に関する相談をお待ちしております。