ザ・札幌タワーズEAST TOWER
ここに注目!◆広告でもお馴染みの令和7年新築高層マンション!◆地下1階、地上30階建/25階部分◆3LDK+SIC◆広々バルコニー◆LDK12.2帖の風通し良い居室空間◆一級建築士監修の外観・外構・共用スペース&基本設計・デザインが洗練された暮らし◆スカイラウンジや宅配ボックス設備など細やかな配慮が行き届いた住環境◆断熱性のある構造で光熱費が抑えられ家計にも優しい設計です!お気軽にお問い合わせください。
| 価格 |
6,480万円
坪単価:約394.6万円/坪
管理費2万305円/月修繕積立金7,980円/月
|
|---|---|
| 間取・専有 |
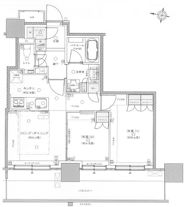
2LDK(54.3m²)└ 25階:LDK12.2帖 洋室4.5帖 洋室6.4帖
|
| 住所 | 北海道札幌市東区北六条東二丁目2 |
| 交通 | 札幌駅(徒歩7分)道順を見る |
| 築年月 | 新築(2025年7月) |
| 駐車場 |
あり
16,000~30,000円(屋外平地式、屋外・屋内機械式) |
販売状況、見学、詳細を知りたい方はこちら!
お電話の際は「連合隊の物件」とお伝えください。
情報掲載期限:あと10日(更新日 2025/10/23)
- 物件写真・概要
- 周辺地図
-
販売状況、見学、詳細を知りたい方はこちら!
おすすめポイント
- 新築
- 駐車場あり
- 2階以上
- タワーマンション
- ペット相談可
- オートロック
- エレベーター
- 複数路線利用可
- 近くて便利!徒歩5分以内にある施設
- 3分
3分- 2分
2分- 1分
1分- 2分
2分- 周辺施設を地図で確認
交通色がついているアイコンをクリックすると、本物件までの道順を見ることができます。
物件概要
所在階/建物の階建 25階(2502) / 地上30階 地下1階建 総戸数 198戸 主要採光面 北西 構造 鉄筋コンクリート(RC)造 バルコニー あり(16.2m²)土地権利 所有権 引渡し 相談 現況 空き 管理人 日勤 管理形態 全部委託 管理組合 指定なし 取引態様 仲介 物件No 仲介手数料概算 220万4,400円(金額は概算です。正確な金額は不動産会社へお問合せ下さい) 設備・特徴 - 複数路線利用可
- エレベーター
- 24時間ゴミ出し可
- 駐輪場
- バイク置き場
- 屋内駐車場
- タワーマンション
- 制震
- デザイナーズ
- 日当り良好
- 室内洗濯機置場
- ウォークインクローゼット
- シューズインクローゼット
- 全居室収納あり
- 温水洗浄トイレ
- IHクッキングヒーター
- システムキッチン
- 浄水器
- ディスポーザー
- オートロック
- モニタ付インターホン
- 宅配BOX
- ペット相談可
備考 学区色がついているアイコンをクリックすると、本物件までの道順を見ることができます。
主な周辺施設色がついているアイコンをクリックすると、本物件までの道順を見ることができます。
-
ホームページはこちら
北海道知事 石狩(2) 第8517号
(株)三光リアルティ〒060-0809
北海道札幌市北区北九条西2丁目12番1号
SANKO札幌駅前ビルTEL:0120-044-724(物件についてのお問い合わせ先)
TEL:011-558-3400(物件についてのお問い合わせ先)
FAX:011-558-3500(物件についてのお問い合わせ先)
定休日:第2 水曜・土曜
- 加入団体
- (公社)全日本不動産協会
- 保証協会
- (公社)不動産保証協会
- 公正取引協議会
- (一社)北海道不動産公正取引協議会
※連合隊は物件情報の精度向上に努めています:「物件情報に誤りがある」「成約済みである」などお気付きの点がございましたらこちらよりご連絡ください。
写真枚数:25枚
作図につき、現況を優先します。
イーストタワー&ウエストタワー









札幌市および近郊の収益物件のことなら三光リアルティへ!!
不動産投資について豊富な知識と経験を持ったスタッフにおまかせください。不動産の購入・売却・買い取り・査定に関する相談をお待ちしております。