クルーザーバレー宮の沢Ⅰ
ここに注目!「徒歩5分で駅アクセス!通勤・通学が快適な好立地マンション」 「買い物・医療・学校が徒歩圏に揃う、理想の生活環境」 「ゆとりの広さ×収納充実の住まいで、家族みんなが快適に暮らせる住居」
| 価格 |
3,580万円
坪単価:約138.2万円/坪
管理費1万200円/月修繕積立金1万5,150円/月
|
|---|---|
| 間取・専有 |
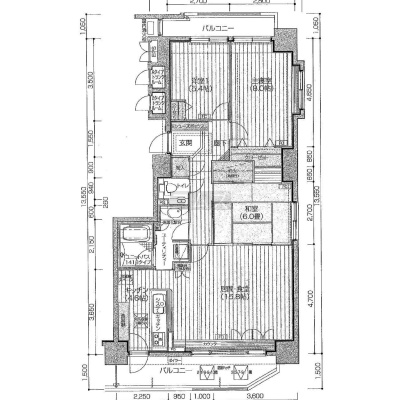
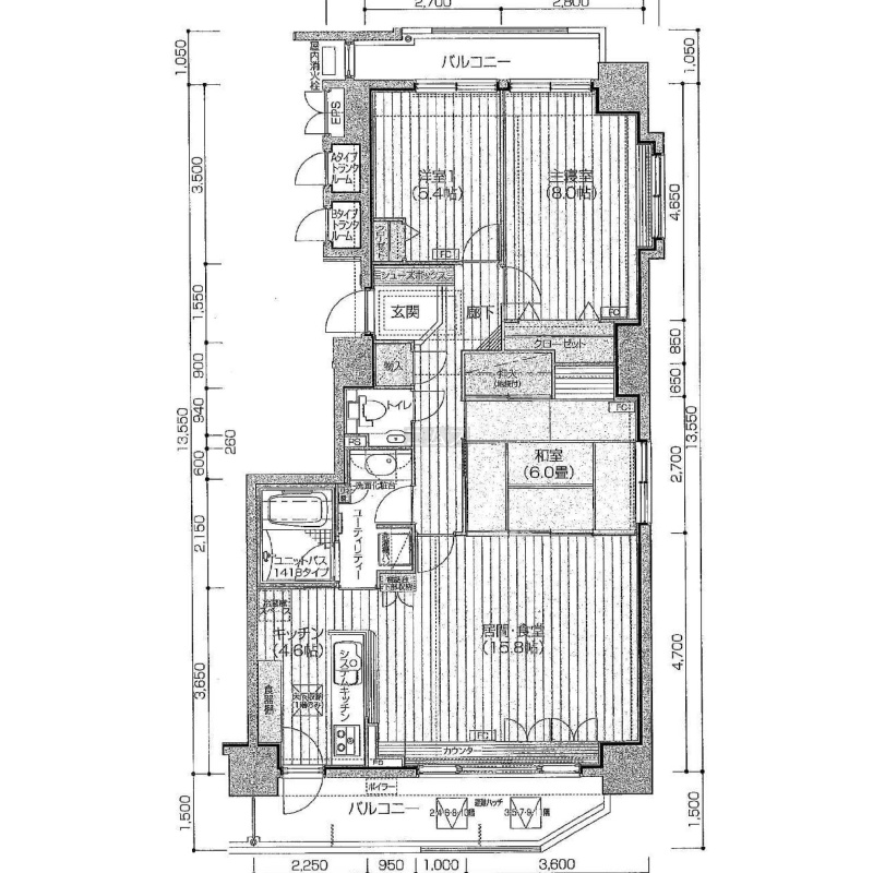
3LDK(85.68m²)└ 6階:LD15.8帖 K4.6帖 洋室8帖 和室6帖 洋室5.4帖
|
| 住所 | 北海道札幌市西区発寒六条13-1-1 |
| 交通 | 宮の沢駅(徒歩5分)|発寒駅(徒歩13分)道順を見る |
| 築年月 | 築23年(2002年5月) |
| 駐車場 |
あり (8,000円/台) 駐車可能台数:1台
|
販売状況、見学、詳細を知りたい方はこちら!
お電話の際は「連合隊の物件」とお伝えください。
新着 情報掲載期限:あと30日(更新日 2025/12/25)
- 物件写真・概要
- 周辺地図
-
販売状況、見学、詳細を知りたい方はこちら!
おすすめポイント
- 駐車場あり
- 角部屋
- 追い焚き風呂
- 2階以上
- オートロック
- 駅徒歩5分以内
- 複数路線利用可
- 近くて便利!徒歩5分以内にある施設
- 2分
2分- 3分
3分- 周辺施設を地図で確認
交通色がついているアイコンをクリックすると、本物件までの道順を見ることができます。
物件概要
所在階/建物の階建 6階(602) / 地上11階建 総戸数 22戸 主要採光面 構造 鉄筋コンクリート(RC)造 バルコニー あり- バルコニー2面以上
土地権利 所有権 引渡し 引渡し予定:2026年2月中旬 現況 入居中 管理人 日勤 管理形態 全部委託 管理組合 有 取引態様 仲介 物件No 仲介手数料概算 124万7,400円(金額は概算です。正確な金額は不動産会社へお問合せ下さい) 設備・特徴 - 複数路線利用可
- 角部屋
- IHクッキングヒーター
- 追い焚き風呂
- エアコン付
- 灯油ボイラー
- オートロック
- モニタ付インターホン
備考 学区色がついているアイコンをクリックすると、本物件までの道順を見ることができます。
主な周辺施設色がついているアイコンをクリックすると、本物件までの道順を見ることができます。
-
ホームページはこちら
北海道知事 石狩(4) 第7160号
(株)コムズ
※連合隊は物件情報の精度向上に努めています:「物件情報に誤りがある」「成約済みである」などお気付きの点がございましたらこちらよりご連絡ください。
写真枚数:9枚
札幌市の住まい探しはコムズにお任せ!
ベテランのスタッフが多数在籍しておりますのでまずはお気軽にお問合せください!ご希望の方はお迎えにあがります!!