GRADEA
ここに注目!●6,600万円!利回り7.22% ●管理会社引継ぎはありません! ●8戸中7戸賃貸中! ●令和2年一部内装壁紙張替え・駐車場アスファルト敷直し 物置新設・洗面化粧台交換一部・セコム防犯カメラ設置 令和7年エアコン新設(102)
| 価格 |
6,600万円
利回り7.22%
満室時想定年収:477万6,000円
|
|---|---|
| 住所 | 北海道札幌市東区北四十五条東8-3-8 |
| 交通 | 太平駅(徒歩16分)|栄町駅(徒歩18分)|麻生駅(徒歩26分)道順を見る |
| 築年月 | 築20年(2005年10月) |
| 構造 | 鉄筋コンクリート(RC)造 |
| 面積 | 建物:314.31m² (95.07坪)/ 土地:158.67m² (47.99坪)(公簿) 専有:最小17.5m² (5.29坪)~最大43.68m² (13.21坪) |
| 現況 | 空室1室のみ(総戸数8戸中 7戸賃貸中) |
販売状況、見学、詳細を知りたい方はこちら!
お電話の際は「連合隊の物件」とお伝えください。
新着 情報掲載期限:あと26日(更新日 2026/4/12)
- 物件写真・概要
- 周辺地図
-
販売状況、見学、詳細を知りたい方はこちら!
おすすめポイント
- 空室が1室のみ
交通色がついているアイコンをクリックすると、本物件までの道順を見ることができます。
物件概要
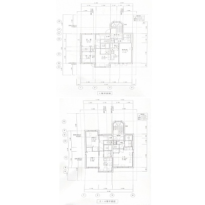
建物の階建 地上4階建 間取り 2DK×3戸、2LDK×1戸、ワンルーム×4戸 駐車場 あり 駐車場台数:3台接道状況 一方 - 北側幅6.00mの公道に10.90m接道
都市計画区域 市街化区域 用途地域 - 第1種住居地域(建ぺい率:60% / 容積率:200%)
私道負担 なし 地目/地勢 宅地 地勢:平坦 国土法届出 不要 土地権利 所有権 引渡し 即時 取引態様 仲介 物件No 仲介手数料概算 不動産会社へお問合せください 設備・特徴 備考 主な周辺施設色がついているアイコンをクリックすると、本物件までの道順を見ることができます。
-
ホームページはこちら
北海道知事 石狩(3) 第8309号
(株)ジェームス・エージェンシー〒060-0061
北海道札幌市中央区南一条西11丁目327
ワンズ南一条ビル 5FTEL:011-223-7878
FAX:011-211-8614
営業時間:9:00~18:00
定休日:毎週 水曜
- 加入団体
- (公社)北海道宅地建物取引業協会
- 保証協会
- (公社)全国宅地建物取引業保証協会
- 公正取引協議会
- (一社)北海道不動産公正取引協議会
※連合隊は物件情報の精度向上に努めています:「物件情報に誤りがある」「成約済みである」などお気付きの点がございましたらこちらよりご連絡ください。
写真枚数:8枚
外観
間取り図
GRADEA
共用部
外観
卸売スーパー
DCMホーマック
ドンキホーテ
札幌市内・近郊の不動産売買、収益物件、リノベーション企画、新築等、住まいに関する相談を承っております
「お客様の満足を最大限に!」をテーマに日々たくさんの不動産情報を調査しております。 その中には「掘り出し物件」や「非公開物件」も多数ご用意しております。