レヴィ浅草リバーフロント
ここに注目!入居者属性の良いファミリー投資案件がでました。 表面利回り4.08%!! ペットの飼育も可能で入居募集の際にも他の物件より有利です!! 是非、御検討ください!!
| 価格 |
5,580万円
利回り4.3%
満室時想定年収:240万円
管理費6,500円/月修繕積立金1万3,130円/月
|
|---|---|
| 住所 | 東京都台東区橋場1-36-9 |
| 交通 | 三ノ輪橋駅(徒歩28分)|南千住駅(徒歩25分)|京成曳舟駅(徒歩27分)|曳舟駅(徒歩26分)|東向島駅(徒歩21分)道順を見る |
| 築年月 | 築19年(2006年2月) |
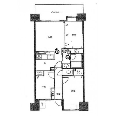
| 間取・専有 |
3LDK(60.45m²)└ 13階:洋室6帖 洋室5.7帖 和室5.6帖 LDK10.8帖
|
| 所在階 | 13階(1306) / 地上15階建 |
| 現況 | 賃貸中 |
販売状況、見学、詳細を知りたい方はこちら!
お電話の際は「連合隊の物件」とお伝えください。
情報掲載期限:あと25日(更新日 2025/12/17)
- 物件写真・概要
- 周辺地図
-
販売状況、見学、詳細を知りたい方はこちら!
おすすめポイント
- 賃貸中
- バス/トイレ別
- ペット相談可
- オートロック
- エレベーター
- 2階以上
- 追い焚き風呂
交通色がついているアイコンをクリックすると、本物件までの道順を見ることができます。
- 三ノ輪橋駅東京さくらトラム(都電荒川線)徒歩28分(約2.3km)
- 南千住駅東京メトロ日比谷線、JR常磐線、つくばエクスプレス徒歩25分(約2km)
- 京成曳舟駅京成押上線徒歩27分(約2.2km)
- 曳舟駅東武亀戸線、東武伊勢崎線徒歩26分(約2.1km)
- 東向島駅東武伊勢崎線徒歩21分(約1.7km)
物件概要
土地権利 所有権 主要採光面 西 構造 鉄筋コンクリート(RC)造 駐車場 なしバルコニー あり(12m²)管理形態 全部委託 管理組合 有 引渡し 即時 管理人 巡回 取引態様 仲介 物件No 仲介手数料概算 200万6,400円(金額は概算です。正確な金額は不動産会社へお問合せ下さい) 設備・特徴 - エレベーター
- バス/トイレ別
- 温水洗浄トイレ
- 浴室乾燥機
- 追い焚き風呂
- ガスコンロ
- コンロ2口
- 都市ガス
- オートロック
- モニタ付インターホン
- 宅配BOX
- ペット相談可
備考 主な周辺施設色がついているアイコンをクリックすると、本物件までの道順を見ることができます。
-
ホームページはこちら
福岡県知事 (8) 第10747号
(株)不動産バンク〒802-0003
福岡県北九州市小倉北区米町1-5-18
第15エルザビル 1FTEL:093-512-1655
FAX:093-521-3429
営業時間:10:00~19:00
定休日:毎週 木曜
※連合隊は物件情報の精度向上に努めています:「物件情報に誤りがある」「成約済みである」などお気付きの点がございましたら こちら よりご連絡ください。
写真枚数:2枚


弊社は、皆様からのご愛眼のおかげで創立28年を迎え、賃貸斡旋・売買を始め、これまでに多くのお客様とお部屋・物件探しを行ってまいりました。今まで以上に皆様に愛される町の不動産屋さんを目指し頑張ります。