七飯町大川5丁目 中古物件
ここに注目!大中山小学校区内、七飯町大川5丁目の中古物件です。 現在入居中につき、内覧ご希望の方は日程に余裕を持ってご連絡ください。
| 価格 |
1,000万円
|
|---|---|
| 建物面積 | 125.55m² (37.97坪) |
| 土地面積 | 210.36m² (63.63坪) |
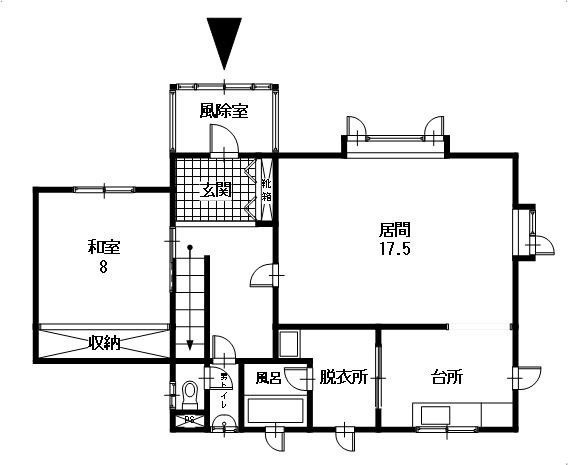
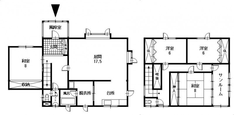
| 間取り | 4LDK1階:LDK17.5帖 和室8帖 DK6帖 / 2階:洋室6帖 洋室6帖 和室8帖 |
| 住所 | 北海道亀田郡七飯町大川5-6-41 |
| 交通 | 大中山駅(徒歩19分) |
| 築年月 | 築33年(1992年2月) |
| 駐車場 |
あり 駐車可能台数:2台
|
販売状況、見学、詳細を知りたい方はこちら!
お電話の際は「連合隊の物件」とお伝えください。
情報掲載期限:あと11日(更新日 2025/12/2)
- 物件写真・概要
- 周辺地図
-
販売状況、見学、詳細を知りたい方はこちら!
おすすめポイント
- 駐車2台以上可
- 角地
- 追い焚き風呂
- 近くて便利!徒歩5分以内にある施設
- 5分
5分- 周辺施設を地図で確認
交通色がついているアイコンをクリックすると、本物件までの道順を見ることができます。
物件概要
建物の階建 地上2階建 主要採光面 北東 構造 木造 接道状況 角地 - 北東側幅4.70mの公道に接道
- 北西側幅6.80mの公道に接道
都市計画区域 市街化区域 私道負担 なし 地目/地勢 宅地 地勢:平坦 国土法届出 土地権利 所有権 用途地域 - 第1種低層住居専用地域(建ぺい率:50% / 容積率:80%)
引渡し 相談(入居中のため要相談) 現況 入居中 取引態様 仲介 物件No 仲介手数料概算 39万6,000円(金額は概算です。正確な金額は不動産会社へお問合せ下さい) 設備・特徴 - 角地
- 閑静な住宅街
- 物置
- 玄関フード
- 日当り良好
- 照明器具付
- フローリング
- 吹き抜け
- 出窓
- 納戸・トランクルーム
- 床下収納
- シューズインクローゼット
- トイレ2ヶ所以上
- 温水洗浄トイレ
- シャワー付洗面化粧台
- 追い焚き風呂
- 浴室に窓
- 浴室1坪以上
- LPガス
- エアコン付
- 灯油暖房
- 灯油ボイラー
備考 ※間取り・設備は現況を優先します。 学区色がついているアイコンをクリックすると、本物件までの道順を見ることができます。
主な周辺施設色がついているアイコンをクリックすると、本物件までの道順を見ることができます。
-
※連合隊は物件情報の精度向上に努めています:「物件情報に誤りがある」「成約済みである」などお気付きの点がございましたらこちらよりご連絡ください。
写真枚数:8枚
1階間取
2階間取