北広島市 希望ケ丘1丁目 中古戸建
ここに注目!>北西・北東向き角地の為、日当たり通風良好です >広い庭があり家庭菜園・バーベキューが楽しめます >エスコンフィールドHOKKAIDOまで車で約14分 >近隣に景色の美しいゴルフ場がございます
| 価格 |
1,680万円
|
|---|---|
| 建物面積 | 181.34m² (54.85坪) |
| 土地面積 | 270.63m² (81.86坪)(公簿) |
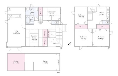
| 間取り | 4LDK |
| 住所 | 北海道北広島市希望ケ丘1-5-7 |
| 交通 | 「希望ヶ丘」停(徒歩3分) |
| 築年月 | 築25年(2000年10月) |
| 駐車場 |
あり
|
販売状況、見学、詳細を知りたい方はこちら!
お電話の際は「連合隊の物件」とお伝えください。
新着 情報掲載期限:あと27日(更新日 2025/12/13)
- 物件写真・概要
- 周辺地図
-
販売状況、見学、詳細を知りたい方はこちら!
おすすめポイント
- 駐車場あり
- 角地
- 南向き
- 近くて便利!徒歩5分以内にある施設
- 5分
5分- 3分
3分- 周辺施設を地図で確認
交通
- 北広島駅JR千歳線バス18分→ 「希望ヶ丘」停徒歩3分
物件概要
建物の階建 地上2階 地下1階建 主要採光面 南 構造 木造 接道状況 角地 - 北東側幅8.00mの公道に12.10m接道
- 北西側幅8.00mの公道に16.90m接道
都市計画区域 市街化区域 私道負担 地目/地勢 宅地 地勢:平坦 国土法届出 土地権利 所有権 用途地域 - 第1種低層住居専用地域(建ぺい率:40% / 容積率:60%)
引渡し 相談 現況 空き 施工業者 豊栄建設株式会社 取引態様 仲介 物件No 仲介手数料概算 62万400円(金額は概算です。正確な金額は不動産会社へお問合せ下さい) 設備・特徴 - システムキッチン
- カウンターキッチン
- LPガス
- 閑静な住宅街
- 浴室1坪以上
- 整形地
- 角地
備考 学区色がついているアイコンをクリックすると、本物件までの道順を見ることができます。
主な周辺施設色がついているアイコンをクリックすると、本物件までの道順を見ることができます。
-
ホームページはこちら北海道知事 石狩(3) 第7905号
ハウスユー千歳店 (有)丸鍾- 加入団体
- (公社)北海道宅地建物取引業協会
- 保証協会
- (公社)全国宅地建物取引業保証協会
- 公正取引協議会
- 未加盟
※連合隊は物件情報の精度向上に努めています:「物件情報に誤りがある」「成約済みである」などお気付きの点がございましたらこちらよりご連絡ください。
写真枚数:4枚