ライオンズマンション琴似第3
ここに注目!新規リノベーション物件 令和7年11月下旬完了予定 >ペット飼育不可 >オートロック付き
| 価格 |
1,890万円
坪単価:約143.5万円/坪
管理費7,000円/月修繕積立金1万2,200円/月
|
|---|---|
| 間取・専有 |
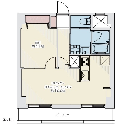
1SLDK(43.56m²)└ LDK12.2帖 S5.2帖
|
| 住所 | 北海道札幌市西区琴似一条1-3-12 |
| 交通 | 琴似駅(徒歩6分)|琴似駅(徒歩9分)|八軒駅(徒歩18分)道順を見る |
| 築年月 | 築41年(1984年5月) |
| 駐車場 |
空き待ち
|
販売状況、見学、詳細を知りたい方はこちら!
お電話の際は「連合隊の物件」とお伝えください。
情報掲載期限:あと21日(更新日 2025/11/29)
- 物件写真・概要
- 周辺地図
-
販売状況、見学、詳細を知りたい方はこちら!
おすすめポイント
- 2階以上
- オートロック
- エレベーター
- 近くて便利!徒歩5分以内にある施設
- 3分
3分- 4分
4分- 4分
4分- 2分
2分- 周辺施設を地図で確認
交通色がついているアイコンをクリックすると、本物件までの道順を見ることができます。
物件概要
所在階/建物の階建 10階(1002) / 地上14階建 総戸数 93戸 主要採光面 西 構造 鉄骨鉄筋コンクリート(SRC)造 バルコニー あり(7.26m²)土地権利 所有権 引渡し 相談 現況 空き 管理人 日勤 管理形態 全部委託 管理組合 有 施工業者 佐藤工業(株) 取引態様 仲介 物件No 仲介手数料概算 不動産会社へお問合せください 設備・特徴 - エレベーター
- オートロック
- 浄水器
- 温水洗浄トイレ
- モニタ付インターホン
- 防犯カメラ
備考 学区色がついているアイコンをクリックすると、本物件までの道順を見ることができます。
主な周辺施設色がついているアイコンをクリックすると、本物件までの道順を見ることができます。
-
ホームページはこちら北海道知事 石狩(3) 第7905号
ハウスユー千歳店 (有)丸鍾- 加入団体
- (公社)北海道宅地建物取引業協会
- 保証協会
- (公社)全国宅地建物取引業保証協会
- 公正取引協議会
- 未加盟
※連合隊は物件情報の精度向上に努めています:「物件情報に誤りがある」「成約済みである」などお気付きの点がございましたらこちらよりご連絡ください。
写真枚数:1枚