ブランズタワーアイム札幌大通公園
ここに注目!札幌駅徒歩圏、タワーマンション、スカイラウンジ
| 価格 |
5,880万円
坪単価:約240.3万円/坪
管理費1万2,000円/月修繕積立金1万6,200円/月
|
|---|---|
| 間取・専有 |
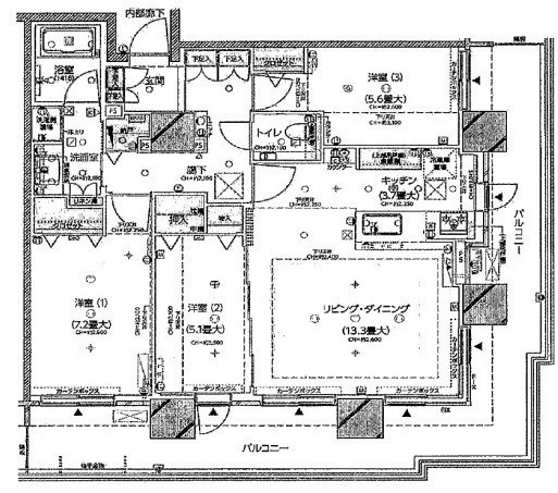
3LDK(80.9m²)
|
| 住所 | 北海道札幌市中央区北一条西10-1-28 |
| 交通 | 西11丁目駅(徒歩4分)|大通駅(徒歩17分) |
| 築年月 | 築8年(2017年2月) |
| 駐車場 |
販売状況、見学、詳細を知りたい方はこちら!
お電話の際は「連合隊の物件」とお伝えください。
情報掲載期限:あと12日(更新日 2025/11/29)
- 物件写真・概要
- 周辺地図
-
販売状況、見学、詳細を知りたい方はこちら!
おすすめポイント
- 即引渡し可
- 都市ガス
- 2階以上
- タワーマンション
- ペット相談可
- 駅徒歩5分以内
- 近くて便利!徒歩5分以内にある施設
- 2分
2分- 2分
2分- 4分
4分- 周辺施設を地図で確認
交通色がついているアイコンをクリックすると、本物件までの道順を見ることができます。
物件概要
所在階/建物の階建 7階 / 地上26階 地下1階建 総戸数 主要採光面 構造 鉄筋コンクリート(RC)造 バルコニー あり(30.44m²)土地権利 所有権 その他費用 毎月の費用 - インターネット使用料:1,430円
その他 - プロバイダ利用料:550円
- 自転車置き場使用料1台:200円
引渡し 即時 現況 空き 管理人 日勤 管理形態 全部委託 管理組合 指定なし 施工業者 佐藤工業株式会社 札幌支店 取引態様 仲介 物件No 仲介手数料概算 不動産会社へお問合せください 設備・特徴 - タワーマンション
- 都市ガス
- 床暖房
- ペット相談可
備考 都市ガス、ガス給湯器、EV、ペット飼育可、床暖房 学区色がついているアイコンをクリックすると、本物件までの道順を見ることができます。
主な周辺施設色がついているアイコンをクリックすると、本物件までの道順を見ることができます。
-
ホームページはこちら北海道知事 石狩(3) 第7905号
ハウスユー千歳店 (有)丸鍾- 加入団体
- (公社)北海道宅地建物取引業協会
- 保証協会
- (公社)全国宅地建物取引業保証協会
- 公正取引協議会
- 未加盟
※連合隊は物件情報の精度向上に努めています:「物件情報に誤りがある」「成約済みである」などお気付きの点がございましたらこちらよりご連絡ください。
写真枚数:2枚