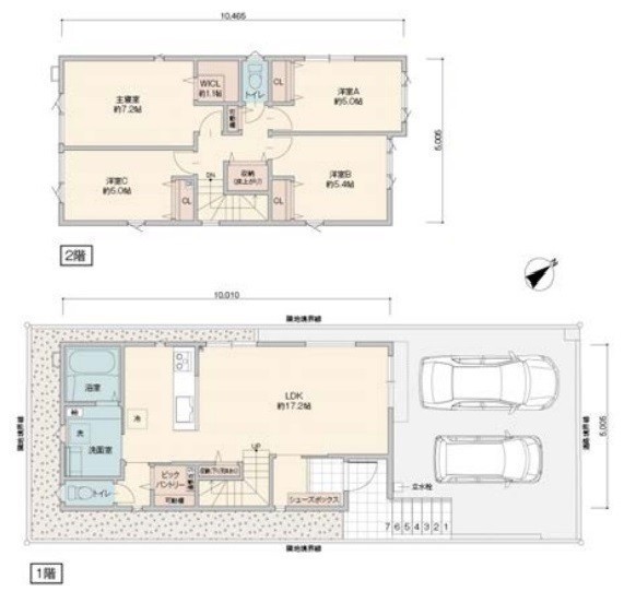
札幌市清田区 北野一条1丁目(福住駅)2階建 4LDK
ここに注目!新築戸建!京阪の家です。 ビッグパントリー/リビング階段/広々ウォークインクローゼット/個別LPG/ガス暖房 等々
| 価格 |
3,190万円
|
|---|---|
| 建物面積 | 99.07m² (29.96坪) |
| 土地面積 | 112.87m² (34.14坪) |
| 間取り | 4LDK |
| 住所 | 北海道札幌市清田区北野一条1-8-5 |
| 交通 | 福住駅(徒歩30分)|南郷18丁目駅(徒歩32分)|平和駅(徒歩60分)|南平岸駅(徒歩65分) |
| 築年月 | 築2年(2023年11月) |
| 駐車場 |
販売状況、見学、詳細を知りたい方はこちら!
お電話の際は「連合隊の物件」とお伝えください。
情報掲載期限:あと28日(更新日 2025/12/27)
- 物件写真・概要
- 周辺地図
-
販売状況、見学、詳細を知りたい方はこちら!
おすすめポイント
- 即引渡し可
- 築3年以内
- 近くて便利!徒歩5分以内にある施設
- 4分
4分- 5分
5分- 2分
2分- 周辺施設を地図で確認
交通色がついているアイコンをクリックすると、本物件までの道順を見ることができます。
- 福住駅札幌市営地下鉄東豊線徒歩30分(約2.4km)
- 南郷18丁目駅札幌市営地下鉄東西線徒歩32分(約2.6km)
- 平和駅JR千歳線徒歩60分(約4.8km)
- 南平岸駅札幌市営地下鉄南北線徒歩65分(約5.2km)
物件概要
建物の階建 地上2階建 主要採光面 構造 木造 接道状況 - 北東側幅8.00mの公道に接道
都市計画区域 私道負担 なし 地目/地勢 宅地 国土法届出 土地権利 所有権 用途地域 - 第1種中高層住居専用地域(建ぺい率:60% / 容積率:200%)
引渡し 即時 現況 空き 建築確認番号 第SKK20225131号 取引態様 仲介 物件No 仲介手数料概算 不動産会社へお問合せください 設備・特徴 - ウォークインクローゼット
- ガス暖房
備考 学区色がついているアイコンをクリックすると、本物件までの道順を見ることができます。
主な周辺施設色がついているアイコンをクリックすると、本物件までの道順を見ることができます。
-
ホームページはこちら北海道知事 石狩(3) 第7905号
ハウスユー千歳店 (有)丸鍾- 加入団体
- (公社)北海道宅地建物取引業協会
- 保証協会
- (公社)全国宅地建物取引業保証協会
- 公正取引協議会
- 未加盟
※連合隊は物件情報の精度向上に努めています:「物件情報に誤りがある」「成約済みである」などお気付きの点がございましたらこちらよりご連絡ください。
写真枚数:4枚