新川戸建
ここに注目!札幌市北区新川に、ご家族の夢を育む広々とした一戸建てが登場しました! それもなんと、ミサワホームの注文住宅! 約230m²のゆとりある敷地に建つ5LDKの間取りは、お子様それぞれの個室や趣味の空間も確保しやすいのが魅力です。約152m²の広々とした室内には、システムキッチンとカウンターキッチンを備えたLDKがあり、ご家族の会話も弾みます。 全居室収納はもちろん、納戸やウォークインクローゼット、床下収納と、収納スペースが充実しているので、お部屋をいつもすっきりと保てますね。南東角地で日当たり良好、3面採光の明るい空間で、心地よい毎日をお過ごしいただけます。 敷地内には、駐車場2台分が確保でき、お車をお持ちのご家庭も安心です。徒歩2分の場所に銀行があり、コンビニやスーパー、保育園、小中学校も徒歩圏内に揃うため、日々の暮らしをサポートしてくれる便利な環境が整っています。 ご家族の新しい物語が始まるこの場所で、心豊かな暮らしを実現しませんか。ぜひ一度、現地でこの魅力を体感してください。
| 価格 |
4,500万円
|
|---|---|
| 建物面積 | 152.43m² (46.11坪) |
| 土地面積 | 230m² (69.57坪)(公簿) |
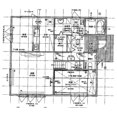
| 間取り | 5LDK1階:L12.5帖 DK10帖 和室6帖 / 2階:洋室7.5帖 洋室7.5帖 洋室6帖 洋室6帖 |
| 住所 | 北海道札幌市北区新川三条7-11-8 |
| 交通 | 新川駅(徒歩18分)道順を見る |
| 築年月 | 築19年(2006年12月) |
| 駐車場 |
あり 駐車可能台数:2台
敷地内 |
販売状況、見学、詳細を知りたい方はこちら!
お電話の際は「連合隊の物件」とお伝えください。
情報掲載期限:あと10日(更新日 2026/2/4)
- 物件写真・概要
- 周辺地図
-
販売状況、見学、詳細を知りたい方はこちら!
おすすめポイント
- 駐車2台以上可
- 角地
交通色がついているアイコンをクリックすると、本物件までの道順を見ることができます。
物件概要
建物の階建 地上2階建 主要採光面 南東 構造 木造 接道状況 角地 - 南東側の公道に接道
- 南西側の公道に接道
都市計画区域 市街化区域 私道負担 なし 地目/地勢 宅地 国土法届出 土地権利 所有権 用途地域 - 第1種低層住居専用地域(建ぺい率:50% / 容積率:80%)
引渡し 引渡し予定:2026年7月下旬 現況 入居中 取引態様 仲介 物件No 仲介手数料概算 155万1,000円(金額は概算です。正確な金額は不動産会社へお問合せ下さい) 設備・特徴 - 角地
- 日当り良好
- 3面採光
- 床下収納
- ウォークインクローゼット
- 納戸・トランクルーム
- 全居室収納あり
- トイレ2ヶ所以上
- システムキッチン
- カウンターキッチン
備考 学区色がついているアイコンをクリックすると、本物件までの道順を見ることができます。
主な周辺施設色がついているアイコンをクリックすると、本物件までの道順を見ることができます。
-
ホームページはこちら
北海道知事 石狩(6) 第6273号
(有)友伸 山鼻店
※連合隊は物件情報の精度向上に努めています:「物件情報に誤りがある」「成約済みである」などお気付きの点がございましたらこちらよりご連絡ください。
写真枚数:4枚
1984創業
創業以地元で愛され続けている不動産屋です。 とにかく信頼を頂けるように常にお客様と接しております。