糸島市有田中央戸建
ここに注目!広々とした延床面積93.42㎡の居室空間、更に頭上を遮るものがなく開放感が魅力のルーフバルコニー付なので、夜空を独り占めすることもできます。また手入れもラクで意外とパワフルなIHクッキングヒーター付で、その上食後お皿を下げるのもスムーズなカウンターキッチン仕様なので、食後の片付けも楽ちんです。ちなみに冬の立ち仕事も苦にならない床暖房付キッチンです。家族が帰宅を焦がれる3LDK。是非見学にお越しください。
| 価格 |
4,680万円
|
|---|---|
| 建物面積 | 93.42m² (28.25坪) |
| 土地面積 | 198.05m² (59.91坪)(公簿) |
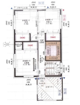
| 間取り | 3LDK1階:LDK17.71帖 / その他:洋室5.25帖 洋室5帖 洋室4.5帖 |
| 住所 | 福岡県糸島市有田中央2 |
| 交通 | 筑前前原駅(徒歩28分)道順を見る |
| 築年月 | 築3年(2022年8月) |
| 駐車場 |
あり
|
販売状況、見学、詳細を知りたい方はこちら!
お電話の際は「連合隊の物件」とお伝えください。
情報掲載期限:あと14日(更新日 2025/11/21)
- 物件写真・概要
- 周辺地図
-
販売状況、見学、詳細を知りたい方はこちら!
おすすめポイント
- 築5年以内
- 駐車場あり
- 近くて便利!徒歩5分以内にある施設
- 5分
5分- 周辺施設を地図で確認
交通色がついているアイコンをクリックすると、本物件までの道順を見ることができます。
物件概要
建物の階建 地上2階建 主要採光面 構造 木造 接道状況 都市計画区域 市街化区域 私道負担 地目/地勢 宅地 国土法届出 土地権利 所有権 用途地域 - 第1種低層住居専用地域(建ぺい率:50% / 容積率:80%)
引渡し 相談 現況 入居中 取引態様 仲介 物件No 仲介手数料概算 不動産会社へお問合せください 設備・特徴 - 閑静な住宅街
- 太陽光発電システム
- シューズインクローゼット
- ウォークインクローゼット
- シューズボックス
- 全居室収納あり
- トイレ2ヶ所以上
- 浴室暖房
- 温水洗浄トイレ
- エアコン付
- 床暖房
備考 学区色がついているアイコンをクリックすると、本物件までの道順を見ることができます。
主な周辺施設色がついているアイコンをクリックすると、本物件までの道順を見ることができます。
-
※連合隊は物件情報の精度向上に努めています:「物件情報に誤りがある」「成約済みである」などお気付きの点がございましたらこちらよりご連絡ください。
写真枚数:10枚
福岡・博多の物件探しはFUKUOKA ASSETS PROJECTへ!
売買・賃貸それぞれの専門スタッフが、あなたのご要望にお応えいたします‼ まずはお気軽にご相談ください‼