早良区次郎丸4丁目(2号棟)ー新築戸建
ここに注目!☆次郎丸エリア☆「市営地下鉄七隈線『次郎丸』駅」まで徒歩7分。通勤・通学はもちろん、休日のお出かけにも便利な駅チカ好立地♪*徒歩5分圏内にダイソーがあり、急な買い物にも便利◎食洗機付きのシステムキッチンを採用。たっぷり収納できるパントリー付きで、キッチン周りもすっきり☆*浴室乾燥暖房機も完備しており、雨の日のお洗濯も困りません♪*「ちょっと聞いてみたいな…」そんな段階でもOKです!ローンのことや気になる点は、どうぞお気軽にご相談ください☆*
| 価格 |
4,998万円
|
|---|---|
| 建物面積 | 97.5m² (29.49坪) |
| 土地面積 | 165.49m² (50.06坪)(実測) |
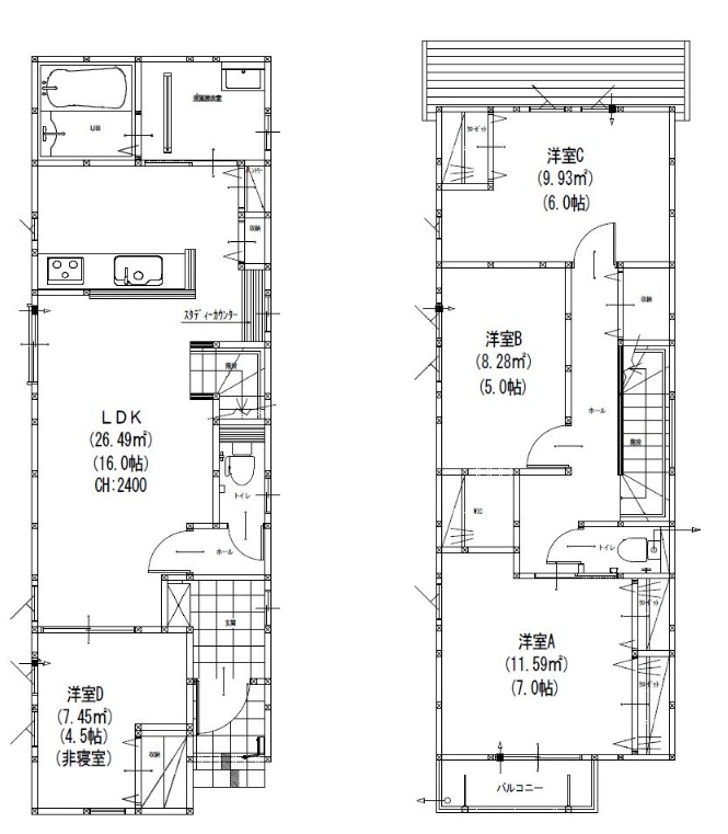
| 間取り | 4LDK1階:LDK16帖 洋室4.5帖 洋室7帖 / 2階:洋室6帖 洋室5帖 |
| 住所 | 福岡県福岡市早良区次郎丸 (詳細非公開) |
| 交通 | 次郎丸駅(徒歩7分)|西鉄バス 「河原」停(徒歩5分) |
| 築年月 | 建築中(2026年8月完成予定) |
| 駐車場 |
あり 駐車可能台数:3台
※但し車種による |
販売状況、見学、詳細を知りたい方はこちら!
お電話の際は「連合隊の物件」とお伝えください。
情報掲載期限:あと28日(更新日 2026/4/27)
- 物件写真・概要
- 周辺地図
-
販売状況、見学、詳細を知りたい方はこちら!
おすすめポイント
- 建築中
- 駐車2台以上可
- 都市ガス
- 追い焚き風呂
- 近くて便利!徒歩5分以内にある施設
- 3分
3分- 5分
5分- 5分
5分- 3分
3分
交通
- 次郎丸駅福岡市営地下鉄七隈線徒歩7分(約500m)
- 西鉄バス 「河原」停徒歩5分(約400m)
物件概要
建物の階建 地上2階建 主要採光面 構造 木造(在来工法) バルコニー あり接道状況 一方 - 北側幅5.20mの公道に接道
都市計画区域 市街化区域 私道負担 なし 地目/地勢 雑種地 国土法届出 土地権利 所有権 用途地域 - 第1種低層住居専用地域(建ぺい率:50% / 容積率:80%)
引渡し 相談 現況 その他 建築確認番号 第KJH25-02504-1号 取引態様 仲介 物件No 仲介手数料概算 不動産会社へお問合せください 設備・特徴 - 閑静な住宅街
- 日当り良好
- 24時間換気システム
- フローリング
- 電動シャッター
- システムキッチン
- コンロ3口以上
- 食器洗乾燥機
- カウンターキッチン
- 浴室乾燥機
- シャワー付洗面化粧台
- 温水洗浄トイレ
- 浴室暖房
- トイレ2ヶ所以上
- モニタ付インターホン
- 都市ガス
- 全居室収納あり
- シューズボックス
- 追い焚き風呂
- 床下収納
- ウォークインクローゼット
備考 その他設備:複層ガラス、ダウンライト、省エネ給湯器、上下水道、側溝 学区
- 福岡市立有田小学校約1.3km(徒歩16分)
- 福岡市立次郎丸中学校約651m(徒歩9分)
主な周辺施設
- 学校法人啓愛学園たぐま幼稚園約233m(徒歩3分)
- 福岡田町郵便局約637m(徒歩8分)
- 福岡銀行田町支店約1.7km(徒歩21分)
- 福岡歯科大学医科歯科総合病院約627m(徒歩8分)
- 次郎丸東ノ前公園約350m(徒歩5分)
- マックスバリュ次郎丸店約231m(徒歩3分)
- セブンイレブン福岡次郎丸4丁目店約444m(徒歩6分)
- ドラッグストアモリ次郎丸店約373m(徒歩5分)
- ダイソー福岡次郎丸店約283m(徒歩4分)
- ピエトロ次郎丸店約418m(徒歩6分)
-
ホームページはこちら
福岡県知事 (4) 第15827号
(株)アイテム〒814-0033
TEL:0120-713-415
TEL:092-407-2323
FAX:092-407-0267
営業時間:9:30~18:30
- 加入団体
- (公社)福岡県宅地建物取引業協会 、(一社)全国住宅産業協会
- 保証協会
- (公社)全国宅地建物取引業保証協会
- 公正取引協議会
- (一社)九州不動産公正取引協議会
※連合隊は物件情報の精度向上に努めています:「物件情報に誤りがある」「成約済みである」などお気付きの点がございましたらこちらよりご連絡ください。
写真枚数:4枚
☆次郎丸エリア☆閑静な住宅街に佇む4LDK!
間取図
区画図
総合病院まで徒歩10分圏内。万が一の際も安心の立地♪*



不動産のことならアイテムへ!!お電話の際は、「不動産★連合隊を見ました。」とお伝え下さい。
お問い合わせは、0120-713-415までお気軽にどうぞ!弊社は「不動産の売買を専門」とした不動産会社です。お客様の希望や要望はもちろん、時には不安に寄り添い、より良い住まいの為に社員一同でサポート致します!