KIRA
ここに注目!中央区RC造オーナーチェンジ物件 ワンルーム×15部屋 満室時想定家賃年収:9.131.784円 想定利回り6.1% 近隣には理容美容専門学校、札幌医科大学あり。
| 価格 |
1億4,980万円
利回り6.09%
満室時想定年収:913万円
|
|---|---|
| 住所 | 北海道札幌市中央区南六条西18丁目1-34 |
| 交通 | 西線6条駅(徒歩7分)|西18丁目駅(徒歩11分)道順を見る |
| 築年月 | 築12年(2014年1月) |
| 構造 | 鉄筋コンクリート(RC)造 |
| 面積 | 建物:384.98m² (116.45坪)/ 土地:162.28m² (49.08坪)(公簿) 専有:21.44m² (6.48坪) |
| 現況 | 現在満室(総戸数15戸中 15戸賃貸中) |
販売状況、見学、詳細を知りたい方はこちら!
お電話の際は「連合隊の物件」とお伝えください。
情報掲載期限:あと28日(更新日 2026/3/20)
- 物件写真・概要
- 周辺地図
-
販売状況、見学、詳細を知りたい方はこちら!
おすすめポイント
- 現在満室
- 大学・専門近く
交通色がついているアイコンをクリックすると、本物件までの道順を見ることができます。
物件概要
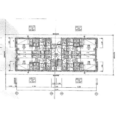
建物の階建 地上4階建 間取り ワンルーム×15戸 駐車場 ※契約者負担料金:8,182円/台 駐車場台数:1台接道状況 一方 - 北側幅5.45mの公道に7.72m接道
都市計画区域 市街化区域 用途地域 - 第1種住居地域(建ぺい率:60% / 容積率:200%)
私道負担 地目/地勢 宅地 地勢:平坦 国土法届出 土地権利 所有権 その他費用 その他 - 固定資産税等 年税:62万2,100円
引渡し 相談 取引態様 仲介 物件No 仲介手数料概算 500万9,400円(金額は概算です。正確な金額は不動産会社へお問合せ下さい) 設備・特徴 - 大学・専門近く
- バス/トイレ別
備考 <ランニング費用※全て税別>共用部電気料7.761円/月(2025年実績平均)、無料インターネット料金17.000円/月、清掃料9.200円/月、管理委託料(賃料、共益費、駐車場代の4%、管理先変更可能) <スポット費用※全て税別>屋上ドレン清掃5.000円、除雪費用30.000円程度(2024年2月実績あり) その他プロパン設備承継必須契約 ワンルーム15戸(5.5帖洋室・2.6帖キッチン) 主な周辺施設色がついているアイコンをクリックすると、本物件までの道順を見ることができます。
-
※連合隊は物件情報の精度向上に努めています:「物件情報に誤りがある」「成約済みである」などお気付きの点がございましたらこちらよりご連絡ください。
写真枚数:10枚
弊社ホームページご覧いただき誠にありがとうございます。 掲載物件以外にも居住用物件(マンション・一戸建て)・収益物件(区分・一棟)など多数ご用意しております。 お気軽にお問合せ下さいませ。