ナカビシグランドハイツ琴似→室内リノベーション済
ここに注目!札幌市営地下鉄東西線「琴似」駅から徒歩4分、JR函館本線「琴似」駅も利用可能な、利便性の高い立地に佇む「ナカビシグランドハイツ琴似」のご紹介です。2025年11月に室内リフォームが完了したばかりですので、新しく生まれ変わった空間で気持ちの良い新生活をスタートしていただけます。 南東向きバルコニーに面した4階のお部屋は、広々とした3LDK(専有面積64.55㎡)。LDKは10.5帖あり、ご家族での団らんの時間もゆったりとお過ごしいただけます。システムキッチンには3口コンロが備わり、毎日のお料理もはかどりますね。収納に便利な納戸・トランクルームやシューズボックスも完備されており、お部屋をすっきりと保てるのが嬉しいポイント。さらに、開放感あふれるサンルームも魅力です。 大切なペットとの暮らしもご相談可能。モニタ付インターホンで安心もプラスされています。周辺にはスーパーやコンビニ、ドラッグストア、役所などが揃い、日々の暮らしを豊かに彩る施設が充実。小学校・中学校も徒歩圏内で、子育て世代にも安心の住環境です。 新しい暮らしの舞台に、この素敵なマンションはいかがでしょうか。ぜひ一度ご内...
| 価格 |
1,490万円
坪単価:約76.3万円/坪
管理費7,100円/月修繕積立金1万8,790円/月
|
|---|---|
| 間取・専有 |
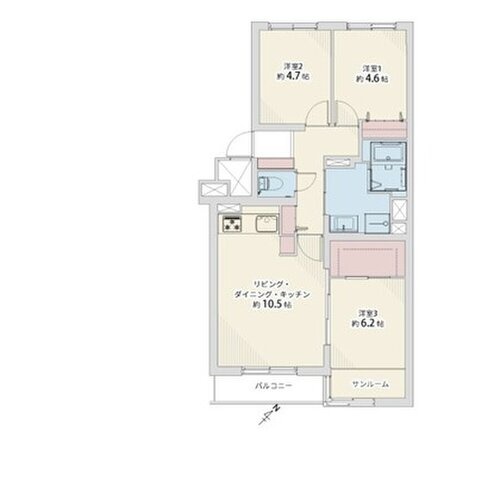
3LDK(64.55m²)└ LDK10.5帖 洋室6.2帖 洋室4.6帖 洋室4.7帖
|
| 住所 | 北海道札幌市西区琴似一条6丁目2-25 |
| 交通 | 琴似駅(徒歩4分)|琴似駅(徒歩13分)道順を見る |
| 築年月 | 築44年(1981年11月) |
| 駐車場 |
販売状況、見学、詳細を知りたい方はこちら!
お電話の際は「連合隊の物件」とお伝えください。
情報掲載期限:あと30日(更新日 2026/3/6)
- 物件写真・概要
- 周辺地図
-
販売状況、見学、詳細を知りたい方はこちら!
おすすめポイント
- 即引渡し可
- リフォーム済み
- 2階以上
- ペット相談可
- エレベーター
- 駅徒歩5分以内
- 複数路線利用可
- 近くて便利!徒歩5分以内にある施設
- 3分
3分- 5分
5分- 周辺施設を地図で確認
交通色がついているアイコンをクリックすると、本物件までの道順を見ることができます。
物件概要
所在階/建物の階建 4階(407) / 地上5階 地下1階建 総戸数 47戸 主要採光面 南東 構造 鉄筋コンクリート(RC)造 バルコニー あり(3.5m²)土地権利 所有権 その他費用 毎月の費用 - 町内会費:200円
引渡し 即時 現況 空き 管理人 巡回 管理形態 全部委託 管理組合 指定なし 取引態様 仲介 物件No 仲介手数料概算 55万7,700円(金額は概算です。正確な金額は不動産会社へお問合せ下さい) 修繕履歴 - 2025年11月頃にリビング・キッチン・トイレ・浴室・玄関・その他の箇所をリフォームしています。
設備・特徴 - 複数路線利用可
- 納戸・トランクルーム
- フローリング
- 遮音フローリング
- シューズボックス
- エレベーター
- 照明器具付
- コンロ3口以上
- システムキッチン
- 灯油暖房
- モニタ付インターホン
- 灯油ボイラー
- ペット相談可
備考 サンルーム 学区色がついているアイコンをクリックすると、本物件までの道順を見ることができます。
主な周辺施設色がついているアイコンをクリックすると、本物件までの道順を見ることができます。
-
※連合隊は物件情報の精度向上に努めています:「物件情報に誤りがある」「成約済みである」などお気付きの点がございましたらこちらよりご連絡ください。
写真枚数:9枚
弊社ホームページご覧頂き誠にありがとうございます(^_^) 掲載物件以外にも居住用物件(マンション・一戸建て)・収益物件(区分・一棟)など多数ご用意しております(^^) お気軽にお問合せ下さいませ(^O^)