函館市山の手3丁目 【売建住宅】
ここに注目!【売建住宅】保育園は徒歩1分で小さいお子様がいる方に安心の立地!スーパー、ホームセンター、ドラッグストアは車で5分以内!産業道路に出ると、飲食店もたくさんあります!3LDK〖フォスター〗リビングダイニングを見渡せるキッチン!玄関とホールから行き来できる広々シューズクローク!2階には、洗濯物なども干したり、用途自由なフリースペースもあります!
この物件は、仲介手数料がかかりません。
この物件の売主は、情報を掲載している不動産会社です。仲介物件ではないため、仲介手数料は発生しません。
| 価格 |
2,350万円
|
|---|---|
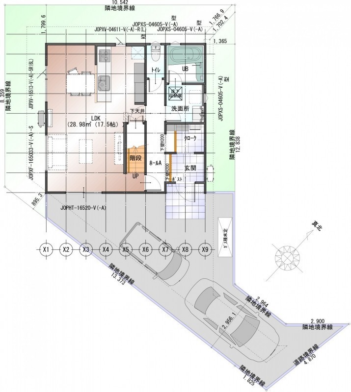
| 建物面積 | 98.53m² (29.8坪) |
| 土地面積 | 142.97m² (43.24坪) |
| 間取り | 3LDK |
| 住所 | 北海道函館市山の手3-12 |
| 交通 | 函館バス 「山の手一丁目」停(徒歩3分) |
| 築年月 | |
| 駐車場 |
あり 駐車可能台数:2台
|
販売状況、見学、詳細を知りたい方はこちら!
お電話の際は「連合隊の物件」とお伝えください。
情報掲載期限:あと7日(更新日 2025/11/25)
- 物件写真・概要
- 周辺地図
-
▼クリックで左の拡大画像が変わります。 すべての写真を拡大
販売状況、見学、詳細を知りたい方はこちら!
おすすめポイント
- 駐車2台以上可
- 追い焚き風呂
- 土地付き提案住宅
- 近くて便利!徒歩5分以内にある施設
- 3分
3分- 5分
5分- 周辺施設を地図で確認
交通
- 函館バス 「山の手一丁目」停徒歩3分
物件概要
建物の階建 地上2階建 主要採光面 構造 木造(2×4) 接道状況 一方 - 東側幅7.30mの公道に4.80m接道
都市計画区域 私道負担 地目/地勢 宅地 国土法届出 土地権利 所有権 用途地域 - 第1種低層住居専用地域(建ぺい率:50% / 容積率:100%)
引渡し 相談 現況 その他 施工業者 ㈱曲小 小倉工務店 建築確認番号 第HJK223482 取引態様 売主 物件No 仲介手数料概算 取引態様が売主なので仲介手数料は不要です 設備・特徴 - 土地付き提案住宅
- 照明器具付
- フローリング
- 床下収納
- シューズインクローゼット
- 全居室収納あり
- 温水洗浄トイレ
- シャワー付洗面化粧台
- 浴室に窓
- 浴室1坪以上
- コンロ3口以上
- システムキッチン
- モニタ付インターホン
- 24時間換気システム
- 追い焚き風呂
- ウォークインクローゼット
- エアコン付
備考 学区色がついているアイコンをクリックすると、本物件までの道順を見ることができます。
主な周辺施設色がついているアイコンをクリックすると、本物件までの道順を見ることができます。
-
ホームページはこちら
国土交通大臣 (3) 第8578号
(株)小倉工務店
※連合隊は物件情報の精度向上に努めています:「物件情報に誤りがある」「成約済みである」などお気付きの点がございましたらこちらよりご連絡ください。
写真枚数:11枚
写真はイメージです
写真はイメージです
写真はイメージです
写真はイメージです
写真はイメージです
写真はイメージです
写真はイメージです
魚長 東山店
セコマ 山の手店


★新築・建売住宅・リノベーション住宅・不動産・収益物件・アパート管理の事なら小倉工務店へ!
地元の皆様に愛され、おかげさまで新築お引渡し棟数が1300棟を超えました!「国益に資する企業になる」という理念の元、これからも建築・不動産売買・賃貸・管理業務を通して地域を元気にしていく企業を目指します!